179 000 000 Ft
457 000 €
- 118m²
- 7 szoba
- 1. emelet
Cooliving, office or healthcare purpose property for sale on Jozsef Körút Budapest!
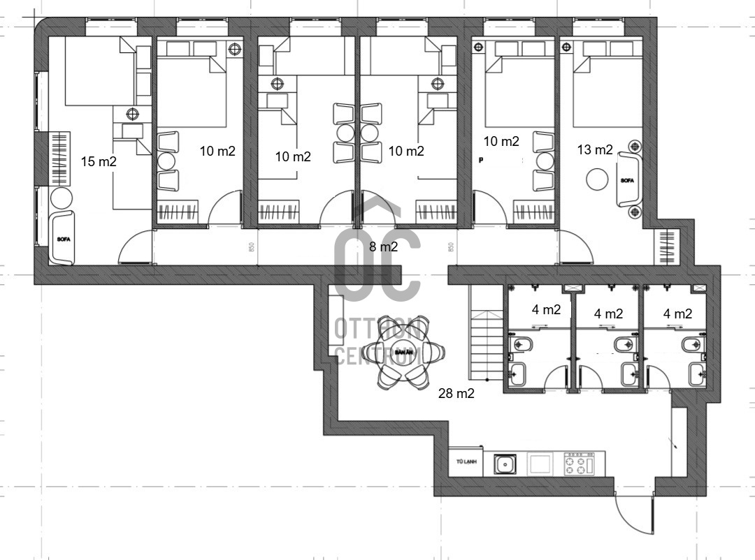
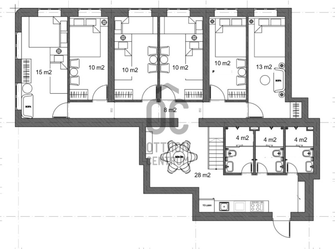
A beautifully renovated 118 m² apartment with 7 separate rooms is offered for sale in one of Budapest’s most vibrant areas, at József körút 50. The property represents an excellent investment opportunity with multiple potential uses.
The apartment is located on the first floor of a classic historic building. Its current layout is particularly well suited for income-generating purposes.
Public transportation is outstanding: a tram stop is located directly in front of the building, providing fast and convenient access to all parts of the city.
Property details
Total area: 118 m², 7 separate rooms (10–15 m² each), 3 bathrooms, 25 m² common living area
The layout makes the property ideal for several business and investment models.
Based on current rental prices in Budapest, the rooms can typically be rented for €400–€500 per month, which may generate an annual income of approximately €35,000–€50,000.
Possible uses:
- coliving or student accommodation for international students
- psychology or healthcare clinic
- beauty or service center
- office or coworking space for startups
- long-term room-by-room rental
- hostel or serviced apartment concept
The combination of 7 separate rooms and 3 bathrooms is extremely rare in Budapest’s city center, making this property particularly suitable for investment purposes.
Its size, layout and excellent transportation connections make it an ideal choice for investors seeking a stable income-generating property on one of Budapest’s busiest and most accessible boulevards.
Would you like to schedule a personal viewing? Please feel free to call.
Our mortgage advisor can present the offers of all major Hungarian banks in a single step, helping you avoid unnecessary bank visits and ensuring a fast, efficient and well-informed financing decision.
The apartment is located on the first floor of a classic historic building. Its current layout is particularly well suited for income-generating purposes.
Public transportation is outstanding: a tram stop is located directly in front of the building, providing fast and convenient access to all parts of the city.
Property details
Total area: 118 m², 7 separate rooms (10–15 m² each), 3 bathrooms, 25 m² common living area
The layout makes the property ideal for several business and investment models.
Based on current rental prices in Budapest, the rooms can typically be rented for €400–€500 per month, which may generate an annual income of approximately €35,000–€50,000.
Possible uses:
- coliving or student accommodation for international students
- psychology or healthcare clinic
- beauty or service center
- office or coworking space for startups
- long-term room-by-room rental
- hostel or serviced apartment concept
The combination of 7 separate rooms and 3 bathrooms is extremely rare in Budapest’s city center, making this property particularly suitable for investment purposes.
Its size, layout and excellent transportation connections make it an ideal choice for investors seeking a stable income-generating property on one of Budapest’s busiest and most accessible boulevards.
Would you like to schedule a personal viewing? Please feel free to call.
Our mortgage advisor can present the offers of all major Hungarian banks in a single step, helping you avoid unnecessary bank visits and ensuring a fast, efficient and well-informed financing decision.
Regisztrációs szám
H514302
Az ingatlan adatai
Értékesités
eladó
Jogi státusz
használt
Jelleg
lakás
Építési mód
tégla
Méret
118 m²
Bruttó méret
125 m²
Fűtés
Gáz cirkó
Belmagasság
400 cm
Tájolás
Kelet
Lépcsőház típusa
körfolyosó
Állapot
Kiváló
Homlokzat állapota
Jó
Lépcsőház állapota
Jó
Építés éve
1895
Fürdőszobák száma
3
Fekvés
utcai
Közös költség
37000
Víz
Van
Gáz
Van
Villany
Van
Csatorna
Van
Helyiségek
konyha-étkező
28 m²
szoba
15 m²
szoba
13 m²
szoba
10 m²
szoba
10 m²
szoba
10 m²
szoba
10 m²
szoba
12 m²
fürdőszoba-wc
4 m²
fürdőszoba-wc
4 m²
fürdőszoba-wc
4 m²