102 000 000 Ft
271 000 €
- 85m²
- 4 szoba
- 2. emelet
Debrecen Széchenyi kertben 4 szobás társasházi lakás
Debrecen SZÉCHENYI KERT városrészben, lakó-pihenő övezetben, eladásra kínálunk egy hangulatos, BELSŐ-KÉTSZINTES,2. emeleti lakást garázzsal, kis lakóközösséggel, 2004-ben épült társasházban!
A 16,5 m2-es garázs megvásárlása OPCIONÁLIS!!
Ára: 15 millió ft, a társasház alatt található, közvetlen bejárat az utcaszintről, előtte plusz egy gépkocsi megállhat!
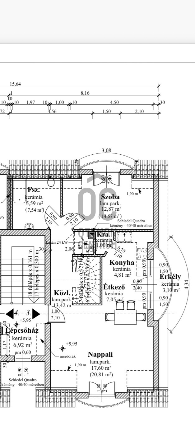
A praktikus elrendezésű beltér részletei:
- 115/85 m2-es, világos otthon fiatalos, jó elosztású
- 27 m2-es központi pozícióban lévő nappali-étkező, erkély kb 3 m2
- 6 m2-es gépesített konyha, kamrával
- 13 m2-es jól pakolható előszoba, közlekedő
- 13 m2-es hálószoba, beépített egyedi gardróbszekrényekkel, erkély 3 m2
- 8 m2-es nagy méretű, kényelmes, kádas fürdőszoba, wc-vel
Tetőtéri elrendezés:
- 4 m2-es emeleti, zuhanyzós fürdőszoba-wc
- 6 m2-es közlekedő
- 11 m2-es szoba, francia erkély
- 8 m2es szoba
- lépcsőfeljáró
- Gázkazános fűtés radiátor hőleadókkal
- 2 db klíma
- redőnyös-rovarhálós műanyag nyílászárók
- az emeleten tetőtéri ablakok árnyékolóval
- riasztórendszer
- beépített bútorok, amik a vételár részét képezik
A lakást részben felújították:- laminált padló cseréje megtörtént emeleten és a nappaliban
- gázkazán csere
- az ingatlant festették
- beépített bútorok készültek
A társasházról:
- 2004-ben, téglából épült
- kis lakóközösség,4 lakás található a házban
- társasházi rendezett, gondozott kert
- kerti sütögető a lakók számára
- kaputelefon cseréje megtörtént
- tetőszigetelés + homlokzati javítás és festés megtörtént
A SZÉCHENYI kert nagyon közkedvelt és keresett lokáció, kiváló közlekedés jellemzi a városrészt, a Belváros percek alatt elérhető gépkocsival, illetve kerékpárral vagy gyalogosan.
Kertvárosi rész, rendezett, új vagy felújított családi házak, illetve kis létszámú újabb építésű társasházak jellemzik.
Csendes, kis forgalmú utcák, parkosított területek igazán közkedvelt városrésszé tették ezt a területet!
A lakás méretei és elosztása lehetővé teszi, hogy több gyermekes család is kényelmesen élje a hétköznapokat biztonságos, nyugodt környéken!
Ajánlom akár befektetésre is, hosszú távra, mert értékállóságát a kiváló lokáció garantálja!
További kérdéseivel állok rendelkezésére, akár hétvégén is!
A 16,5 m2-es garázs megvásárlása OPCIONÁLIS!!
Ára: 15 millió ft, a társasház alatt található, közvetlen bejárat az utcaszintről, előtte plusz egy gépkocsi megállhat!
A praktikus elrendezésű beltér részletei:
- 115/85 m2-es, világos otthon fiatalos, jó elosztású
- 27 m2-es központi pozícióban lévő nappali-étkező, erkély kb 3 m2
- 6 m2-es gépesített konyha, kamrával
- 13 m2-es jól pakolható előszoba, közlekedő
- 13 m2-es hálószoba, beépített egyedi gardróbszekrényekkel, erkély 3 m2
- 8 m2-es nagy méretű, kényelmes, kádas fürdőszoba, wc-vel
Tetőtéri elrendezés:
- 4 m2-es emeleti, zuhanyzós fürdőszoba-wc
- 6 m2-es közlekedő
- 11 m2-es szoba, francia erkély
- 8 m2es szoba
- lépcsőfeljáró
- Gázkazános fűtés radiátor hőleadókkal
- 2 db klíma
- redőnyös-rovarhálós műanyag nyílászárók
- az emeleten tetőtéri ablakok árnyékolóval
- riasztórendszer
- beépített bútorok, amik a vételár részét képezik
A lakást részben felújították:- laminált padló cseréje megtörtént emeleten és a nappaliban
- gázkazán csere
- az ingatlant festették
- beépített bútorok készültek
A társasházról:
- 2004-ben, téglából épült
- kis lakóközösség,4 lakás található a házban
- társasházi rendezett, gondozott kert
- kerti sütögető a lakók számára
- kaputelefon cseréje megtörtént
- tetőszigetelés + homlokzati javítás és festés megtörtént
A SZÉCHENYI kert nagyon közkedvelt és keresett lokáció, kiváló közlekedés jellemzi a városrészt, a Belváros percek alatt elérhető gépkocsival, illetve kerékpárral vagy gyalogosan.
Kertvárosi rész, rendezett, új vagy felújított családi házak, illetve kis létszámú újabb építésű társasházak jellemzik.
Csendes, kis forgalmú utcák, parkosított területek igazán közkedvelt városrésszé tették ezt a területet!
A lakás méretei és elosztása lehetővé teszi, hogy több gyermekes család is kényelmesen élje a hétköznapokat biztonságos, nyugodt környéken!
Ajánlom akár befektetésre is, hosszú távra, mert értékállóságát a kiváló lokáció garantálja!
További kérdéseivel állok rendelkezésére, akár hétvégén is!
Regisztrációs szám
H513855
Az ingatlan adatai
Értékesités
eladó
Jogi státusz
használt
Jelleg
lakás
Építési mód
tégla
Méret
85 m²
Bruttó méret
115 m²
Terasz / erkély mérete
6 m²
Fűtés
Gáz cirkó
Belmagasság
265 cm
Lakáson belüli szintszám
1
Tájolás
Kelet
Lépcsőház típusa
zárt lépcsőház
Állapot
Jó
Homlokzat állapota
Kiváló
Lépcsőház állapota
Kiváló
Környék
csendes, jó közlekedés, zöld, központi
Építés éve
2004
Fürdőszobák száma
2
Fekvés
utcai
Társaház kert
igen
Közös költség
20000
Garázs
Külön vásárolható
Garázs férőhely
1
Víz
Van
Gáz
Van
Villany
Van
Csatorna
Van
Helyiségek
nappali-étkező
22 m²
konyha
6 m²
előszoba
10 m²
szoba
12 m²
szoba
8 m²
szoba
12 m²
fürdőszoba-wc
8 m²
zuhanyzó
4 m²
Plébán László
Hitelszakértő