Elérhető Otthon Start hitellel
Eladó családi ház, H512945
Újszilvás

29 900 000 Ft

79 000 €

  • 88,7m²
  • 3 szoba
Kiemelt megbízás

Nappali+ 2 szobás családi ház Újszilváson

Eladóvá vált Újszilváson, gyorsan fejlődő kis faluban, főút mellett, vályog falazatú, 2 szoba + nappalis családi ház.
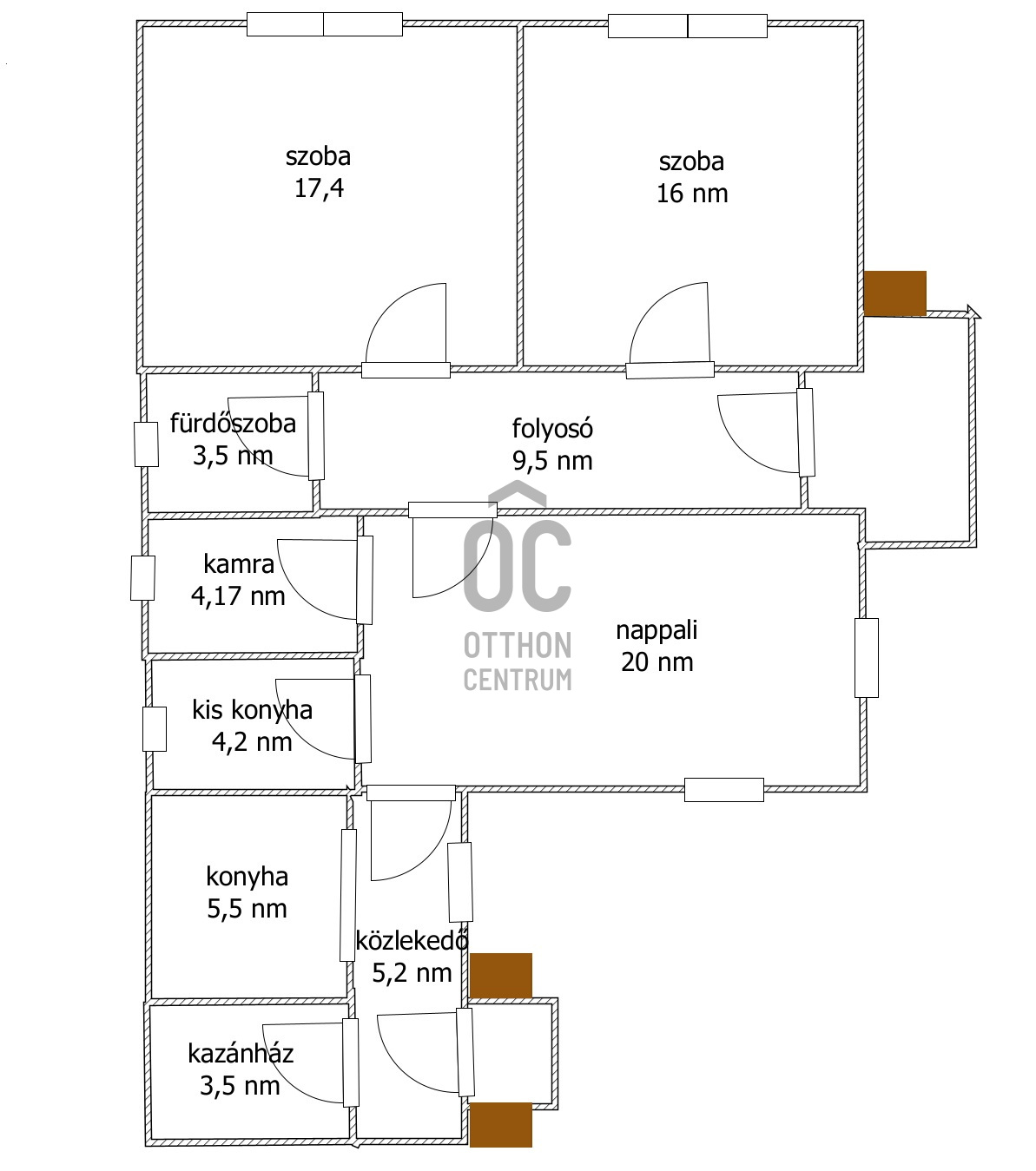
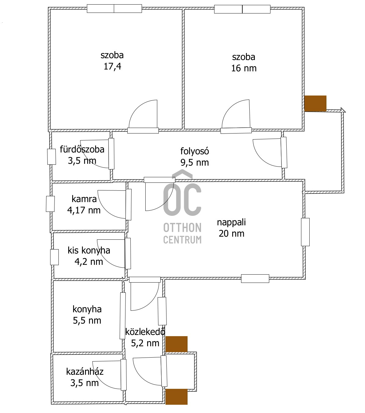
88,7 nm-s alapterületű, jó elosztású, 766 nm-s telken, gazdasági épületekkel.
Összközműves, gáz és vegyes tüzelésű kazánról központi fűtéssel. A nappaliban még egy plusz gázkonvektor.
Otthon Start hirelre, 2 gyermekes Csok Plusszra és Falusi Csokra is alkalmas!
Ha szeretne gyorsan költözni, ez az ingatlan önre vár!
Hívjon bizalommal és nézze meg velem!

Regisztrációs szám

H512945

Az ingatlan adatai

Értékesités
eladó
Jogi státusz
használt
Jelleg
ház
Építési mód
vegyesfalazatú
Méret
88,7 m²
Bruttó méret
88,7 m²
Telek méret
766 m²
Fűtés
Gáz cirkó
Belmagasság
294 cm
Tájolás
Dél
Állapot
Átlagos
Homlokzat állapota
Átlagos
Környék
jó közlekedés
Építés éve
1960
Fürdőszobák száma
1
Víz
Van
Gáz
Van
Villany
Van
Csatorna
Van
Tároló
Önálló

Helyiségek

fürdőszoba-wc
3.5 m²
kamra
4.2 m²
konyha
4.2 m²
konyha
5.5 m²
szoba
16 m²
szoba
17.4 m²
nappali-étkező
20 m²
közlekedő
9.5 m²

Irodánk kínálatából - Albertirsa

for sale vacation home

Index image
15

for sale family house

Index image
data_sheet.details.realestate.section.main.otthonstart_flag.label
20

for sale family house

Index image
data_sheet.details.realestate.section.main.otthonstart_flag.label
10

for sale panel apartment

Index image
data_sheet.details.realestate.section.main.otthonstart_flag.label
20

for sale apartment

Index image
54