Elérhető Otthon Start hitellel
Eladó lakás,
H512527
Debrecen, Nagyerdő
86 000 000 Ft
228 000 €
- 82m²
- 3 szoba
- 3. emelet
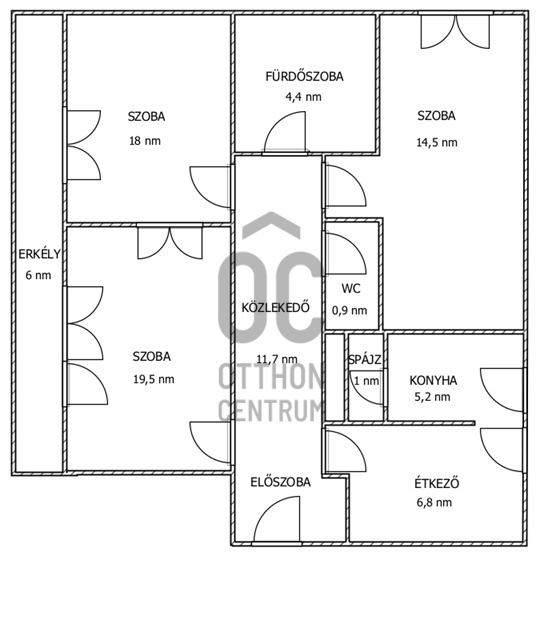
Eladó 82 m²-es, 3 szobás társasházi lakás Debrecenben, a Nagyerdőn – Géresi utcában
Debrecen egyik legkedveltebb városrészében, a klasszikus Nagyerdőn, a Géresi utcában kínálunk megvételre egy 82 m²-es, téglaépítésű, egyedi gáz-cirkó fűtéses társasházi lakást.
Az ingatlan egy kilenc lakásos, zárt udvaros társasház felső szintjén helyezkedik el, így felső szomszéd nélkül, nyugodt, zavartalan lakókörnyezetet biztosítva.
Az ingatlan főbb jellemzői:
-82 m² alapterület
-3 külön nyíló szoba, konyha + étkező
-Tágas, napfényes belső terek
-Műanyag nyílászárók redőnnyel és szúnyoghálóval
-Egyedi gáz-cirkó fűtés kondenzációs kazánnal
-Klímaberendezés
-Fürdőszoba káddal és zuhanyzóval
-WC külön helyiségben
-Spájz
-Terasz
-Tégla építésű társasház
-Kis létszámú lakóközösség
-Alacsony fenntartási költségek
A lakás elrendezése rugalmas: a három külön nyíló szoba közül kettő egymásból is megközelíthető, így az alaprajz családoknak, pároknak vagy befektetési célra is kiválóan alakítható.
Az egyik szobából közvetlen kijárat a tágas erkélyre.
A társasházhoz gondozott kert tartozik, a környék csendes és rendezett.
Elhelyezkedés:
-Az ingatlan kiváló lokációval rendelkezik:
-Egyetemek, Klinikák, villamosmegálló néhány perc sétára
-Zöldövezeti parkok a közelben
-Iskola, óvoda, boltok, gyógyszertár, cukrászda gyalogosan elérhetőek
A lakás saját részre és befektetésnek egyaránt ideális választás.
Az alaprajz tájékoztató jellegű.
Amennyiben az ingatlan felkeltette érdeklődését, várom telefonos megkeresését további információért vagy megtekintés egyeztetéséhez.
Ez az ingatlan a „Hűségcsomag” megbízási portfóliónk része. Bővebb információkért keresse az Otthon Centrum weboldalán a Felezőcsomag menüpontot, vagy hívjon minket bizalommal!
Az ingatlan egy kilenc lakásos, zárt udvaros társasház felső szintjén helyezkedik el, így felső szomszéd nélkül, nyugodt, zavartalan lakókörnyezetet biztosítva.
Az ingatlan főbb jellemzői:
-82 m² alapterület
-3 külön nyíló szoba, konyha + étkező
-Tágas, napfényes belső terek
-Műanyag nyílászárók redőnnyel és szúnyoghálóval
-Egyedi gáz-cirkó fűtés kondenzációs kazánnal
-Klímaberendezés
-Fürdőszoba káddal és zuhanyzóval
-WC külön helyiségben
-Spájz
-Terasz
-Tégla építésű társasház
-Kis létszámú lakóközösség
-Alacsony fenntartási költségek
A lakás elrendezése rugalmas: a három külön nyíló szoba közül kettő egymásból is megközelíthető, így az alaprajz családoknak, pároknak vagy befektetési célra is kiválóan alakítható.
Az egyik szobából közvetlen kijárat a tágas erkélyre.
A társasházhoz gondozott kert tartozik, a környék csendes és rendezett.
Elhelyezkedés:
-Az ingatlan kiváló lokációval rendelkezik:
-Egyetemek, Klinikák, villamosmegálló néhány perc sétára
-Zöldövezeti parkok a közelben
-Iskola, óvoda, boltok, gyógyszertár, cukrászda gyalogosan elérhetőek
A lakás saját részre és befektetésnek egyaránt ideális választás.
Az alaprajz tájékoztató jellegű.
Amennyiben az ingatlan felkeltette érdeklődését, várom telefonos megkeresését további információért vagy megtekintés egyeztetéséhez.
Ez az ingatlan a „Hűségcsomag” megbízási portfóliónk része. Bővebb információkért keresse az Otthon Centrum weboldalán a Felezőcsomag menüpontot, vagy hívjon minket bizalommal!
Regisztrációs szám
H512527
Az ingatlan adatai
Értékesités
eladó
Jogi státusz
használt
Jelleg
lakás
Építési mód
tégla
Méret
82 m²
Bruttó méret
82 m²
Terasz / erkély mérete
6 m²
Fűtés
Gáz cirkó
Belmagasság
270 cm
Tájolás
Dél
Panoráma
Zöldre néző panoráma
Lépcsőház típusa
zárt lépcsőház
Állapot
Jó
Homlokzat állapota
Átlagos
Lépcsőház állapota
Átlagos
Környék
csendes, jó közlekedés, zöld
Építés éve
1978
Fürdőszobák száma
1
Fekvés
udvari
Közös költség
12300
Víz
Van
Gáz
Van
Villany
Van
Csatorna
Van
Helyiségek
szoba
14.5 m²
szoba
18 m²
szoba
19.5 m²
konyha
5.2 m²
ebédlő
6.8 m²
közlekedő
11.7 m²
fürdőszoba
4.4 m²
wc
0.9 m²
tároló
1 m²
Czellér András
Hitelszakértő