278 000 000 Ft
735 000 €
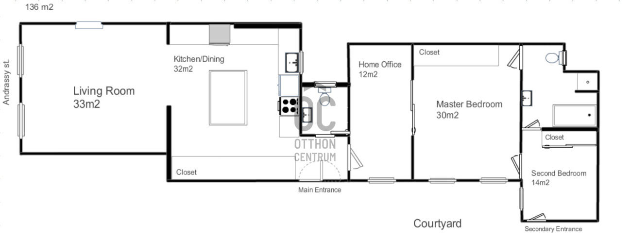
- 136m²
- 4 szoba
- 2. emelet
Apartment on Andrássy Avenue next to the Opera House!
One of Europe's most beautiful boulevards, the continent's first underground railway, the Opera House, theaters, cafés, luxury shops, museums, and apartment buildings
were built just over 150 years ago on Andrássy Avenue and are now part of our World Heritage.
Here, the neo-Renaissance building of the Mendl apartment house was also constructed, just a block away from the Opera House and the former Ballet Institute - now the W Budapest luxury hotel.
The building has been renovated, features an elevator, and has a restored courtyard with a period fountain statue.
The apartment is located on the second floor, with a living room overlooking Andrássy Avenue.
It has been tastefully renovated, covering 136 m².
The spacious living room - dining room - kitchen, with its 65 m², is the central part of the apartment, making it a worthy venue for family, friends, and business occasions.
Its three rooms are currently used as a bedroom and an office.
The apartment is air-conditioned and heated by gas central heating.
Whether you envision your home in the premium area of the historic Pest city center or are looking to purchase as an investment, I recommend this exceptional Andrássy Avenue apartment to you.
were built just over 150 years ago on Andrássy Avenue and are now part of our World Heritage.
Here, the neo-Renaissance building of the Mendl apartment house was also constructed, just a block away from the Opera House and the former Ballet Institute - now the W Budapest luxury hotel.
The building has been renovated, features an elevator, and has a restored courtyard with a period fountain statue.
The apartment is located on the second floor, with a living room overlooking Andrássy Avenue.
It has been tastefully renovated, covering 136 m².
The spacious living room - dining room - kitchen, with its 65 m², is the central part of the apartment, making it a worthy venue for family, friends, and business occasions.
Its three rooms are currently used as a bedroom and an office.
The apartment is air-conditioned and heated by gas central heating.
Whether you envision your home in the premium area of the historic Pest city center or are looking to purchase as an investment, I recommend this exceptional Andrássy Avenue apartment to you.
Regisztrációs szám
H512293
Az ingatlan adatai
Értékesités
eladó
Jogi státusz
használt
Jelleg
lakás
Építési mód
tégla
Méret
136 m²
Bruttó méret
136 m²
Fűtés
Gáz cirkó
Belmagasság
400 cm
Tájolás
Észak-nyugat
Lépcsőház típusa
függőfolyosó
Állapot
Kiváló
Homlokzat állapota
Kiváló
Lépcsőház állapota
Kiváló
Építés éve
1882
Fürdőszobák száma
1
Fekvés
utcai
Víz
Van
Gáz
Van
Villany
Van
Csatorna
Van
Lift
van
Helyiségek
nappali
33 m²
konyha-étkező
32 m²
szoba
30 m²
szoba
14 m²
szoba
12 m²
Ruczek Krisztina
Hitelszakértő