Elérhető Otthon Start hitellel
Eladó családi ház,
H511660
Domoszló
36 250 000 Ft
96 000 €
- 170,6m²
- 5 szoba
„Két szint, két generáció, egy otthon.”
Eladó téglaépítésű családi ház Domoszlón – akár két generációnak is!
Domoszlón eladó egy 170 nm-es, téglaépítésű családi ház 602 nm-es telken, amely kialakításának köszönhetően akár két generáció együttélésére is alkalmas.
Az ingatlanban 2 fürdőszoba található. A garázs közvetlenül a lakótérből megközelíthető, ami különösen komfortos megoldás a hidegebb téli napokon. A telken külön tároló is rendelkezésre áll.
Az alsó szint felújításra szorul, míg az emeleti lakórész azonnal birtokba vehető akár, így a felső szint használata mellett az alsó szint az új tulajdonos igényei szerint, akár fokozatosan is felújítható.
Csendes környezetben elhelyezkedő, jól alakítható otthon, amely kiváló lehetőség nagycsaládosoknak vagy többgenerációs megoldást keresőknek.
Miért jó Domoszlón élni?
Domoszló egy csendes, zöld környezetű település Heves megyében, a Mátra lábánál, amely ideális választás azok számára, akik nyugodt falusi életet keresnek, de nagyobb városok sem túl messze vannak. A település környéke természetközeli, túraútvonalakkal, horgásztóval és szép panorámákkal várja az aktív pihenést kedvelőket, miközben a mindennapi ellátás — iskola, óvoda, bölcsőde és alapvető szolgáltatások — helyben elérhetők.
Eger — közúton körülbelül 30–32 km, autóval nagyjából 30–35 perc alatt elérhető, ahol szélesebb szolgáltatási-, kulturális- és egészségügyi kínálat, bevásárlási lehetőségek és fürdők találhatók.
Gyöngyös — körülbelül 19–20 km távolságra fekszik, ami 20–25 perc alatt autóval kényelmesen elérhető; itt további oktatási, egészségügyi és szabadidős lehetőségek állnak rendelkezésre.
Domoszló ideális választás, ha nyugodt, természetközeli élettérre vágysz, miközben a nagyvárosi szolgáltatások egy nagyjából félórás autóútra elérhetők. A helyi közösségi programok, rendezvények és a falusi életforma hozzájárulnak a jó életminőséghez.
Keress bizalommal!
Domoszlón eladó egy 170 nm-es, téglaépítésű családi ház 602 nm-es telken, amely kialakításának köszönhetően akár két generáció együttélésére is alkalmas.
Az ingatlanban 2 fürdőszoba található. A garázs közvetlenül a lakótérből megközelíthető, ami különösen komfortos megoldás a hidegebb téli napokon. A telken külön tároló is rendelkezésre áll.
Az alsó szint felújításra szorul, míg az emeleti lakórész azonnal birtokba vehető akár, így a felső szint használata mellett az alsó szint az új tulajdonos igényei szerint, akár fokozatosan is felújítható.
Csendes környezetben elhelyezkedő, jól alakítható otthon, amely kiváló lehetőség nagycsaládosoknak vagy többgenerációs megoldást keresőknek.
Miért jó Domoszlón élni?
Domoszló egy csendes, zöld környezetű település Heves megyében, a Mátra lábánál, amely ideális választás azok számára, akik nyugodt falusi életet keresnek, de nagyobb városok sem túl messze vannak. A település környéke természetközeli, túraútvonalakkal, horgásztóval és szép panorámákkal várja az aktív pihenést kedvelőket, miközben a mindennapi ellátás — iskola, óvoda, bölcsőde és alapvető szolgáltatások — helyben elérhetők.
Eger — közúton körülbelül 30–32 km, autóval nagyjából 30–35 perc alatt elérhető, ahol szélesebb szolgáltatási-, kulturális- és egészségügyi kínálat, bevásárlási lehetőségek és fürdők találhatók.
Gyöngyös — körülbelül 19–20 km távolságra fekszik, ami 20–25 perc alatt autóval kényelmesen elérhető; itt további oktatási, egészségügyi és szabadidős lehetőségek állnak rendelkezésre.
Domoszló ideális választás, ha nyugodt, természetközeli élettérre vágysz, miközben a nagyvárosi szolgáltatások egy nagyjából félórás autóútra elérhetők. A helyi közösségi programok, rendezvények és a falusi életforma hozzájárulnak a jó életminőséghez.
Keress bizalommal!
Regisztrációs szám
H511660
Az ingatlan adatai
Értékesités
eladó
Jogi státusz
használt
Jelleg
ház
Építési mód
tégla
Méret
170,6 m²
Bruttó méret
171,8 m²
Telek méret
602 m²
Terasz / erkély mérete
12 m²
Kert méret
602 m²
Fűtés
Gáz cirkó
Belmagasság
280 cm
Lakáson belüli szintszám
1
Tájolás
Nyugat
Állapot
Felújítandó
Homlokzat állapota
Jó
Pince
Önálló
Építés éve
1976
Fürdőszobák száma
2
Társaház kert
igen
Garázs
Benne van az árban
Garázs férőhely
1
Fedett beállók száma
3
Víz
Van
Gáz
Van
Villany
Van
Tároló
Önálló
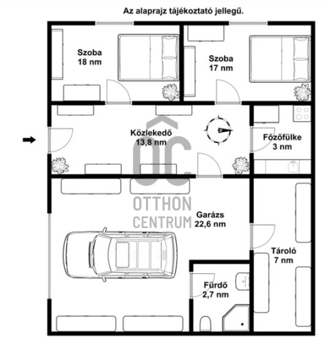
Helyiségek
szoba
18 m²
szoba
17 m²
közlekedő
13.8 m²
konyha
3 m²
garázs
22.6 m²
konyha-étkező
8.5 m²
dolgozószoba
10 m²
Pampuk Rita
Hitelszakértő