Elérhető Otthon Start hitellel
Eladó panel lakás,
H511419
Budapest III. kerület, Békásmegyer
74 900 000 Ft
195 000 €
- 57m²
- 3 szoba
- 5. emelet
BÉKÁSMEGYER HEGY-FELÖLI OLDALÁN 3-SZOBÁS, PANORÁMÁS LAKÁS ELADÓ
Békásmegyer Hegy-felöldi oldalán, a lakótelep szélén eladóvá vált egy jó adottságokkal rendelkező 3-szobás lakás.
A LAKÁS az 5. emeleten van, - és mivel a lakótelep szélső épülete, É-felé szép kilátása van a budakalászi dombok felé. A D-i oldalon is parkra néz az ablak.
É-D-i tájolásának köszönhetően kellemesen világos, D-i oldalról árad be a napfény. (Nem mellesleg jól átszellőztethető)
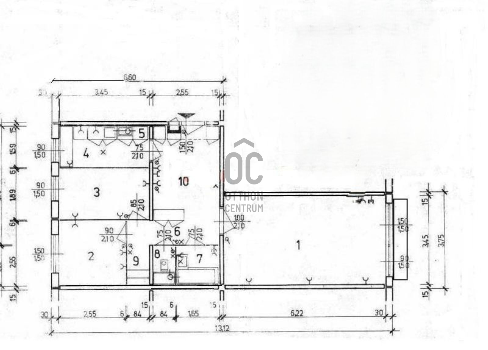
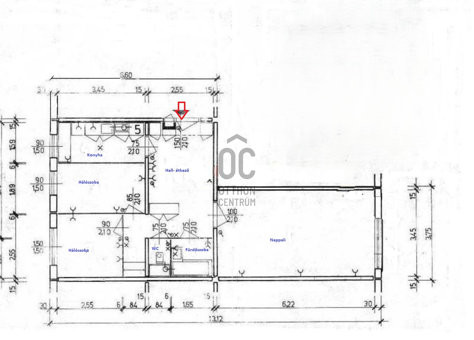
ELRENDEZÉSE nagyon praktikus: ha belépünk egy tágas étkezőbe érkezünk, ahonnan valamennyi további helyiség nyílik.
Kifejezetten nagy méretű nappalija kényelmesen berendezhető. A másik oldalon elhelyezett 2 hálószoba a fürdővel és a külön wc-vel jól elkülönül a nappali tartózkodási tértől, így a korábban pihenni vágyókat nem zavarja az esetleges hangos beszélgetés, TV-nézés...
Konyhája világos, praktikus elrendezésű, sok pakolóhellyel.
A lakásban sok praktikus beépített szekrény van, ami szintén része a vételárnak.
MŰSZAKI ÁLLAPOTÁT tekintve az elmúlt 25 évben több felújítás is történt.
Az elektromos vezetékek cserélve lettek, a konyha és fürdőszoba mintegy 8 éve lett újragondolva, burkolatok is akkor lettek cserélve.
A műanyag nyílászárók redőnnyel és szúnyoghálóval vannak ellátva.
FŰTÉSről távhő gondolskodik egyedi méréssel. De mivel nagyon meleg a lakás, jellemzően csupán a hideg téli hetekben kell bekapcsolni a radiátorokat. Ennek köszönhetően igen kellemes rezsi költségekkel lehet számolni.
A hűtésről klímakészülék gondoskodik.
Közös költség: 16.000,-Ft
LOKÁCIÓJA tökéletes. A lakótelepen 3-5 perc sétatávolságon belül van orvos, patika, bölcsi, ovi, suli, bevásárlási lehetőség.
A 160-as busz szinte a ház előtt áll meg, a HÉV-megálló pedig 10 percen belüli sétatávolságban van.
A lakás a START PLUSZ hitel felvételére is alkalmas, ideális választás fiatal párnak kisgyerekkel.
A LAKÁS az 5. emeleten van, - és mivel a lakótelep szélső épülete, É-felé szép kilátása van a budakalászi dombok felé. A D-i oldalon is parkra néz az ablak.
É-D-i tájolásának köszönhetően kellemesen világos, D-i oldalról árad be a napfény. (Nem mellesleg jól átszellőztethető)
ELRENDEZÉSE nagyon praktikus: ha belépünk egy tágas étkezőbe érkezünk, ahonnan valamennyi további helyiség nyílik.
Kifejezetten nagy méretű nappalija kényelmesen berendezhető. A másik oldalon elhelyezett 2 hálószoba a fürdővel és a külön wc-vel jól elkülönül a nappali tartózkodási tértől, így a korábban pihenni vágyókat nem zavarja az esetleges hangos beszélgetés, TV-nézés...
Konyhája világos, praktikus elrendezésű, sok pakolóhellyel.
A lakásban sok praktikus beépített szekrény van, ami szintén része a vételárnak.
MŰSZAKI ÁLLAPOTÁT tekintve az elmúlt 25 évben több felújítás is történt.
Az elektromos vezetékek cserélve lettek, a konyha és fürdőszoba mintegy 8 éve lett újragondolva, burkolatok is akkor lettek cserélve.
A műanyag nyílászárók redőnnyel és szúnyoghálóval vannak ellátva.
FŰTÉSről távhő gondolskodik egyedi méréssel. De mivel nagyon meleg a lakás, jellemzően csupán a hideg téli hetekben kell bekapcsolni a radiátorokat. Ennek köszönhetően igen kellemes rezsi költségekkel lehet számolni.
A hűtésről klímakészülék gondoskodik.
Közös költség: 16.000,-Ft
LOKÁCIÓJA tökéletes. A lakótelepen 3-5 perc sétatávolságon belül van orvos, patika, bölcsi, ovi, suli, bevásárlási lehetőség.
A 160-as busz szinte a ház előtt áll meg, a HÉV-megálló pedig 10 percen belüli sétatávolságban van.
A lakás a START PLUSZ hitel felvételére is alkalmas, ideális választás fiatal párnak kisgyerekkel.
Regisztrációs szám
H511419
Az ingatlan adatai
Értékesités
eladó
Jogi státusz
használt
Jelleg
lakás
Építési mód
panel
Méret
57 m²
Bruttó méret
57 m²
Fűtés
egyedi távfűtés
Belmagasság
260 cm
Lakáson belüli szintszám
1
Tájolás
Észak
Panoráma
Zöldre néző panoráma
Lépcsőház típusa
zárt lépcsőház
Állapot
Jó
Homlokzat állapota
Jó
Lépcsőház állapota
Jó
Környék
csendes, jó közlekedés, zöld
Építés éve
1978
Fürdőszobák száma
1
Fekvés
utcai
Közös költség
16000
Víz
Van
Gáz
Van
Villany
Van
Csatorna
Van
Lift
van
Helyiségek
nappali
21.5 m²
hálószoba
6.5 m²
hálószoba
6.5 m²
konyha
5.5 m²
ebédlő
11 m²
fürdőszoba
2.7 m²
wc
1.4 m²
közlekedő
2 m²
Andrejcsik Nikoletta
Hitelszakértő