144 000 000 Ft
381 000 €
- 114m²
- 4 szoba
- 2. emelet
OtthonStart-kompatibilis lakás! SIÓFOK ARANYPART
50 MÉTERRE A BALATONTÓL – Egész évben használható, lakóingatlan Siófok Aranypartján!
Az Aranypart egyik különleges lakóingatlana várja új tulajdonosát! Miért különleges? 3 külön nyíló hálószoba a tágas amerikai konyhás nappaliból. Két erkély. Saját medence a társasház 10 lakásának. A Balaton, Arany parti szabad strand mindössze pár lépésre. Nem csak strandolásra, kényelmes sétára a kiépített sétányon. A környék pedig egész évben élhető, igényes környezetet biztosít.
Főbb jellemzők
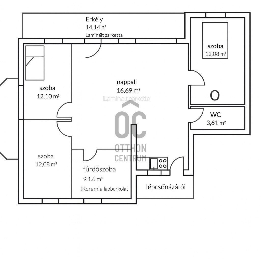
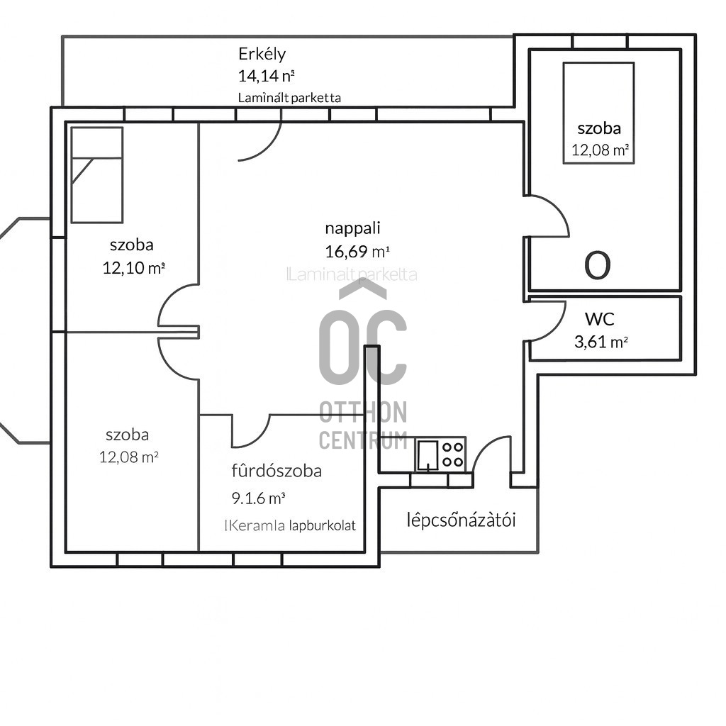
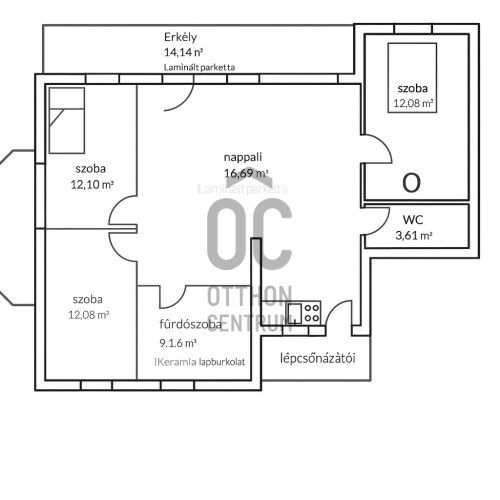
114 m² lakótér – tágas nappali, + 3 külön nyíló hálószoba, tágas, kádas fürdőszoba, külön zuhanyzós fürdőszoba, mindkettőben toalett. Hatalmas gardrób szekrények.
2 kényelmes erkély
Cirkó fűtés, + légkondicionáló – ideális állandó lakhatáshoz
2 saját parkolóhely zárt udvaron, mindig van parkolóhely a lépcsőházhoz közel.
10 lakásos társasház – csendes, barátságos lakóközösség.
Lakóingatlan (lakás) besorolású ingatlan, könnyen hitelezhető.
Kiemelt előny:
teljes bútorzat a vételárban
2 gépkocsi beálló a vételárben
saját medence a társasház udvarán! Gyermekes családok számára biztonságos, jól átlátható környezet. Ideális hely a kicsiknek a vízhez szokni, játszani, barátkozni. A felnőtteknek pedig tökéletes lazítási lehetőség a nyári napokon. A Balaton után vagy helyett kiváló alternatíva – nincs tömeg, nincs zsúfoltság.
Az Aranyparti ingatlanok között rendkívül ritka, hogy ilyen minőségi, saját használatú medence álljon a lakók rendelkezésére.
Kinek ideális?
Családoknak, akik biztonságos, mégis víz közelben lévő otthont keresnek.
Olyan tulajdonosoknak, akik egész évben igényes környezetben szeretnének élni
Befektetőknek, akik értékálló, kiemelt lokációjú lakást keresnek.
Az ingatlant az első tulajdonostól figyelembe véve, csak családosok és nyaralásra használták. Nem hasznosították rövid vagy hosszú távú kiadásra. A lakás mind műszakilag, mind esztétikailag megkímélt, karbantartott állapotban van.
#balaton, #balatonpart, #balatonilakas, #balatoniingatlan, #balatonaranypart, #siofok, #siofokaranypart, #siofokingatlan, #balatonilakás, #csaladbarat, #csaladinagy, #3haloszoba,
#medencéslakás, #gyerekbarat, #sajatmedence, #duplaerkely, #2parkolo, #futottmedence, #klimaslakas, #amerikaikonyha
Az Aranypart egyik különleges lakóingatlana várja új tulajdonosát! Miért különleges? 3 külön nyíló hálószoba a tágas amerikai konyhás nappaliból. Két erkély. Saját medence a társasház 10 lakásának. A Balaton, Arany parti szabad strand mindössze pár lépésre. Nem csak strandolásra, kényelmes sétára a kiépített sétányon. A környék pedig egész évben élhető, igényes környezetet biztosít.
Főbb jellemzők
114 m² lakótér – tágas nappali, + 3 külön nyíló hálószoba, tágas, kádas fürdőszoba, külön zuhanyzós fürdőszoba, mindkettőben toalett. Hatalmas gardrób szekrények.
2 kényelmes erkély
Cirkó fűtés, + légkondicionáló – ideális állandó lakhatáshoz
2 saját parkolóhely zárt udvaron, mindig van parkolóhely a lépcsőházhoz közel.
10 lakásos társasház – csendes, barátságos lakóközösség.
Lakóingatlan (lakás) besorolású ingatlan, könnyen hitelezhető.
Kiemelt előny:
teljes bútorzat a vételárban
2 gépkocsi beálló a vételárben
saját medence a társasház udvarán! Gyermekes családok számára biztonságos, jól átlátható környezet. Ideális hely a kicsiknek a vízhez szokni, játszani, barátkozni. A felnőtteknek pedig tökéletes lazítási lehetőség a nyári napokon. A Balaton után vagy helyett kiváló alternatíva – nincs tömeg, nincs zsúfoltság.
Az Aranyparti ingatlanok között rendkívül ritka, hogy ilyen minőségi, saját használatú medence álljon a lakók rendelkezésére.
Kinek ideális?
Családoknak, akik biztonságos, mégis víz közelben lévő otthont keresnek.
Olyan tulajdonosoknak, akik egész évben igényes környezetben szeretnének élni
Befektetőknek, akik értékálló, kiemelt lokációjú lakást keresnek.
Az ingatlant az első tulajdonostól figyelembe véve, csak családosok és nyaralásra használták. Nem hasznosították rövid vagy hosszú távú kiadásra. A lakás mind műszakilag, mind esztétikailag megkímélt, karbantartott állapotban van.
#balaton, #balatonpart, #balatonilakas, #balatoniingatlan, #balatonaranypart, #siofok, #siofokaranypart, #siofokingatlan, #balatonilakás, #csaladbarat, #csaladinagy, #3haloszoba,
#medencéslakás, #gyerekbarat, #sajatmedence, #duplaerkely, #2parkolo, #futottmedence, #klimaslakas, #amerikaikonyha
Regisztrációs szám
H511243
Az ingatlan adatai
Értékesités
eladó
Jogi státusz
használt
Jelleg
lakás
Építési mód
tégla
Méret
114 m²
Bruttó méret
134 m²
Terasz / erkély mérete
20 m²
Fűtés
Gáz cirkó
Belmagasság
265 cm
Tájolás
Észak-nyugat
Lépcsőház típusa
függőfolyosó
Állapot
Jó
Homlokzat állapota
Jó
Lépcsőház állapota
Jó
Környék
csendes, jó közlekedés, zöld
Építés éve
2008
Fürdőszobák száma
2
Fekvés
udvari
Közös költség
35000
Víz
Van
Gáz
Van
Villany
Van
Csatorna
Van
Vízpart távolsága
vízparti
Helyiségek
nappali-konyha
45 m²
fürdőszoba-wc
4 m²
fürdőszoba-wc
10 m²
szoba
12 m²
szoba
12 m²
szoba
12 m²
erkély
14 m²
erkély
6 m²
Dienes László
Hitelszakértő