Elérhető Otthon Start hitellel
Eladó panel lakás,
H511205
Budapest XI. kerület, Őrmező, Neszmélyi út
79 900 000 Ft
209 000 €
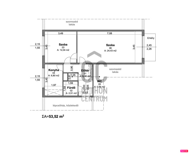
- 55m²
- 2 szoba
- 6. emelet
VILÁGOS, CSENDES, ERKÉLYES LAKÁS, REMEK TÖMEGKÖZLEKEDÉSSEL!
Budapest XI. kerületének szívében Őrmező részén, tökéletes választás fiatalok, egyedülállók vagy párok számára, akik egy kényelmes otthont keresnek, vagy akár befektetési lehetőséget fontolgatnak.
A jó állapotú, karbantartott társasház hatodik emeletén található ez az 55 nm-es + 3 nm-es erkéllyel rendelkező lakás.
Az erkélye ideális helyszín a reggeli kávé elfogyasztására, miközben a környék csendes és nyugodt légkörét élvezheted.
A lakás állapota jó, és távfűtés biztosítja a kellemes hőmérsékletet a hideg téli hónapokban, ráadásul az egyedi mérés lehetővé teszi a költségek hatékonyabb kezelését.
A beépített bútorok és szekrények segítenek a praktikus tárolásban, így a lakás rendezett és otthonos maradhat.
Közös költség 12.650. Ft mely tartalmazza a felújítási alapot, lift használatot, takarítást, szemét díjat és a közös terek világítását is.
A környék ellátottsága kiváló, hiszen minden szükséges szolgáltatás, bolt, iskola és szórakozási lehetőség könnyen elérhető, így nem kell messzire menned a mindennapi élethez.
A közlekedés szempontjából is ideális választás: a kitűnő közlekedési lehetőségeknek köszönhetően gyorsan elérheted a belvárost, de a környék biztonságos és csendes, ami különösen fontos lehet számodra. A 153 és 154-es busznak 100 méterre van a megállója, mellyel a Kelenföldi pályaudvarhoz, M4-es metróhoz, ETELE plázához , Info parkhoz és Újbuda-központhoz (ALLEE) hoz is gyorsan eljuthatunk.
M4-es metró 5-6 perc kényelmes sétával is elérhető.
A környék kifejezetten sok zöld területtel rendelkezik, barátságos és nyugodt. Ideális családoknak vagy idősebbeknek egyaránt.
Ez a tehermentes ingatlan nemcsak egy új lakás lehet számodra, hanem egy igazi otthon is, ahol a mindennapjaidat élvezheted. Ha bármilyen kérdésed van a lakással vagy a környékkel kapcsolatban, ne habozz bizalommal keresni! Szívesen segítek neked a döntésedben, hogy megtaláld a számodra legmegfelelőbb ingatlant.
Várom megkeresésedet hétköznap és hétvégén is!
A jó állapotú, karbantartott társasház hatodik emeletén található ez az 55 nm-es + 3 nm-es erkéllyel rendelkező lakás.
Az erkélye ideális helyszín a reggeli kávé elfogyasztására, miközben a környék csendes és nyugodt légkörét élvezheted.
A lakás állapota jó, és távfűtés biztosítja a kellemes hőmérsékletet a hideg téli hónapokban, ráadásul az egyedi mérés lehetővé teszi a költségek hatékonyabb kezelését.
A beépített bútorok és szekrények segítenek a praktikus tárolásban, így a lakás rendezett és otthonos maradhat.
Közös költség 12.650. Ft mely tartalmazza a felújítási alapot, lift használatot, takarítást, szemét díjat és a közös terek világítását is.
A környék ellátottsága kiváló, hiszen minden szükséges szolgáltatás, bolt, iskola és szórakozási lehetőség könnyen elérhető, így nem kell messzire menned a mindennapi élethez.
A közlekedés szempontjából is ideális választás: a kitűnő közlekedési lehetőségeknek köszönhetően gyorsan elérheted a belvárost, de a környék biztonságos és csendes, ami különösen fontos lehet számodra. A 153 és 154-es busznak 100 méterre van a megállója, mellyel a Kelenföldi pályaudvarhoz, M4-es metróhoz, ETELE plázához , Info parkhoz és Újbuda-központhoz (ALLEE) hoz is gyorsan eljuthatunk.
M4-es metró 5-6 perc kényelmes sétával is elérhető.
A környék kifejezetten sok zöld területtel rendelkezik, barátságos és nyugodt. Ideális családoknak vagy idősebbeknek egyaránt.
Ez a tehermentes ingatlan nemcsak egy új lakás lehet számodra, hanem egy igazi otthon is, ahol a mindennapjaidat élvezheted. Ha bármilyen kérdésed van a lakással vagy a környékkel kapcsolatban, ne habozz bizalommal keresni! Szívesen segítek neked a döntésedben, hogy megtaláld a számodra legmegfelelőbb ingatlant.
Várom megkeresésedet hétköznap és hétvégén is!
Regisztrációs szám
H511205
Az ingatlan adatai
Értékesités
eladó
Jogi státusz
használt
Jelleg
lakás
Építési mód
panel
Méret
55 m²
Bruttó méret
55 m²
Terasz / erkély mérete
3 m²
Fűtés
egyedi távfűtés
Belmagasság
275 cm
Lakáson belüli szintszám
1
Tájolás
Dél-kelet
Lépcsőház típusa
zárt lépcsőház
Állapot
Jó
Homlokzat állapota
Jó
Lépcsőház állapota
Jó
Építés éve
1975
Fürdőszobák száma
1
Fekvés
kertre néző
Közös költség
12500
Víz
Van
Gáz
Van
Villany
Van
Csatorna
Van
Lift
van
Helyiségek
nappali
24.4 m²
előszoba
6.3 m²
konyha
6.8 m²
hálószoba
12 m²
erkély
3.5 m²
Ruczek János
Hitelszakértő