200 000 Ft
530 €
- 51m²
- 3 szoba
- 1. emelet
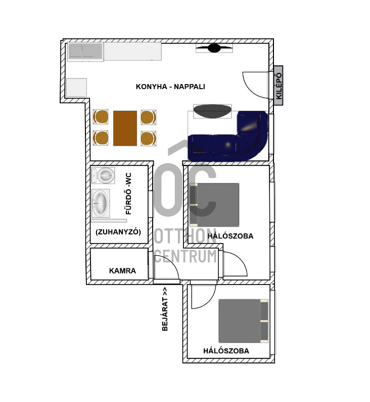
Felújított , nappali-konyhás + 2 hálószobás, I. emeleti lakás várja albérlőjét Tatán, az Öreg-tótól 200m-re.
Az ingatlan teljeskörűen és ízlésesen lett felújítva, rengeteg praktikus átalakítással megspékelve.
A nappaliba bekerült a konyha, így a család akár a pihenéssel, akár az étkezés közben, akár a főzésnél együtt lehet.
2 külön nyíló hálószoba lett kialakítva, ezzel megszűnt a helyiségeken keresztül járás.
A fürdőszoba a régi kád helyett üvegparavános, tágas és modern zuhanyfülkét kapott.
A bejáratnál egy klasszikus előszoba is kialakult, a folyosón pedig további helyet takarítottak meg a praktikus tolóajtóknak köszönhetően.
A tárolásra egy külön nyíló kamra helyiség áll rendelkezésre, ami a mosógépnek és a bojlernek is helyet ad, illetve a folyosón kialakítottak egy beugrót, ahova gardrób szekrény került.
Az ingatlan műanyag nyílászárókkal rendelkezik és egy szigetelt társasház része.
A fűtés helyiségeként elhelyezett elektromos fali fűtőpanelokkal történik, így tetszőlegesen szabályozható.
A lakás konyhabútorral, kerámia főzőlappal, elektromos sütővel, hűtővel, étkezőasztallal, valamint fürdőszoba bútorral és gardrób szekrénnyel felszerelt.
Központi elhelyezkedése ellenére kimondottan csendes környezetben fekszik,
és gyalogos távolságra van a hétköznapi szükségletektől (boltok, buszállomás, iskola, óvoda, orvosi rendelő stb.) valamint Tata nevezetességeitől (Öreg-tó, Vár és környéke ).
Parkolásra közvetlenül társasház mellett rengeteg hely áll rendelkezésre.
A lakás azonnal költözhető.
2 havi kaució szükséges.
A lakás eddig is mentes volt a dohányzástól és ezután sem megengedett.
Komoly, rendes albérlő(ke)t keresünk, hosszú távú együttműködésre, aki(k) akár munkáltatói igazolást is be tudna(k) mutatni a bérleti szerződés előtt.
Mivel 51nm-es lakásról van szó, kérem vegyék figyelemebe, hogy a tulajdonos nem nagycsaládosok jelentkezését várja.
Ha szeretné megtekinteni a lakást, az eredményesebb kommunikáció érdekében kérem, mindenképp telefonon vegye fel a kapcsolatot.
Keressen bizalommal!
Az ingatlan teljeskörűen és ízlésesen lett felújítva, rengeteg praktikus átalakítással megspékelve.
A nappaliba bekerült a konyha, így a család akár a pihenéssel, akár az étkezés közben, akár a főzésnél együtt lehet.
2 külön nyíló hálószoba lett kialakítva, ezzel megszűnt a helyiségeken keresztül járás.
A fürdőszoba a régi kád helyett üvegparavános, tágas és modern zuhanyfülkét kapott.
A bejáratnál egy klasszikus előszoba is kialakult, a folyosón pedig további helyet takarítottak meg a praktikus tolóajtóknak köszönhetően.
A tárolásra egy külön nyíló kamra helyiség áll rendelkezésre, ami a mosógépnek és a bojlernek is helyet ad, illetve a folyosón kialakítottak egy beugrót, ahova gardrób szekrény került.
Az ingatlan műanyag nyílászárókkal rendelkezik és egy szigetelt társasház része.
A fűtés helyiségeként elhelyezett elektromos fali fűtőpanelokkal történik, így tetszőlegesen szabályozható.
A lakás konyhabútorral, kerámia főzőlappal, elektromos sütővel, hűtővel, étkezőasztallal, valamint fürdőszoba bútorral és gardrób szekrénnyel felszerelt.
Központi elhelyezkedése ellenére kimondottan csendes környezetben fekszik,
és gyalogos távolságra van a hétköznapi szükségletektől (boltok, buszállomás, iskola, óvoda, orvosi rendelő stb.) valamint Tata nevezetességeitől (Öreg-tó, Vár és környéke ).
Parkolásra közvetlenül társasház mellett rengeteg hely áll rendelkezésre.
A lakás azonnal költözhető.
2 havi kaució szükséges.
A lakás eddig is mentes volt a dohányzástól és ezután sem megengedett.
Komoly, rendes albérlő(ke)t keresünk, hosszú távú együttműködésre, aki(k) akár munkáltatói igazolást is be tudna(k) mutatni a bérleti szerződés előtt.
Mivel 51nm-es lakásról van szó, kérem vegyék figyelemebe, hogy a tulajdonos nem nagycsaládosok jelentkezését várja.
Ha szeretné megtekinteni a lakást, az eredményesebb kommunikáció érdekében kérem, mindenképp telefonon vegye fel a kapcsolatot.
Keressen bizalommal!
Regisztrációs szám
H511115
Az ingatlan adatai
Értékesités
kiadó
Jogi státusz
használt
Jelleg
lakás
Építési mód
tégla
Méret
51 m²
Bruttó méret
51 m²
Terasz / erkély mérete
0,3 m²
Belmagasság
270 cm
Tájolás
Észak-kelet
Lépcsőház típusa
zárt lépcsőház
Állapot
Kiváló
Homlokzat állapota
Jó
Lépcsőház állapota
Jó
Építés éve
1970
Fürdőszobák száma
1
Fekvés
udvari
Víz
Van
Villany
Van
Csatorna
Van
Tároló
Közös
Helyiségek
nappali-konyha
21 m²
szoba
11 m²
szoba
10 m²
fürdőszoba-wc
4 m²
kamra
2 m²
előszoba
2 m²
közlekedő
3 m²
Sovány Nóra
Hitelszakértő