119 900 000 Ft
319 000 €
- 74m²
- 2 szoba
- 3. emelet
Modern, Refined Home in the Heart of the City – Where Tranquility Meets Urban Living
Step into a downtown apartment that feels harmonious and inviting from the very first moment. Welcome home!
SUMMARY
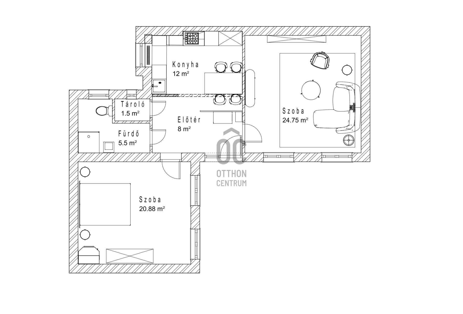
Located in Budapest’s 6th district, on Bajcsy-Zsilinszky Road, this 74 m² apartment is situated on the 3rd floor of a well-maintained, elevator-equipped classical building. The property features a living room + bedroom layout, a separate kitchen, its own storage room, and a bathroom. With its courtyard-facing orientation, the apartment is exceptionally quiet and bright.
The interior has been fully renovated and offers a modern, clean, and cozy atmosphere—ready for immediate move-in.
A perfect choice for anyone seeking a stylish inner-city home or a long-term, value-stable investment.
MODERN HOME WITH TIMELESS CLASSICAL DETAILS
The apartment has undergone a complete renovation, designed with great attention to detail and high-quality materials, while preserving the charm of classic architecture: 3.7-meter ceiling height, herringbone parquet flooring, and elegant original interior doors.
The spacious living room and the 20.88 m² bedroom face the inner courtyard, providing complete peace and privacy with no foot traffic in front of the windows. The bathroom features a large window overlooking an open lightwell—just like the kitchen and the storage area—ensuring plenty of natural light throughout the home.
The bedroom is equipped with air conditioning (cooling & heating), while the living room has AC preparation installed. Heating and hot water are provided by an Ariston combi boiler with radiators, and the rooms feature built-in shutters.
This home offers a modern, refined, and cozy atmosphere within a calm inner-city courtyard environment.
BUILDING
Located on the top floor of an early 1890s classical building, the apartment benefits from the charm and character of traditional architecture. The building is well-managed, clean, financially stable, and continuously maintained thanks to responsible condominium management. The roof has already been renovated, and the interior façade will soon be refreshed through a grant-based renovation project.
All utilities (water, electricity, gas) are individually metered, and the apartment’s running costs are favorable due to modern mechanical systems and energy-efficient solutions.
Street parking is available with a discounted residential permit, and several garage rental options can be found nearby for added convenience.
NEIGHBORHOOD
Situated in the heart of Budapest, the property is just a few minutes’ walk from Nyugati Station, offering fast and convenient access across the city via metro, tram, and multiple bus lines.
The Arany János utca metro stop is approximately a 9-minute walk, while Oktogon and Andrássy Avenue are about 12 minutes away on foot. For those who love nature and recreation, Margaret Island is easily reachable with a short walk or a single tram stop—perfect for running, picnics, or weekend relaxation.
The area excels not only in transport connections but also in lifestyle offerings:
– trendy cafés, bars, and wine spots for evening relaxation
– charming walks around the Basilica or towards Nyugati
– diverse restaurants, shops, and services at every corner
– cultural venues and elegant, historic streets full of architectural character
This neighborhood is ideal for those who enjoy the vibrant rhythm of the city center while appreciating the timeless charm of classical urban streets. The modern apartment blends seamlessly into this historic setting—bringing together the best of past and present.
Come and see this delightful home in person. I look forward to your call!
----------------------------------------------
Additional Services
We provide complimentary, bank-independent mortgage advisory to help our buyer clients make the most advantageous financing decisions. Optional services such as legal assistance, energy certification, and electrical safety inspections are also available, offering full professional support throughout the entire buying process.
All information in this listing is for informational purposes only. Prices and details are subject to change. We do not take responsibility for typographical or technical errors.
SUMMARY
Located in Budapest’s 6th district, on Bajcsy-Zsilinszky Road, this 74 m² apartment is situated on the 3rd floor of a well-maintained, elevator-equipped classical building. The property features a living room + bedroom layout, a separate kitchen, its own storage room, and a bathroom. With its courtyard-facing orientation, the apartment is exceptionally quiet and bright.
The interior has been fully renovated and offers a modern, clean, and cozy atmosphere—ready for immediate move-in.
A perfect choice for anyone seeking a stylish inner-city home or a long-term, value-stable investment.
MODERN HOME WITH TIMELESS CLASSICAL DETAILS
The apartment has undergone a complete renovation, designed with great attention to detail and high-quality materials, while preserving the charm of classic architecture: 3.7-meter ceiling height, herringbone parquet flooring, and elegant original interior doors.
The spacious living room and the 20.88 m² bedroom face the inner courtyard, providing complete peace and privacy with no foot traffic in front of the windows. The bathroom features a large window overlooking an open lightwell—just like the kitchen and the storage area—ensuring plenty of natural light throughout the home.
The bedroom is equipped with air conditioning (cooling & heating), while the living room has AC preparation installed. Heating and hot water are provided by an Ariston combi boiler with radiators, and the rooms feature built-in shutters.
This home offers a modern, refined, and cozy atmosphere within a calm inner-city courtyard environment.
BUILDING
Located on the top floor of an early 1890s classical building, the apartment benefits from the charm and character of traditional architecture. The building is well-managed, clean, financially stable, and continuously maintained thanks to responsible condominium management. The roof has already been renovated, and the interior façade will soon be refreshed through a grant-based renovation project.
All utilities (water, electricity, gas) are individually metered, and the apartment’s running costs are favorable due to modern mechanical systems and energy-efficient solutions.
Street parking is available with a discounted residential permit, and several garage rental options can be found nearby for added convenience.
NEIGHBORHOOD
Situated in the heart of Budapest, the property is just a few minutes’ walk from Nyugati Station, offering fast and convenient access across the city via metro, tram, and multiple bus lines.
The Arany János utca metro stop is approximately a 9-minute walk, while Oktogon and Andrássy Avenue are about 12 minutes away on foot. For those who love nature and recreation, Margaret Island is easily reachable with a short walk or a single tram stop—perfect for running, picnics, or weekend relaxation.
The area excels not only in transport connections but also in lifestyle offerings:
– trendy cafés, bars, and wine spots for evening relaxation
– charming walks around the Basilica or towards Nyugati
– diverse restaurants, shops, and services at every corner
– cultural venues and elegant, historic streets full of architectural character
This neighborhood is ideal for those who enjoy the vibrant rhythm of the city center while appreciating the timeless charm of classical urban streets. The modern apartment blends seamlessly into this historic setting—bringing together the best of past and present.
Come and see this delightful home in person. I look forward to your call!
----------------------------------------------
Additional Services
We provide complimentary, bank-independent mortgage advisory to help our buyer clients make the most advantageous financing decisions. Optional services such as legal assistance, energy certification, and electrical safety inspections are also available, offering full professional support throughout the entire buying process.
All information in this listing is for informational purposes only. Prices and details are subject to change. We do not take responsibility for typographical or technical errors.
Regisztrációs szám
H510989
Az ingatlan adatai
Értékesités
eladó
Jogi státusz
használt
Jelleg
lakás
Építési mód
tégla
Méret
74 m²
Bruttó méret
74 m²
Fűtés
Gáz cirkó
Belmagasság
370 cm
Lakáson belüli szintszám
1
Tájolás
Dél-nyugat
Lépcsőház típusa
körfolyosó
Állapot
Kiváló
Homlokzat állapota
Jó
Lépcsőház állapota
Átlagos
Építés éve
1892
Fürdőszobák száma
1
Fekvés
udvari
Közös költség
25500
Víz
Van
Gáz
Van
Villany
Van
Csatorna
Van
Lift
van
Helyiségek
hálószoba
20.88 m²
fürdőszoba-wc
5.5 m²
tároló
1.5 m²
előszoba
8 m²
konyha-étkező
12 m²
nappali
24.75 m²
Tóth Róbert
Hitelszakértő