154 999 000 Ft
406 000 €
- 109m²
- 5 szoba
ZSÁMBÉK PREMIER LOKÁCIÓ: 2023-as Építésű, AA+ Energetikájú Luxus Otthon – Azonnal Költözhető!
Szeretne egy új építésű házat, de nem akar éveket várni a kivitelezésre? Zsámbék legfelkapottabb, új parcellázású részén eladó ez a minden igényt kielégítő, 2023-ban átadott, gyakorlatilag érintetlen prémium családi ház.
Ez az ingatlan nem kompromisszumokról, hanem a tökéletes kényelemről és a zéró rezsiről szól.
AZ INGATLAN SZÁMOKBAN
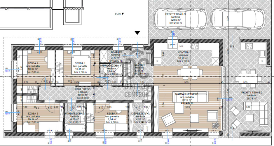
Ház: 109 m² nettó lakótér | Nappali + 4 hálószoba | 2 fürdőszoba.
Telek: 715 m² | Gondozásmentes, parkosított.
Garázs: 42 m² (kétállásos) + 3 udvari beálló.
Terasz: 29 m² fedett relaxációs zóna.
PRÉMIUM ÉLETÉRZÉS ÉS ELRENDEZÉS A tágas amerikai konyhás nappali mellett 4 teljes értékű hálószoba kapott helyet. A szülői háló saját fürdőszobával biztosítja az intim szférát. Az enteriőrt az elegáns antracit nyílászárók és beltéri ajtók, valamint a tágas terek teszik modernné és időtállóvá.
TECHNOLÓGIA ÉS ENERGIAHATÉKONYSÁG (Fenntartás: Szinte ingyen!) A ház műszaki tartalma messze túlmutat a piaci átlagon:
Falazat: 30-as Porotherm + 20 cm grafitos homlokzati szigetelés + 30 cm födémszigetelés.
Gépészet: Panasonic hőszivattyú (padlófűtés + HMV) helyiségenkénti vezérléssel.
Vízlágyító: Központi rendszer védi a gépészetet és csaptelepeket a vízkőtől.
Nyílászárók: 3 rétegű üvegezés, elektromos alumínium redőnyökkel és pliszé szúnyoghálóval.
Hűtés: 2 db nagyteljesítményű klíma gondoskodik a nyári melegről.
KERT – AHOL A PIHENÉSÉ A FŐSZEREP Felejtse el a hétvégi fűnyírást! A kertet robotfűnyíró és automata öntözőrendszer tartja karban.
Travertin mészkővel burkolt kerítés, antracit alumínium betétekkel.
Játszótér / Medence előkészítés: 30 m² minőségi műfű.
Kerti partikhoz: 5 m² térkövezett tűzrakóhely.
Külön kerti tároló a szerszámoknak.
BIZTONSÁG: Kiépített kamerarendszer és riasztó védi értékeit.
KINEK AJÁNLOM? Olyan családoknak, akik a kompromisszummentes minőséget keresik, és értékelik, hogy egy új háznál nem kell a kivitelezőkkel küzdeni – csak beköltözni és élvezni a luxust.
Az ingatlan tehermentes, rövid határidővel költözhető. Hívjon még ma, mert ez a minőség ezen a környéken ritka kincs!
Ez az ingatlan nem kompromisszumokról, hanem a tökéletes kényelemről és a zéró rezsiről szól.
AZ INGATLAN SZÁMOKBAN
Ház: 109 m² nettó lakótér | Nappali + 4 hálószoba | 2 fürdőszoba.
Telek: 715 m² | Gondozásmentes, parkosított.
Garázs: 42 m² (kétállásos) + 3 udvari beálló.
Terasz: 29 m² fedett relaxációs zóna.
PRÉMIUM ÉLETÉRZÉS ÉS ELRENDEZÉS A tágas amerikai konyhás nappali mellett 4 teljes értékű hálószoba kapott helyet. A szülői háló saját fürdőszobával biztosítja az intim szférát. Az enteriőrt az elegáns antracit nyílászárók és beltéri ajtók, valamint a tágas terek teszik modernné és időtállóvá.
TECHNOLÓGIA ÉS ENERGIAHATÉKONYSÁG (Fenntartás: Szinte ingyen!) A ház műszaki tartalma messze túlmutat a piaci átlagon:
Falazat: 30-as Porotherm + 20 cm grafitos homlokzati szigetelés + 30 cm födémszigetelés.
Gépészet: Panasonic hőszivattyú (padlófűtés + HMV) helyiségenkénti vezérléssel.
Vízlágyító: Központi rendszer védi a gépészetet és csaptelepeket a vízkőtől.
Nyílászárók: 3 rétegű üvegezés, elektromos alumínium redőnyökkel és pliszé szúnyoghálóval.
Hűtés: 2 db nagyteljesítményű klíma gondoskodik a nyári melegről.
KERT – AHOL A PIHENÉSÉ A FŐSZEREP Felejtse el a hétvégi fűnyírást! A kertet robotfűnyíró és automata öntözőrendszer tartja karban.
Travertin mészkővel burkolt kerítés, antracit alumínium betétekkel.
Játszótér / Medence előkészítés: 30 m² minőségi műfű.
Kerti partikhoz: 5 m² térkövezett tűzrakóhely.
Külön kerti tároló a szerszámoknak.
BIZTONSÁG: Kiépített kamerarendszer és riasztó védi értékeit.
KINEK AJÁNLOM? Olyan családoknak, akik a kompromisszummentes minőséget keresik, és értékelik, hogy egy új háznál nem kell a kivitelezőkkel küzdeni – csak beköltözni és élvezni a luxust.
Az ingatlan tehermentes, rövid határidővel költözhető. Hívjon még ma, mert ez a minőség ezen a környéken ritka kincs!
Regisztrációs szám
H510498
Az ingatlan adatai
Értékesités
eladó
Jogi státusz
használt
Jelleg
ház
Építési mód
tégla
Méret
109 m²
Bruttó méret
109 m²
Telek méret
715 m²
Terasz / erkély mérete
28,5 m²
Fűtés
hőszivattyú
Belmagasság
280 cm
Tájolás
Észak-kelet
Állapot
Kiváló
Homlokzat állapota
Kiváló
Építés éve
2023
Fürdőszobák száma
2
Garázs
Benne van az árban
Garázs férőhely
2
Víz
Van
Villany
Van
Csatorna
Van
Tároló
Önálló
Helyiségek
garázs
42 m²
előszoba
6.5 m²
kamra
2.4 m²
konyha
10.2 m²
nappali-étkező
30.1 m²
közlekedő
10 m²
kazánház
4.3 m²
hálószoba
8 m²
hálószoba
10.15 m²
hálószoba
10 m²
hálószoba
1.1 m²
fürdőszoba-wc
3.2 m²
fürdőszoba-wc
4 m²
terasz
28.7 m²