Elérhető Otthon Start hitellel
Eladó családi ház, H510278
Pomáz

39 000 000 Ft

102 000 €

  • 75,5m²
  • 4 szoba

Bontandó/felújítandó ház eladó Pomázon

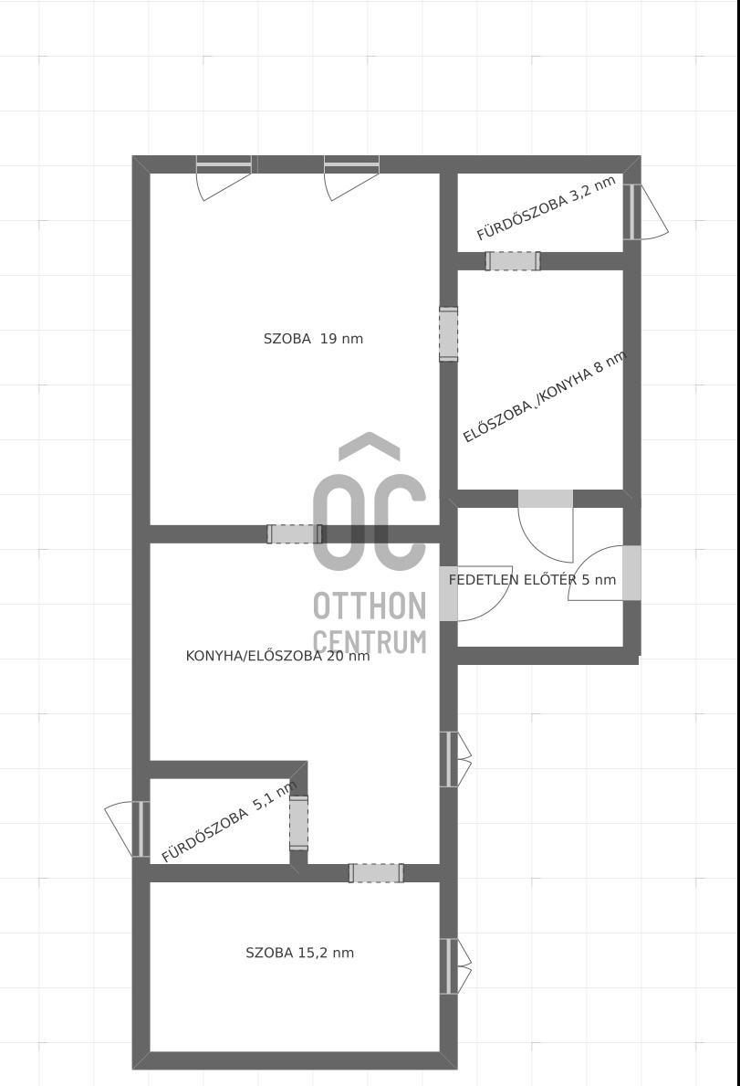
Eladóvá vált Pomázon egy vegyes falazatú teljesen felújítandó, illetve bontandó ház. Nagyjából az 1930-as évek elején épült. Kert sajnos jelenleg nem tartozik hozzá,de mivel bontandó állapotban van, a későbbiekben kialakítható elképzelés szerint. Jelenleg 2 lakásként használják, van egy fedetlen előtér és onnan 2 külön bejárata van és mindkét lakásban van 1 konyha , 1 fürdőszoba és 1 különnyíló szoba. Az ingatlan elhelyezkedése központi részen van. Autóval 15 perc alatt elérhető Szentendre és Budapest egyaránt. 3 perc sétára elérhetőek a helyi buszjáratok (Csobánka,Pilisszentkereszt,Dobogókő irányába) és 15 perc sétára a H5-ös hévmegálló is elérhető,amivel 40 perc alatt Pesten lehet lenni.
A környéken minden megtalálható, mint például orvosi rendelő, éjjel-nappali gyógyszertár,állatorvosi rendelő,SPAR és egyéb bevásárlási lehetőségek,Dera park,bank, posta,éttermek, stb......gyakorlatilag tényleg minden.
A környező hegyvidékek közelsége nagyszerű lehetőséget ad a túrázni vágyóknak.
Kérdés esetén szeretettel várom hívását!

Regisztrációs szám

H510278

Az ingatlan adatai

Értékesités
eladó
Jogi státusz
használt
Jelleg
ház
Építési mód
vegyesfalazatú
Méret
75,5 m²
Bruttó méret
96 m²
Telek méret
96 m²
Fűtés
gázkonvektor
Belmagasság
200 cm
Tájolás
Észak-kelet
Állapot
Bontandó
Homlokzat állapota
Rossz
Környék
jó közlekedés
Építés éve
1930
Fürdőszobák száma
2
Víz
Van
Gáz
Van
Villany
Van
Csatorna
Van

Helyiségek

konyha
20 m²
konyha
8 m²
fürdőszoba
3.2 m²
fürdőszoba
5.1 m²
egyéb helyiség
19 m²
egyéb helyiség
15.2 m²
Andrejcsik Nikoletta
Andrejcsik Nikoletta

Hitelszakértő

Irodánk kínálatából - III. kerület - Békásmegyer

for sale new construction apartment

Index image
data_sheet.details.realestate.section.main.otthonstart_flag.label
6

for sale new construction apartment

Index image
data_sheet.details.realestate.section.main.otthonstart_flag.label
6

for sale new construction semi-detached house

Index image
7

for sale panel apartment

Index image
data_sheet.details.realestate.section.main.otthonstart_flag.label
14

for sale new construction apartment

Index image
20

for sale panel apartment

Index image
44