Elérhető Otthon Start hitellel
Eladó lakás,
H510277
Budapest VII. kerület, Külső Erzsébetváros
83 900 000 Ft
220 000 €
- 63m²
- 2 szoba
- 1. emelet
Elegant, Fully Renovated Apartment for Sale in the Heart of District VII – Szövetség Street
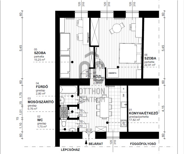
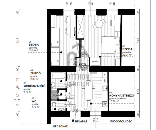
Located on a quiet and charming street just a few steps from the Grand Boulevard, this 63 m² first-floor home was completely and tastefully renovated two years ago. The apartment is accessed through a well-maintained staircase of a classic building, combining modern comfort with timeless elegance.
The spacious kitchen with dining area forms the heart of the home, offering a bright and welcoming atmosphere thanks to its western orientation. From here, you’ll find access to the bathroom, a separate toilet, and a practical laundry room.
The two east-facing bedrooms overlook a quiet, well-kept street, providing a peaceful retreat from city life.
The apartment features high ceilings (3.9 m), airy spaces, and elegant finishes. It is offered fully furnished, with kitchen appliances under warranty, modern electric panel heating, and an energy-efficient water heater. A 6 m² storage room in the basement also belongs to the property.
The building and courtyard are neat and well-maintained, with a friendly community of residents. The neighborhood is rapidly developing – two new hotels are currently being built on the same street, and a park, shops, and various services are all within easy reach.
An excellent choice both as a personal home and as an investment opportunity.
The spacious kitchen with dining area forms the heart of the home, offering a bright and welcoming atmosphere thanks to its western orientation. From here, you’ll find access to the bathroom, a separate toilet, and a practical laundry room.
The two east-facing bedrooms overlook a quiet, well-kept street, providing a peaceful retreat from city life.
The apartment features high ceilings (3.9 m), airy spaces, and elegant finishes. It is offered fully furnished, with kitchen appliances under warranty, modern electric panel heating, and an energy-efficient water heater. A 6 m² storage room in the basement also belongs to the property.
The building and courtyard are neat and well-maintained, with a friendly community of residents. The neighborhood is rapidly developing – two new hotels are currently being built on the same street, and a park, shops, and various services are all within easy reach.
An excellent choice both as a personal home and as an investment opportunity.
Regisztrációs szám
H510277
Az ingatlan adatai
Értékesités
eladó
Jogi státusz
használt
Jelleg
lakás
Építési mód
tégla
Méret
63 m²
Bruttó méret
63 m²
Fűtés
elektromos cirkó
Belmagasság
390 cm
Tájolás
Kelet
Lépcsőház típusa
körfolyosó
Állapot
Jó
Homlokzat állapota
Jó
Lépcsőház állapota
Jó
Építés éve
1896
Fürdőszobák száma
1
Fekvés
utcai
Közös költség
22000
Víz
Van
Gáz
Van
Villany
Van
Csatorna
Van
Helyiségek
konyha-étkező
17.82 m²
hálószoba
22.91 m²
hálószoba
15.25 m²
Örvössy Tamás
Hitelszakértő