Elérhető Otthon Start hitellel
Eladó panel lakás,
H509777
Debrecen, Vezér úti lakótelep
89 000 000 Ft
230 000 €
- 68m²
- 3 szoba
- 2. emelet
Eladó Debrecenben, a Vezér utcán egy 68 m²-es, felújított lakás
Eladó Debrecenben, a Vezér utcán, egy 68 m²-es, nappali + 2 külön nyíló szobás, 2. emeleti lakás, melyhez 3 m²-es erkély és saját, zárható tároló tartozik.
Az ingatlan főbb jellemzői:
•Fűtése gáz-cirkó kazán, helyiségenként szabályozható radiátorokkal, a meleg vizet is ez biztosítja
•Lakberendező által tervezett, magas minőségben, 2024-ben felújított otthon
•Egy darab Midea okos klíma, amely hűtésre és fűtésre is alkalmas
•Műanyag nyílászárók szúnyoghálóval és redőnnyel felszerelve
•A felújítás során cserélve lett a beltéri ajtó
•Saját, privát tároló
•Egyedi gyártású, festett fa frontos konyhabútor minőségi szerelvényekkel
•Előszobai beépített szekrény nagy tárolókapacitással
•Étkezőben egyedi borhűtő-beépítés és praktikus tárolófelületek
•Nappaliban és hálószobában prémium gardróbok, melyek az eladási ár részét képezik
•Külön WC és fürdőszoba
•A felújítás során Ravak szaniterek és Hansgrohe csaptelepek kerültek behelyezésre
•3 m²-es erkély, tóra néző kilátással
Opcionálisan vásárolható külön helyrajzi számon szereplő garázs is, melynek ára 10 millió Ft.
Az ingatlant ajánljuk fiatal pároknak, vagy akár gyermekes családoknak is. Az ingatlan közelében megtalálhatók boltok, egyetem, tömegközlekedés, cukrászda, így akár befektetésnek is kiváló választás lehet. Az erkélyről csodás kilátás nyílik a közeli tóra.
További információkért és megtekintésért kérem hívjon bizalommal!
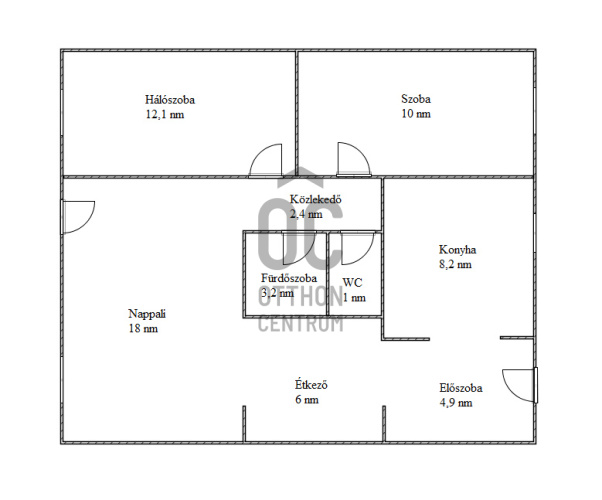
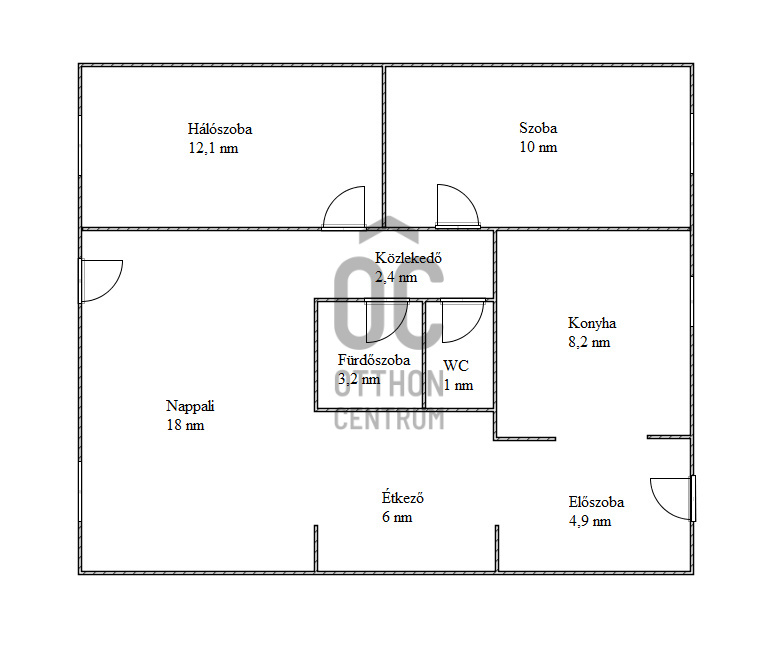
Az alaprajz tájékoztató jellegű!
Az ingatlan főbb jellemzői:
•Fűtése gáz-cirkó kazán, helyiségenként szabályozható radiátorokkal, a meleg vizet is ez biztosítja
•Lakberendező által tervezett, magas minőségben, 2024-ben felújított otthon
•Egy darab Midea okos klíma, amely hűtésre és fűtésre is alkalmas
•Műanyag nyílászárók szúnyoghálóval és redőnnyel felszerelve
•A felújítás során cserélve lett a beltéri ajtó
•Saját, privát tároló
•Egyedi gyártású, festett fa frontos konyhabútor minőségi szerelvényekkel
•Előszobai beépített szekrény nagy tárolókapacitással
•Étkezőben egyedi borhűtő-beépítés és praktikus tárolófelületek
•Nappaliban és hálószobában prémium gardróbok, melyek az eladási ár részét képezik
•Külön WC és fürdőszoba
•A felújítás során Ravak szaniterek és Hansgrohe csaptelepek kerültek behelyezésre
•3 m²-es erkély, tóra néző kilátással
Opcionálisan vásárolható külön helyrajzi számon szereplő garázs is, melynek ára 10 millió Ft.
Az ingatlant ajánljuk fiatal pároknak, vagy akár gyermekes családoknak is. Az ingatlan közelében megtalálhatók boltok, egyetem, tömegközlekedés, cukrászda, így akár befektetésnek is kiváló választás lehet. Az erkélyről csodás kilátás nyílik a közeli tóra.
További információkért és megtekintésért kérem hívjon bizalommal!
Az alaprajz tájékoztató jellegű!
Regisztrációs szám
H509777
Az ingatlan adatai
Értékesités
eladó
Jogi státusz
használt
Jelleg
lakás
Építési mód
panel
Méret
68 m²
Bruttó méret
70 m²
Terasz / erkély mérete
3 m²
Fűtés
Gáz cirkó
Belmagasság
270 cm
Lakáson belüli szintszám
1
Tájolás
Nyugat
Lépcsőház típusa
körfolyosó
Állapot
Jó
Homlokzat állapota
Jó
Lépcsőház állapota
Jó
Építés éve
1990
Fürdőszobák száma
1
Fekvés
udvari
Garázs
Külön vásárolható
Garázs férőhely
1
Víz
Van
Gáz
Van
Villany
Van
Csatorna
Van
Helyiségek
konyha
8.2 m²
előszoba
4.9 m²
ebédlő
6 m²
nappali
18 m²
fürdőszoba
3.2 m²
wc
1 m²
hálószoba
12.1 m²
szoba
10 m²
közlekedő
2.4 m²
erkély
3.25 m²
Czellér András
Hitelszakértő