Elérhető Otthon Start hitellel
Eladó panel lakás,
H509494
Budapest XIII. kerület, Angyalföld
78 900 000 Ft
204 000 €
- 58m²
- 3 szoba
- 7. emelet
XIII. BÉKE TÉR-3 SZOBÁS ÖRÖKPANORÁMÁS PANEL LAKÁS
13. kerületi Béke téren eladó egy 58 nm-es, 3 szobás, 7. emeleti, K-i tájolású, erkélyes, felújított, örök panorámás lakás!
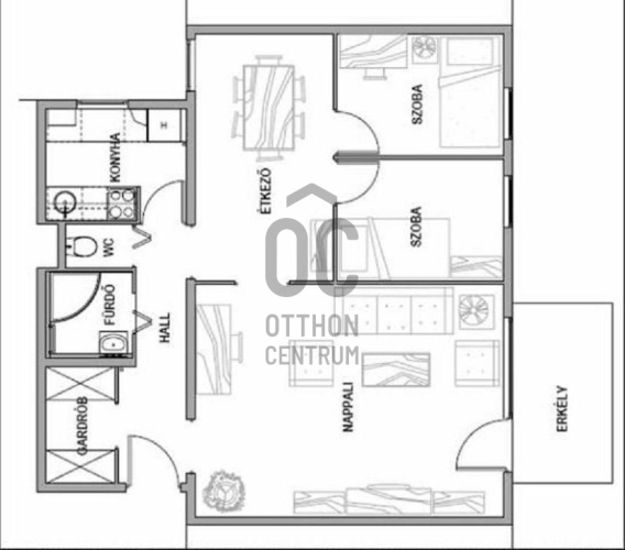
LAKÁS:
-helyiségei: nappali, 2 hálószoba, gardrób, konyha, étkező, fürdőszoba, WC, közlekedő
-mindhárom szoba ablakai a Béke térre néznek, K-i tájolásúak
-a konyha és az étkező ablakai lichthofra néznek
-az ingaltan 2018-ban teljeskörű felújításon esett át, ami megában foglalta a vezetékek felújítását is
-a panelprogram keretein belül megtörtént a nyílászárók cseréje és a fűtéskorszerűsítés is
-fűtése: távfűtés egyedi méréssel
-az ingatlan per-és tehermentes
TÖMEGKÖZLEKEDÉS
A környék kiváló tömegközlekedési adottságokkal bír – a 105-ös és 210-es busz, a 14-es villamos, pár perc sétára az 1-es villamos, és mindössze 10 perc a 3-as metró.
KÖRNYÉK
5 perc sétatávolságra találhatók üzletek (Spar, Lidl, Rossmann), bölcsőde, óvoda, iskola, gyógyszertár, orvosi rendelő, önkormányzat.
Hívjon bizalommal!
LAKÁS:
-helyiségei: nappali, 2 hálószoba, gardrób, konyha, étkező, fürdőszoba, WC, közlekedő
-mindhárom szoba ablakai a Béke térre néznek, K-i tájolásúak
-a konyha és az étkező ablakai lichthofra néznek
-az ingaltan 2018-ban teljeskörű felújításon esett át, ami megában foglalta a vezetékek felújítását is
-a panelprogram keretein belül megtörtént a nyílászárók cseréje és a fűtéskorszerűsítés is
-fűtése: távfűtés egyedi méréssel
-az ingatlan per-és tehermentes
TÖMEGKÖZLEKEDÉS
A környék kiváló tömegközlekedési adottságokkal bír – a 105-ös és 210-es busz, a 14-es villamos, pár perc sétára az 1-es villamos, és mindössze 10 perc a 3-as metró.
KÖRNYÉK
5 perc sétatávolságra találhatók üzletek (Spar, Lidl, Rossmann), bölcsőde, óvoda, iskola, gyógyszertár, orvosi rendelő, önkormányzat.
Hívjon bizalommal!
Regisztrációs szám
H509494
Az ingatlan adatai
Értékesités
eladó
Jogi státusz
használt
Jelleg
lakás
Építési mód
panel
Méret
58 m²
Bruttó méret
60 m²
Terasz / erkély mérete
4 m²
Fűtés
egyedi távfűtés
Belmagasság
280 cm
Lakáson belüli szintszám
1
Tájolás
Kelet
Panoráma
városi panoráma
Lépcsőház típusa
zárt lépcsőház
Állapot
Jó
Homlokzat állapota
Kiváló
Lépcsőház állapota
Jó
Környék
jó közlekedés, zöld, központi
Építés éve
1980
Fürdőszobák száma
1
Fekvés
utcai
Közös költség
20000
Víz
Van
Gáz
Van
Villany
Van
Csatorna
Van
Lift
van
Tároló
Közös
Vízpart távolsága
több mint 500 méterre
Helyiségek
nappali
22 m²
hálószoba
7 m²
hálószoba
7 m²
konyha
5 m²
ebédlő
9 m²
fürdőszoba
2.5 m²
wc
1 m²
gardrób
2 m²
közlekedő
2.5 m²
erkély
4 m²
Vitéz Kornél
Hitelszakértő