170 000 000 Ft
445 000 €
- 235m²
- 5 szoba
ELADÓ 2 GENERÁCIÓS, EGYEDI KIALAKÍTÁSÚ CSALÁDI HÁZ PESTSZENTLŐRINCEN, LIPTÁKTELEPEN!
Csendes, mégis kiváló elhelyezkedésű különleges családi ház eladó a XVIII. kerületben, Liptáktelepen!
A 2003-ban épült, tégla szerkezetű ingatlan 235 m² hasznos alapterülettel, valamint 30 m²-es garázzsal rendelkezik. A gondozott, 664 m²-es telken elhelyezkedő ház most új tulajdonosát várja.
A ház kétgenerációs kialakításra alkalmas, és különlegessége a hatalmas, napfényes terek, a meleg tónusú faburkolatok és a gyönyörű látszógerendás mennyezet, amelyek egyedi, természetközeli hangulatot adnak minden helyiségnek.
Ideális választás nagycsaládosoknak, összeköltözőknek, illetve mindazoknak, akik egy nem mindennapi, tágas és karakteres otthonra vágynak!
________________________________________
FŐBB JELLEMZŐK:
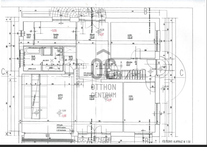
Földszint (137 m²):
•Tágas, világos nappali (kandallóbekötési lehetőséggel)
•Nagy konyha + étkező, természetes fa burkolatokkal
•2 kényelmes hálószoba
•Fürdőszoba (zuhanyzó + kád)
•Külön WC
•Előtér
•Dupla garázs szerelőaknával és tároló nyúlványokkal
A földszinti helyiségekben a nagy belmagasság és a fa részletek különleges térérzetet teremtenek, ami ritkaság a környéken.
________________________________________
Tetőtér (128 m²):
•1 hálószoba
•Fürdőszoba
•Egy óriási, egybenyitott tér, amely igény szerint több szobára is osztható
•Minden közmű előkészítve, így önálló lakrész is kialakítható
A tetőtér szintén fa mennyezettel és látszógerendákkal készült, mely meleg, otthonos hangulatot áraszt, és rengeteg lehetőséget kínál kreatív belsőépítészeti megoldásokra.
________________________________________
Műszaki adatok, extrák:
•Téglaépítés, 44 cm vastag teherhordó falak
•Buderus központi gázkazán fűtés és melegvíz ellátás
•3x32A elektromos teljesítmény
•Elektromos kapu és garázskapu
•Alumínium redőnyök, részben motoros működtetéssel
•Riasztórendszer
•Teljes közművesítés (víz, csatorna, gáz, villany)
________________________________________
Külső jellemzők:
A ház világos homlokzatú, fa nyílászárókkal, erkéllyel és kis terasszal ellátott.
A tágas udvar és a rendezett kert ideális családi programokhoz, pihenéshez vagy akár kerti partikhoz is.
________________________________________
Környék és elhelyezkedés:
A ház Pestszentlőrinc egyik legkedveltebb, nyugodt részén található, barátságos, csendes szomszédokkal.
Minden fontos szolgáltatás gyalogosan elérhető:
•Óvoda, általános és középiskola: 1 utca
•Lidl, OTP Bank, gyógyszertár: kb. 4–5 perc séta
•Kiváló közlekedés: busz, villamos, vasút pár percre
A környék kertvárosi, mégis remek infrastruktúrával és családias hangulattal rendelkezik.
________________________________________
További lehetőségek:
Az ingatlan jelenleg egy bejáratú, de kisebb ráfordítással két külön bejáratú lakássá alakítható.
A külső homlokzat esztétikai felújítást igényel, ami kiváló lehetőséget ad az új tulajdonosnak, hogy saját stílusára szabja ezt az egyedi, hatalmas terekkel rendelkező otthont.
A 2003-ban épült, tégla szerkezetű ingatlan 235 m² hasznos alapterülettel, valamint 30 m²-es garázzsal rendelkezik. A gondozott, 664 m²-es telken elhelyezkedő ház most új tulajdonosát várja.
A ház kétgenerációs kialakításra alkalmas, és különlegessége a hatalmas, napfényes terek, a meleg tónusú faburkolatok és a gyönyörű látszógerendás mennyezet, amelyek egyedi, természetközeli hangulatot adnak minden helyiségnek.
Ideális választás nagycsaládosoknak, összeköltözőknek, illetve mindazoknak, akik egy nem mindennapi, tágas és karakteres otthonra vágynak!
________________________________________
FŐBB JELLEMZŐK:
Földszint (137 m²):
•Tágas, világos nappali (kandallóbekötési lehetőséggel)
•Nagy konyha + étkező, természetes fa burkolatokkal
•2 kényelmes hálószoba
•Fürdőszoba (zuhanyzó + kád)
•Külön WC
•Előtér
•Dupla garázs szerelőaknával és tároló nyúlványokkal
A földszinti helyiségekben a nagy belmagasság és a fa részletek különleges térérzetet teremtenek, ami ritkaság a környéken.
________________________________________
Tetőtér (128 m²):
•1 hálószoba
•Fürdőszoba
•Egy óriási, egybenyitott tér, amely igény szerint több szobára is osztható
•Minden közmű előkészítve, így önálló lakrész is kialakítható
A tetőtér szintén fa mennyezettel és látszógerendákkal készült, mely meleg, otthonos hangulatot áraszt, és rengeteg lehetőséget kínál kreatív belsőépítészeti megoldásokra.
________________________________________
Műszaki adatok, extrák:
•Téglaépítés, 44 cm vastag teherhordó falak
•Buderus központi gázkazán fűtés és melegvíz ellátás
•3x32A elektromos teljesítmény
•Elektromos kapu és garázskapu
•Alumínium redőnyök, részben motoros működtetéssel
•Riasztórendszer
•Teljes közművesítés (víz, csatorna, gáz, villany)
________________________________________
Külső jellemzők:
A ház világos homlokzatú, fa nyílászárókkal, erkéllyel és kis terasszal ellátott.
A tágas udvar és a rendezett kert ideális családi programokhoz, pihenéshez vagy akár kerti partikhoz is.
________________________________________
Környék és elhelyezkedés:
A ház Pestszentlőrinc egyik legkedveltebb, nyugodt részén található, barátságos, csendes szomszédokkal.
Minden fontos szolgáltatás gyalogosan elérhető:
•Óvoda, általános és középiskola: 1 utca
•Lidl, OTP Bank, gyógyszertár: kb. 4–5 perc séta
•Kiváló közlekedés: busz, villamos, vasút pár percre
A környék kertvárosi, mégis remek infrastruktúrával és családias hangulattal rendelkezik.
________________________________________
További lehetőségek:
Az ingatlan jelenleg egy bejáratú, de kisebb ráfordítással két külön bejáratú lakássá alakítható.
A külső homlokzat esztétikai felújítást igényel, ami kiváló lehetőséget ad az új tulajdonosnak, hogy saját stílusára szabja ezt az egyedi, hatalmas terekkel rendelkező otthont.
Regisztrációs szám
H509204
Az ingatlan adatai
Értékesités
eladó
Jogi státusz
használt
Jelleg
ház
Építési mód
tégla
Méret
235 m²
Bruttó méret
265 m²
Telek méret
664 m²
Fűtés
Gáz cirkó
Belmagasság
300 cm
Lakáson belüli szintszám
1
Tájolás
Dél-nyugat
Állapot
Jó
Homlokzat állapota
Jó
Környék
csendes, jó közlekedés, zöld
Építés éve
2003
Fürdőszobák száma
2
Garázs
Benne van az árban
Garázs férőhely
2
Víz
Van
Gáz
Van
Villany
Van
Csatorna
Van
Többgenerációs
igen
Helyiségek
nappali
23 m²
szoba
16 m²
előszoba
5 m²
szoba
15.9 m²
ebédlő
18 m²
konyha
9.9 m²
gardrób
0.8 m²
fürdőszoba
7.9 m²
kamra
2.3 m²
garázs
30.7 m²
szoba
29.2 m²
fürdőszoba
17.7 m²
egyéb helyiség
80 m²
Helembai Dávid
Hitelszakértő