Eladó családi ház, H509096
Budapest X. kerület, Óhegy

265 000 000 Ft

680 000 €

  • 160m²
  • 7 szoba

Eladó családi ház Óhegyen – vállalkozásra, rendelőnek vagy irodának is ideális!

Eladásra kínálunk Budapest X. kerületében, Óhegy csendes, biztonságos részén egy 160 m²-es, többgenerációs családi házat, amely számtalan lehetőséget rejt magában – akár két külön lakásként, akár vállalkozás, rendelő vagy iroda céljára is kiváló választás!

Főbb jellemzői:

✓ tágas világos terek
✓ 2 bejárattal 2 külön lakóegység
✓ 2 nappali, 2 konyha, 2 fürdő, 3 WC
✓ tárolók minden szinten
✓ többgenerációs
✓ akadálymenetes lépcső
✓ biztonságos környék
✓ minden a közelben
✓ ritkaságnak számító nagy kert
✓ fedett kocsi beálló, további 3-4 parkolási lehetőség az udvaron
✓ két utcáról is megközelíthető udvar
✓ körbejárható ingatlan
✓ műanyag nyílászárók
✓ takarékos cirkó kazán, padlófűtés
✓ az udvarból megközelíthető tágas tároló a terasz alatt
✓ 1/1 tulajdon, tehermentes
✓ azonnal költözhető

Regisztrációs szám

H509096

Az ingatlan adatai

Értékesités
eladó
Jogi státusz
használt
Jelleg
ház
Építési mód
tégla
Méret
160 m²
Bruttó méret
165 m²
Telek méret
735 m²
Terasz / erkély mérete
12 m²
Fűtés
Gáz cirkó
Belmagasság
311 cm
Lakáson belüli szintszám
2
Tájolás
Nyugat
Állapot
Homlokzat állapota
Építés éve
1965
Fürdőszobák száma
2
Fedett beállók száma
1
Víz
Van
Gáz
Van
Villany
Van
Csatorna
Van
Többgenerációs
igen
Tároló
Önálló

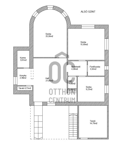
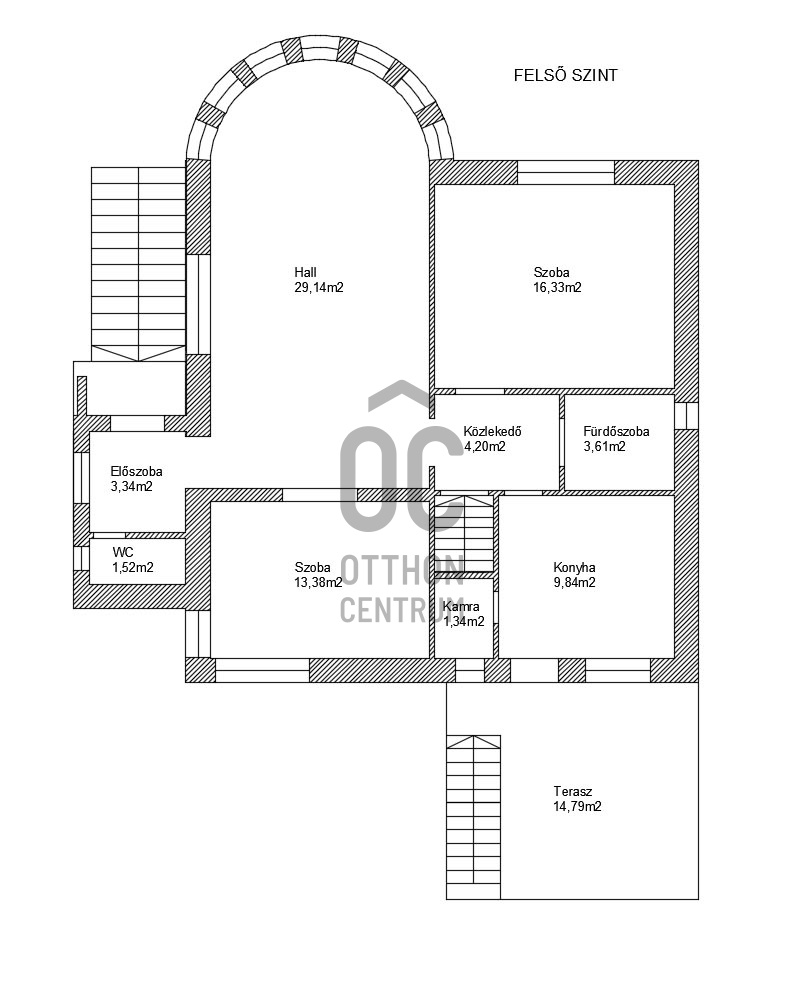
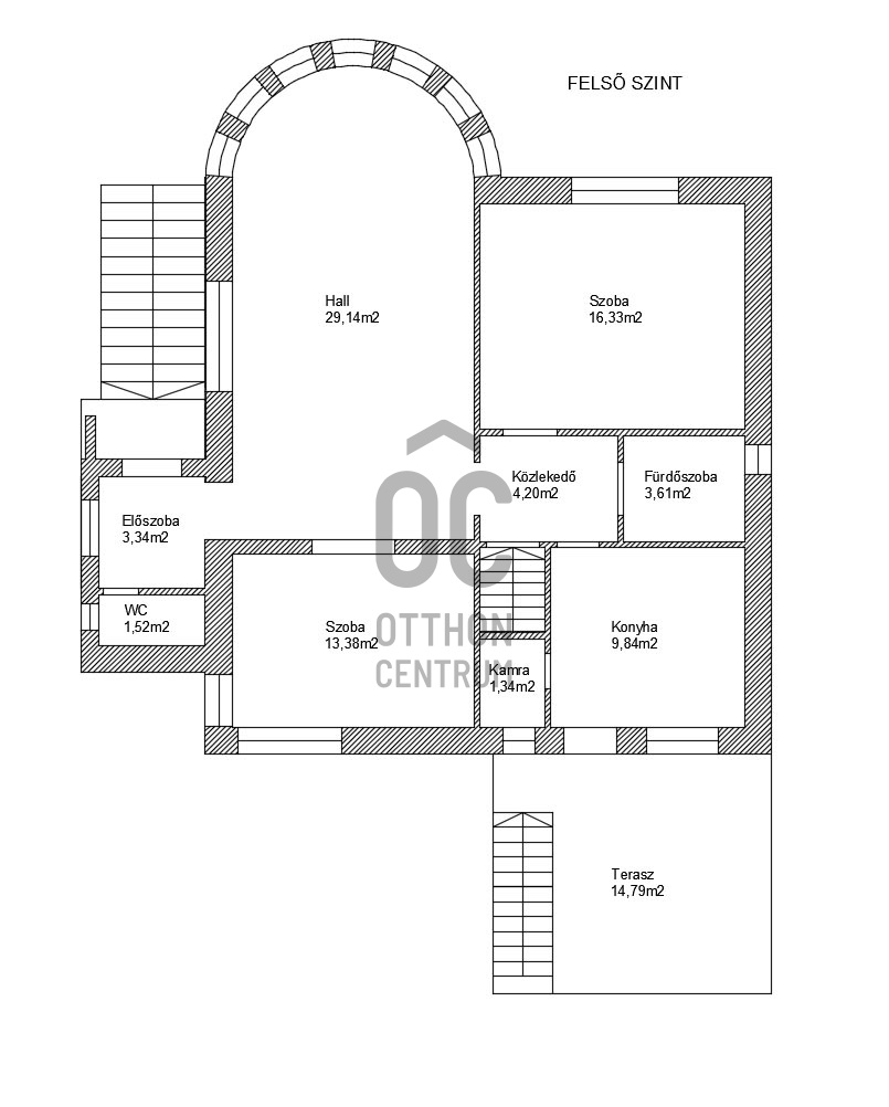
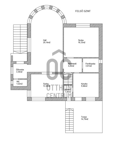
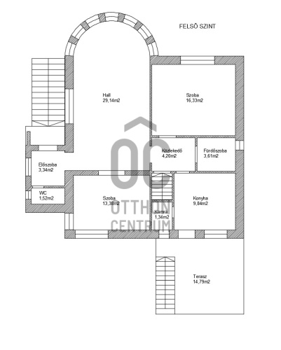
Helyiségek

nappali
29.14 m²
szoba
16.33 m²
szoba
13.38 m²
nappali
25.58 m²
szoba
21.06 m²
szoba
15.09 m²
szoba
9.23 m²
konyha-étkező
9.84 m²
konyha
3 m²
Helembai Dávid
Helembai Dávid

Hitelszakértő

Irodánk kínálatából - IX. kerület - Allure Residence

for sale apartment

Index image
14

for sale apartment

Index image
12

for sale panel apartment

Index image
data_sheet.details.realestate.section.main.otthonstart_flag.label
15

for sale apartment

Index image
24

for sale apartment

Index image
17

for sale panel apartment

Index image
data_sheet.details.realestate.section.main.otthonstart_flag.label
14

for sale new construction apartment

Index image
data_sheet.details.realestate.section.main.otthonstart_flag.label
8

for sale new construction apartment

Index image
data_sheet.details.realestate.section.main.otthonstart_flag.label
8

for sale apartment

Index image
data_sheet.details.realestate.section.main.otthonstart_flag.label
13