Elérhető Otthon Start hitellel
Eladó lakás,
H509039
Szombathely, Belváros
55 000 000 Ft
146 000 €
- 120m²
- 4 szoba
- 2. emelet
Szombathely - Fő tér szomszédságában, 4 tágas helyiséggel rendelkező, II. emeleti rendelő (lakás) eladó +autóbeálló!
Szombathely patinás Fő terének szomszédságában kínálunk eladásra egy 120 nm-es, 4 tágas helyiséggel rendelkező, jelenleg orvosi rendelőként bejegyzett ingatlant, melynek átminősítése folyamatban van.
Átminősítés, felújítás követően, akár egy igazán élhető terekkel rendelkező lakás alakítható ki, tágas belső teret kínál, amely lehetővé teszi a kreatív tervezést és a személyre szabott kialakítást.
Nemcsak otthonnak, hanem kiváló elhelyezkedéséből adódóan vállalkozások számára is ajánlom, akár irodájuk/rendelőjük kialakítására! Az ingatlan nagy belső terei lehetőséget biztosítanak a kreatív irodai elrendezés kialakítására. A világos és napfényes helyiségek kellemes munkakörnyezetet teremtenek, így a munkavégzés során a produktivitás maximálisan biztosított. Az épületben portaszolgálat működik.
A belvárosában található ingatlan nem csupán egy helyszín, hanem egy lehetőség is, hogy vállalkozása imázsát erősítse, fejlődjön és virágozzon!
Lehetőség van zárt udvaron való parkolásra, a nyitott autóbeálló a vételár részét képezi!
A fő tér Szombathely központja, mind kulturális, mind társasági szempontból; kedvelt sétáló- és találkozóhelye a helyi fiataloknak, családoknak és a városba látogató turistáknak. Itt mindig történik valami, legyen szó kiállításokról, koncertekről, vagy helyi rendezvényekről. Kényelmi szempontok szerint is kiváló, számos kereskedelmi és szolgáltatóegység található a közelben, egyszóval minden, ami a mindennapi élethez szükséges lehet.
Az ingatlan funkciója sokrétű, bármire is hasznosítsa, egy igazán impozáns belvárosi ingatlan tulajdonosa lehet Szombathely szívében!!
Hitelre van szüksége? Az Otthon Centrum az ország egyik legnagyobb és legmegbízhatóbb hitelközvetítőjeként, teljes körű és díjmentes hitelügyintézéssel, biztosításkötéssel áll rendelkezésére!
Kérje személyre szabott ajánlatunkat kollégáinktól!
Átminősítés, felújítás követően, akár egy igazán élhető terekkel rendelkező lakás alakítható ki, tágas belső teret kínál, amely lehetővé teszi a kreatív tervezést és a személyre szabott kialakítást.
Nemcsak otthonnak, hanem kiváló elhelyezkedéséből adódóan vállalkozások számára is ajánlom, akár irodájuk/rendelőjük kialakítására! Az ingatlan nagy belső terei lehetőséget biztosítanak a kreatív irodai elrendezés kialakítására. A világos és napfényes helyiségek kellemes munkakörnyezetet teremtenek, így a munkavégzés során a produktivitás maximálisan biztosított. Az épületben portaszolgálat működik.
A belvárosában található ingatlan nem csupán egy helyszín, hanem egy lehetőség is, hogy vállalkozása imázsát erősítse, fejlődjön és virágozzon!
Lehetőség van zárt udvaron való parkolásra, a nyitott autóbeálló a vételár részét képezi!
A fő tér Szombathely központja, mind kulturális, mind társasági szempontból; kedvelt sétáló- és találkozóhelye a helyi fiataloknak, családoknak és a városba látogató turistáknak. Itt mindig történik valami, legyen szó kiállításokról, koncertekről, vagy helyi rendezvényekről. Kényelmi szempontok szerint is kiváló, számos kereskedelmi és szolgáltatóegység található a közelben, egyszóval minden, ami a mindennapi élethez szükséges lehet.
Az ingatlan funkciója sokrétű, bármire is hasznosítsa, egy igazán impozáns belvárosi ingatlan tulajdonosa lehet Szombathely szívében!!
Hitelre van szüksége? Az Otthon Centrum az ország egyik legnagyobb és legmegbízhatóbb hitelközvetítőjeként, teljes körű és díjmentes hitelügyintézéssel, biztosításkötéssel áll rendelkezésére!
Kérje személyre szabott ajánlatunkat kollégáinktól!
Regisztrációs szám
H509039
Az ingatlan adatai
Értékesités
eladó
Jogi státusz
használt
Jelleg
lakás
Építési mód
tégla
Méret
120 m²
Bruttó méret
120 m²
Fűtés
központi fűtés
Belmagasság
300 cm
Tájolás
Dél
Panoráma
városi panoráma
Lépcsőház típusa
zárt lépcsőház
Állapot
Átlagos
Homlokzat állapota
Jó
Lépcsőház állapota
Jó
Környék
jó közlekedés, központi
Építés éve
1920
Fürdőszobák száma
2
Fekvés
utcai
Víz
Van
Gáz
Van
Villany
Van
Csatorna
Van
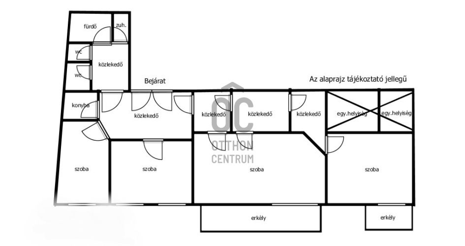
Helyiségek
szoba
25.83 m²
szoba
18.2 m²
szoba
13.97 m²
szoba
11.21 m²
közlekedő
28.84 m²
konyha
2.8 m²
fürdőszoba
3.02 m²
zuhanyzó
1.23 m²
wc
1 m²
wc
1.01 m²
Csejtey Krisztina
Hitelszakértő