Elérhető Otthon Start hitellel
Eladó lakás,
H508787
Szigetvár
39 900 000 Ft
103 000 €
- 105m²
- 3 szoba
- földszint

















Eladásra kínálok Szigetváron lévő ingatlant!
Az ingatlan teljes körűen felújított, nettó 106 m²-es, prémium kivitelezésű.
Az ingatlanban új elektromos- és vízvezetékek és csatorna rendszer, új nyílászárók, elektromos padlófűtés.
Főbb jellemzők:
• Teljes körű műszaki és esztétikai felújítás
• Padlófűtés minden helyiségben
• Új nyílászárók
• Szerelőaknás garázs
• Külön használatú kert
• Utcára és belső udvarra is néz
• Földszintes kettő külön nyíló házrész
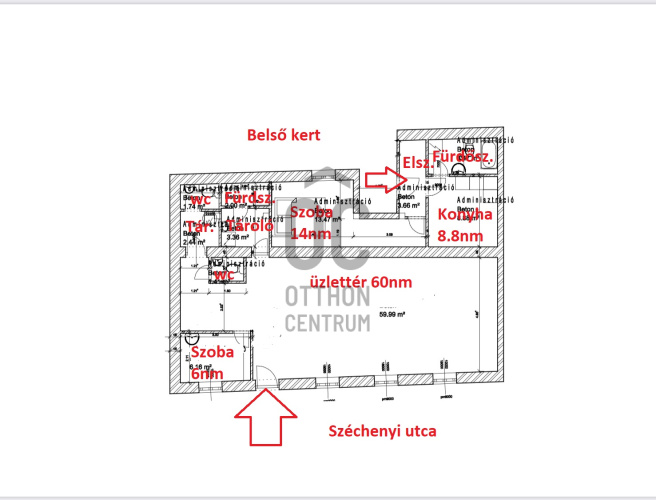
Tulajdonlapon 4 szobás ingatlan, amit a tulaj az alaprajzon látható módon átalakított.
Hívjon bizalommal és nézze meg személyesen az ingatlant!
Az ingatlan teljes körűen felújított, nettó 106 m²-es, prémium kivitelezésű.
Az ingatlanban új elektromos- és vízvezetékek és csatorna rendszer, új nyílászárók, elektromos padlófűtés.
Főbb jellemzők:
• Teljes körű műszaki és esztétikai felújítás
• Padlófűtés minden helyiségben
• Új nyílászárók
• Szerelőaknás garázs
• Külön használatú kert
• Utcára és belső udvarra is néz
• Földszintes kettő külön nyíló házrész
Tulajdonlapon 4 szobás ingatlan, amit a tulaj az alaprajzon látható módon átalakított.
Hívjon bizalommal és nézze meg személyesen az ingatlant!
Regisztrációs szám
H508787
Az ingatlan adatai
Értékesités
eladó
Jogi státusz
használt
Jelleg
lakás
Építési mód
tégla
Méret
105 m²
Bruttó méret
105 m²
Telek méret
100 m²
Kert méret
100 m²
Fűtés
elektromos cirkó
Belmagasság
280 cm
Tájolás
Dél-kelet
Lépcsőház típusa
nincs
Állapot
Kiváló
Homlokzat állapota
Kiváló
Lépcsőház állapota
Kiváló
Környék
jó közlekedés, zöld, központi
Építés éve
1920
Fürdőszobák száma
2
Fekvés
utcai
Társaház kert
igen
Garázs
Benne van az árban
Garázs férőhely
1
Víz
Van
Gáz
Utcán
Villany
Van
Csatorna
Van
Helyiségek
szoba
60 m²
szoba
6.16 m²
wc-kézmosó
1.74 m²
háztartási helyiség
2.44 m²
wc-kézmosó
1.44 m²
gardrób
3.36 m²
zuhanyzó
2 m²
szoba
13.47 m²
konyha-étkező
8.88 m²
előszoba
2.66 m²
fürdőszoba
5.47 m²

Pados - Burján Renáta Zita
Hitelszakértő