Elérhető Otthon Start hitellel
Eladó lakás, H508553
Budapest XIII. kerület, Angyalföld, Béke utca

74 900 000 Ft

194 000 €

  • 57m²
  • 2 szoba
  • 2. emelet
Kiemelt megbízás

Remek választás!

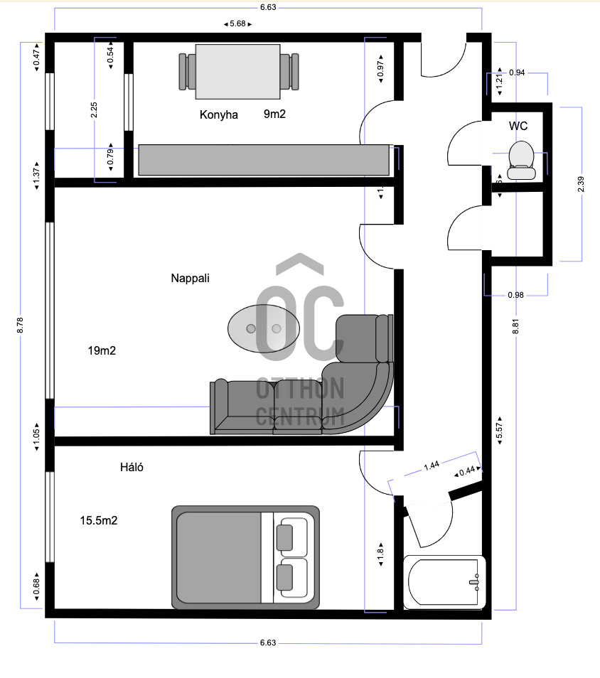
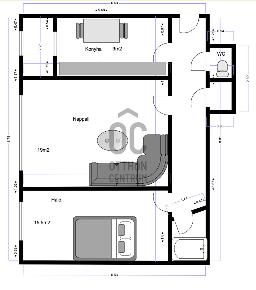
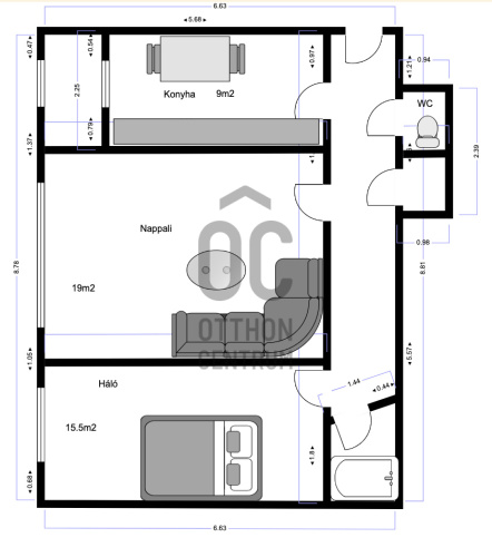
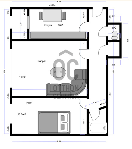
Fedezze fel Budapest 13. kerületének szívében található, ideális otthont vagy befektetési lehetőséget kínáló ingatlanunkat! Az Angyalföld városrészben, a Béke utcában elhelyezkedő, 57 négyzetméteres, használt lakás tökéletes választás mindazok számára, akik egy csendes, mégis jól megközelíthető környékre vágynak. A lakás két tágas szobával rendelkezik. Az ingatlan állapota közepes állapotú, így lehetőséget ad arra, hogy saját ízlésének megfelelően alakítsa át. A lakáshoz tartozik egy beépített erkély is, amely tökéletes helyszín a reggeli kávé elfogyasztására vagy a nap végi pihenésre, de akár egy kis zug kialakítására is megfelelő. Az ingatlan fűtése távfűtéssel megoldott, egyedi mérés szerint. A környék kiváló közlekedési lehetőségekkel rendelkezik, hiszen a közeli busz- és villamosmegállók révén a város bármely pontja könnyen elérhető. Az M3-as metróvonal is csupán néhány percre található, így a főváros szívébe való bejutás rendkívül egyszerű. A csendes utcák és a barátságos szomszédság garantálják, hogy itt valóban otthonra találhat. A közelben található üzletek, éttermek és iskolák pedig még vonzóbbá teszik ezt a lakóhelyet. Angyalföld nemcsak közlekedési szempontból előnyös, hanem a zöld területek és parkok gazdagsága miatt is. A környék biztonságos, amely különösen fontos szempont lehet családok számára.

Regisztrációs szám

H508553

Az ingatlan adatai

Értékesités
eladó
Jogi státusz
használt
Jelleg
lakás
Építési mód
tégla
Méret
57 m²
Bruttó méret
57 m²
Terasz / erkély mérete
2 m²
Fűtés
egyedi távfűtés
Belmagasság
265 cm
Tájolás
Nyugat
Lépcsőház típusa
zárt lépcsőház
Állapot
Átlagos
Homlokzat állapota
Átlagos
Lépcsőház állapota
Átlagos
Építés éve
1951
Fürdőszobák száma
1
Fekvés
utcai
Közös költség
20500
Víz
Van
Gáz
Van
Villany
Van
Csatorna
Van
Lift
van

Helyiségek

szoba
19 m²
szoba
15.5 m²
konyha
9 m²

Irodánk kínálatából - III. kerület - Flórián tér

eladó ikerház

Index image
12

eladó lakás

Index image
16

eladó sorház

Index image
17

eladó lakás

Index image
19

eladó lakás

Index image
6

eladó újépítésű ikerház

Index image
Elérhető Otthon Start hitellel
13

eladó lakás

Index image
Elérhető Otthon Start hitellel
11

eladó újépítésű ikerház

Index image
Elérhető Otthon Start hitellel
12

eladó lakás

Index image
18

eladó újépítésű családi ház

Index image
Elérhető Otthon Start hitellel
14