Elérhető Otthon Start hitellel
Eladó családi ház,
H508317
Tápiószentmárton
56 000 000 Ft
143 000 €
- 77m²
- 3 szoba
































Kiváló állapotú 3 szoba+nappalis családi ház!
Egy igazán különleges ingatlant kínálunk eladásra Tápiószentmártonban, Pest vármegyében, amely ideális választás lehet középkorú ügyfelek számára, akik családjuknak vagy befektetési célra keresnek kiváló lehetőséget. Ez a használt ház 108 négyzetméteres alapterülettel rendelkezik, és egy 934 négyzetméteres telken helyezkedik el, amely bőséges teret biztosít a pihenésre és a szórakozásra. Az ingatlanban három tágas szoba található, melyek világosak és barátságosak, így ideális környezetet biztosítanak a család számára. A fürdőszoba nagy, kényelems. A ház állapota pedig kiváló, ami lehetővé teszi, hogy az új tulajdonos azonnal birtokba vegye. A fűtés gázkonvektorral történik, amely hatékony és gazdaságos megoldást kínál a téli hónapokban. A garázsban egy autó kényelmesen elfér, így a parkolás sosem jelent problémát. Az ingatlan tehermentes, ami gyors és zökkenőmentes ügyintézést garantál az új tulajdonos számára. A kisállattal költözhető lehetőség pedig különösen vonzóvá teszi az ingatlant azok számára, akik négylábú barátjaikkal együtt szeretnének új otthonra lelni. Tápiószentmárton környéke kiváló ellátottsággal büszkélkedik, közeli Termálfürdővel, és a Kincsem Lovasparkkal. A település kitűnő közlekedési lehetőségeket kínál, hiszen a faluközpont és a főbb közlekedési csomópontok könnyen megközelíthetők autóval és tömegközlekedéssel egyaránt. A csendes, biztonságos környék ideális választás családosok számára, akik értékelik a nyugodt lakókörnyezetet, de nem akarnak lemondani a városi élet kényelméről. Az ingatlan környezete barátságos és családias, a szomszédok segítőkészek és kedvesek, ami hozzájárul a kellemes életkörülményekhez. A település közösségi programjai és rendezvényei lehetőséget biztosítanak a helyi lakosok számára a kapcsolatok ápolására és a közösségi élet aktív részvételére. Amennyiben bármilyen kérdése merülne fel az ingatlannal kapcsolatban, ne habozzon keresni bennünket! Szívesen állunk rendelkezésére, hogy minden információt megosszunk Önnel, és segítsünk az álmai otthonának megtalálásában. Az ingatlan piaca dinamikusan változik, ezért érdemes mihamarabb lépni, hogy ne maradjon le erről a remek lehetőségről!
Regisztrációs szám
H508317
Az ingatlan adatai
Értékesités
eladó
Jogi státusz
használt
Jelleg
ház
Építési mód
vegyesfalazatú
Méret
77 m²
Bruttó méret
108 m²
Telek méret
934 m²
Fűtés
gázkonvektor
Belmagasság
254 cm
Tájolás
Dél-kelet
Állapot
Kiváló
Homlokzat állapota
Kiváló
Környék
jó közlekedés
Építés éve
1965
Fürdőszobák száma
1
Garázs
Benne van az árban
Garázs férőhely
1
Víz
Van
Gáz
Van
Villany
Van
Csatorna
Van
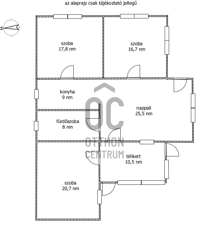
Helyiségek
szoba
17.8 m²
szoba
16.7 m²
nappali
25.4 m²
konyha
9 m²
fürdőszoba-wc
8 m²