333 000 000 Ft
850 000 €
- 89m²
- 3 szoba
- 2. emelet


























Panorámás penthouse
Tudom elcsépelt, de ez akkor is ritkaság a piacon! :) Miért gondolom így? Jó lokációban, jó adottságú lakásból még mindig kevés eladó van Budán. Ezek közül csak néhányat említve: legfelső emeleti, újszerű házban, panoráma a hegyekre, hatalmas terasz, dupla teremgarázshely és még sorolhatnám. Ha eddig érdekesnek hangzik, olvasson tovább! ;)
GYORS ÖSSZEFOGLALÁS
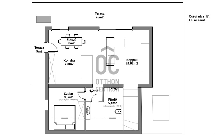
Budapest II. kerületének Törökvész városrészében, az alacsony forgalmú, csendes Csévi utcában, 2008-ban épült, liftes, jó állapotú társasház 2. emeletén, 89 m² alapterületű, 75 m² erkéllyel rendelkező, belső kétszintes, panorámás, penthouse jellegű, amerikai konyhás, 2 hálószobás, 2 fürdőszobás, külön wc-s, csendes, világos, kiváló állapotú, azonnal költözhető lakás eladó, igény szerint 2 teremgarázzsal. Egy különleges, letisztult, egyedi otthon.
ÜDV ITTHON
Az elmúlt években megváltoztak a vásárlói igények és prioritások. Előtérbe került a zöld környezet, a közösségi területek mérete, az elszeparáltság lehetősége és a használható erkély/terasz. Senki sem akar újra a négy fal közé szorulni. Lételemünk a friss levegő, a fák nyújtotta nyugalom, a mozgás lehetősége, a szabadság érzése. Egyetért? Itt garantáltan nem fog ezekben hiányt szenvedni!
Az ingatlan egyik különlegessége, hogy belső kétszintes. Az alsó szinten egy lakosztály található, saját gardróbbal és fürdőszobával. Ezek a kertre néznek. Akinek kamasz gyereke van, vagy gyakran fogad vendéget, esetleg magához venné szüleit, azok számára ez rendkívül ideális, hiszen így jobban el lehet szeparálódni. Akár egy teljes értékű külön lakrész is kialakítható, hiszen könnyedén bele lehet rakni egy konyhát.
Megérkezve a felső szintre egy nagy méretű (40 m²), körben végig üvegfelületes amerikai konyhás nappaliba érkezünk. Ez a fajta nyitottság hívogatja az embert az erkélyre. A tolóajtónak köszönhetően a kint és bent jobban összesimulnak. Fantasztikus kilátás nyílik a Budai hegyekre. Az erkély kivételesen mély. Újra lett szigetelve és burkolva. Akik szeretnek a szabadban, jó levegőn lenni, akik aktív társasági életet élnek, azok imádni fogják az itt töltött időt. Kanapé, 8 személyes asztal, grillező, a többit a saját fantáziájára bízom :)
Miért ezt a lakást érdemes megvásárolnia?
- panoráma
- hatalmas terasz
- legfelső emelet
- korszerű épület
- 2db teremgarázs
Tudom, ismételtem önmagam, de az iskolában azt tanították, ismétlés a tudás anyja.
CSÉVI 17
A ház homlokzata az utcafronthoz képest kicsit visszahúzott. A fronton üzlethelyiség és iroda található, az épületben lakások, hátul pedig egy kisebb közös kert. Egy régi ház helyére épült 2008-ban, a korábbi tulajdonosok is itt laknak. Ez is bizonyítja, mennyire jó a környék, illetve jól megépített az épület, nem akarták azóta sem elhagyni. Mindössze 6 lakás épült, így egy összetartó, kis lakóközösség részévé válhat.
Zárt lépcsőházas, lifttel felszerelt. A lépcsőház és a homlokzat alapvetően jó állapotú. A kazán karbantartása tavaly megtörtént.
Közös költség: 40.000Ft, mely a szokásos költségeket tartalmazza, felújítási alappal együtt. A víz/villany/gáz fogyasztás alapján fizetendő.
A közös képviseletet az egyik régi tulajdonos, egyben lakó látja el, aki a szívén viseli az épület sorsát.
Az ingatlanhoz tartozik két teremgarázshely, melyet a vételár nem tartalmaz. Igény szerint megvásárolhatóak 12MFt/db áron.
TÖRÖKVÉSZ
A Csévi utca 17. a II. kerület zöldövezeti részén helyezkedik el egy csendes, fákkal szegélyezett, zöld, alacsony forgalmú utcában. A környék legnagyobb előnyei:
- 5 percnyire az Apáthy sziklától, ahonnan fantasztikus kilátás nyílik a budai hegyekre
- kiváló kiránduló és túra útvonalak
- tömegközlekedéssel is jó megközelíthetőség - V56A, 61; Busz (11, 29, 5)
- gyalogtávolságban bevásárlási lehetőség - Pasaréti téri ALDI
- legközelebbi bevásárlóközpontok - Budagyöngye, Rózsadomb Center, Mammut
- egészségügyi problémával a Rózsadomb Centerbe érdemes menni
- számos sportolási lehetőség a közelben pl.: tenisz, foci, kosárlabda stb.
- Csalán úti és Fenyves utcai játszótér - ha a ház kertje nem elég kielégítő
- infrastrukturálisan jól felszerelt: bölcsőde, óvoda, a város legjobb iskolái, Kormányablak, Önkormányzat, gyógyszertár, posta, bankok, fodrászat stb. minden 5-10 perc kocsitávolságon belül
Ezen a környéken mindig kevés eladó lakás van, mert imádnak itt élni az emberek. Éljen a lehetőséggel, költözzön Buda egyik legkedveltebb részére!
--------------
Felkeltettem érdeklődését? Ha el tudja magát itt képzelni vagy további kérdése lenne, hívjon bizalommal!
GYORS ÖSSZEFOGLALÁS
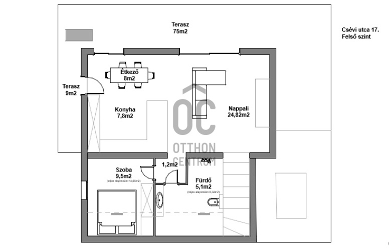
Budapest II. kerületének Törökvész városrészében, az alacsony forgalmú, csendes Csévi utcában, 2008-ban épült, liftes, jó állapotú társasház 2. emeletén, 89 m² alapterületű, 75 m² erkéllyel rendelkező, belső kétszintes, panorámás, penthouse jellegű, amerikai konyhás, 2 hálószobás, 2 fürdőszobás, külön wc-s, csendes, világos, kiváló állapotú, azonnal költözhető lakás eladó, igény szerint 2 teremgarázzsal. Egy különleges, letisztult, egyedi otthon.
ÜDV ITTHON
Az elmúlt években megváltoztak a vásárlói igények és prioritások. Előtérbe került a zöld környezet, a közösségi területek mérete, az elszeparáltság lehetősége és a használható erkély/terasz. Senki sem akar újra a négy fal közé szorulni. Lételemünk a friss levegő, a fák nyújtotta nyugalom, a mozgás lehetősége, a szabadság érzése. Egyetért? Itt garantáltan nem fog ezekben hiányt szenvedni!
Az ingatlan egyik különlegessége, hogy belső kétszintes. Az alsó szinten egy lakosztály található, saját gardróbbal és fürdőszobával. Ezek a kertre néznek. Akinek kamasz gyereke van, vagy gyakran fogad vendéget, esetleg magához venné szüleit, azok számára ez rendkívül ideális, hiszen így jobban el lehet szeparálódni. Akár egy teljes értékű külön lakrész is kialakítható, hiszen könnyedén bele lehet rakni egy konyhát.
Megérkezve a felső szintre egy nagy méretű (40 m²), körben végig üvegfelületes amerikai konyhás nappaliba érkezünk. Ez a fajta nyitottság hívogatja az embert az erkélyre. A tolóajtónak köszönhetően a kint és bent jobban összesimulnak. Fantasztikus kilátás nyílik a Budai hegyekre. Az erkély kivételesen mély. Újra lett szigetelve és burkolva. Akik szeretnek a szabadban, jó levegőn lenni, akik aktív társasági életet élnek, azok imádni fogják az itt töltött időt. Kanapé, 8 személyes asztal, grillező, a többit a saját fantáziájára bízom :)
Miért ezt a lakást érdemes megvásárolnia?
- panoráma
- hatalmas terasz
- legfelső emelet
- korszerű épület
- 2db teremgarázs
Tudom, ismételtem önmagam, de az iskolában azt tanították, ismétlés a tudás anyja.
CSÉVI 17
A ház homlokzata az utcafronthoz képest kicsit visszahúzott. A fronton üzlethelyiség és iroda található, az épületben lakások, hátul pedig egy kisebb közös kert. Egy régi ház helyére épült 2008-ban, a korábbi tulajdonosok is itt laknak. Ez is bizonyítja, mennyire jó a környék, illetve jól megépített az épület, nem akarták azóta sem elhagyni. Mindössze 6 lakás épült, így egy összetartó, kis lakóközösség részévé válhat.
Zárt lépcsőházas, lifttel felszerelt. A lépcsőház és a homlokzat alapvetően jó állapotú. A kazán karbantartása tavaly megtörtént.
Közös költség: 40.000Ft, mely a szokásos költségeket tartalmazza, felújítási alappal együtt. A víz/villany/gáz fogyasztás alapján fizetendő.
A közös képviseletet az egyik régi tulajdonos, egyben lakó látja el, aki a szívén viseli az épület sorsát.
Az ingatlanhoz tartozik két teremgarázshely, melyet a vételár nem tartalmaz. Igény szerint megvásárolhatóak 12MFt/db áron.
TÖRÖKVÉSZ
A Csévi utca 17. a II. kerület zöldövezeti részén helyezkedik el egy csendes, fákkal szegélyezett, zöld, alacsony forgalmú utcában. A környék legnagyobb előnyei:
- 5 percnyire az Apáthy sziklától, ahonnan fantasztikus kilátás nyílik a budai hegyekre
- kiváló kiránduló és túra útvonalak
- tömegközlekedéssel is jó megközelíthetőség - V56A, 61; Busz (11, 29, 5)
- gyalogtávolságban bevásárlási lehetőség - Pasaréti téri ALDI
- legközelebbi bevásárlóközpontok - Budagyöngye, Rózsadomb Center, Mammut
- egészségügyi problémával a Rózsadomb Centerbe érdemes menni
- számos sportolási lehetőség a közelben pl.: tenisz, foci, kosárlabda stb.
- Csalán úti és Fenyves utcai játszótér - ha a ház kertje nem elég kielégítő
- infrastrukturálisan jól felszerelt: bölcsőde, óvoda, a város legjobb iskolái, Kormányablak, Önkormányzat, gyógyszertár, posta, bankok, fodrászat stb. minden 5-10 perc kocsitávolságon belül
Ezen a környéken mindig kevés eladó lakás van, mert imádnak itt élni az emberek. Éljen a lehetőséggel, költözzön Buda egyik legkedveltebb részére!
--------------
Felkeltettem érdeklődését? Ha el tudja magát itt képzelni vagy további kérdése lenne, hívjon bizalommal!
Regisztrációs szám
H508062
Az ingatlan adatai
Értékesités
eladó
Jogi státusz
használt
Jelleg
lakás
Építési mód
tégla
Méret
89 m²
Bruttó méret
126 m²
Terasz / erkély mérete
75 m²
Fűtés
központi fűtés
Belmagasság
270 cm
Lakáson belüli szintszám
2
Tájolás
Nyugat
Panoráma
Zöldre néző panoráma
Lépcsőház típusa
zárt lépcsőház
Állapot
Kiváló
Homlokzat állapota
Jó
Lépcsőház állapota
Jó
Környék
csendes, jó közlekedés, zöld
Építés éve
2008
Fürdőszobák száma
2
Fekvés
utcai
Közös költség
40000
Garázs
Külön vásárolható
Víz
Van
Gáz
Van
Villany
Van
Csatorna
Van
Lift
van
Helyiségek
közlekedő
5.5 m²
wc-kézmosó
4 m²
szoba
15 m²
gardrób
6 m²
fürdőszoba
4 m²
terasz
7.5 m²
közlekedő
1.5 m²
nappali-konyha
40 m²
szoba
15 m²
fürdőszoba
13 m²
terasz
68.8 m²

Ruczek János
Hitelszakértő