Elérhető Otthon Start hitellel
Eladó panel lakás,
H508027
Pécs, Kertváros
41 800 000 Ft
108 000 €
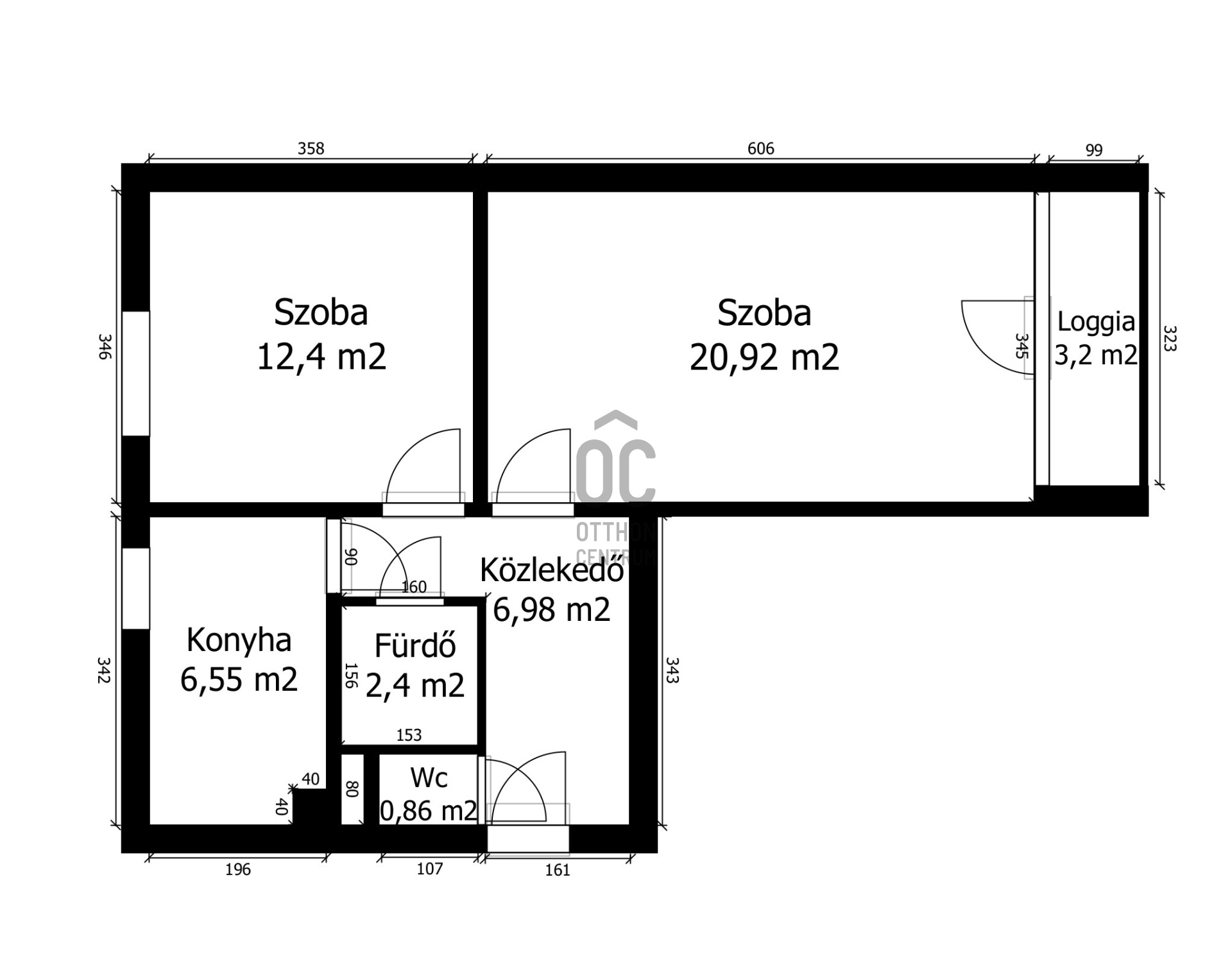
- 52m²
- 2 szoba
- 2. emelet


























Eladó Pécs, Kertvárosi lakás
Regisztrációs szám: H508027
Köszöntelek a hirdetésemnél!
Fedezze fel ezt a kivételes lehetőséget Pécs Kertvárosában!
Egy 4/2. emeleti, 52 négyzetméteres, 2 szobás, erkélyes lakás keresi új tulajdonosát.
Ez az ingatlan ideális választás lehet magánszemélyek és befektetők számára egyaránt, hiszen a város egyik legkedveltebb részén helyezkedik el.
FONTOS INFÓ: **********Az ingatlant jelenleg is albérlő lakja, aki szívesen maradna!!!**********
A társasház szigetelt, ablakai, bejárati kapuja műanyag szerkezetű, a kaputelefon digitális, a lépcsőház szép, tiszta és rendezett!
A lakás átlagos állapotban van, így Ön saját ízlésének megfelelően alakíthatja át, miközben a távhő lehetővé teszi a kényelmes és gazdaságos fűtést.
A lakáshoz tartozik egy 3 négyzetméteres erkély, amely zöldre néző panorámát kínál a környező területekre, lehetőséget biztosítva a pihenésre és a kikapcsolódásra.
Az ingatlant, egy több ponton záródó biztonsági ajtó védi, egyébként a közbiztonság teljesen rendben van!
Az ÚJ villanyvezeték, falon kívül kapott helyet, a fürdő és a toalett külön helyiségben található.
Az ingatlan elrendezése praktikus, a két külön nyíló szoba világos, és tágas, így ideális választás lehet családoknak, fiatal pároknak egyedülállóknak, de akár befektetőknek is megfelelhet!
Kertváros nyugodt és csendes környezete, a rendkívüli frekventáltsága és a városi élet előnyei találkoznak ebben az ingatlanban.
A lakás előtt térítésmentesen lehet parkolni, az épület közvetlen környezetében buszmegálló, számos park, játszótér, piac, bank, óvoda, iskola, bölcsőde, Spar, orvosi rendelő és számos sportolási lehetőség található, ami különösen vonzó a családosok számára.
Az infrastruktúra kiváló, a közlekedési lehetőségek széles skálája áll rendelkezésre: a tömegközlekedés gyors és kényelmes, így a város többi része könnyen elérhető. Autóval is egyszerűen megközelíthetőek a főbb közlekedési csomópontok, így a napi ingázás sem jelenthet problémát.
A környék biztonságos, barátságos lakóközösséggel rendelkezik, ahol a szomszédok ismerik, és segítik egymást.
Az itt élők számára a helyi boltok, éttermek és szolgáltatások könnyen elérhetők, így a mindennapi élet kényelmesen és gördülékenyen zajlik. A városi élet és a természet harmóniája vár Önre.
Kérdéseivel, a hét bármely napján kereshet, szívesen állok a rendelkezésére.
Teljes körű pénzügyi megoldások ügyintézése díjmentesen:
* Bankfüggetlen hitelcenterünk díjmentesen versenyezteti minden bank és hitelintézet ajánlatát.
* Önnek nincs más dolga, mint beszélgetni munkatársunkkal, majd a megversenyeztetett ajánlatokból kiválasztani a hosszútávon is a legmegfelelőbb konstrukciót.
* Szakértőnk több mint 20 éves szakmai tapasztalattal és egyedi igényekre szabott, fogyasztóbarát lakáshitelekkel, babaváró hitellel, teljes körű CSOK ügyintézéssel várja Önt.
* Előre egyeztetett időpontban.
Köszöntelek a hirdetésemnél!
Fedezze fel ezt a kivételes lehetőséget Pécs Kertvárosában!
Egy 4/2. emeleti, 52 négyzetméteres, 2 szobás, erkélyes lakás keresi új tulajdonosát.
Ez az ingatlan ideális választás lehet magánszemélyek és befektetők számára egyaránt, hiszen a város egyik legkedveltebb részén helyezkedik el.
FONTOS INFÓ: **********Az ingatlant jelenleg is albérlő lakja, aki szívesen maradna!!!**********
A társasház szigetelt, ablakai, bejárati kapuja műanyag szerkezetű, a kaputelefon digitális, a lépcsőház szép, tiszta és rendezett!
A lakás átlagos állapotban van, így Ön saját ízlésének megfelelően alakíthatja át, miközben a távhő lehetővé teszi a kényelmes és gazdaságos fűtést.
A lakáshoz tartozik egy 3 négyzetméteres erkély, amely zöldre néző panorámát kínál a környező területekre, lehetőséget biztosítva a pihenésre és a kikapcsolódásra.
Az ingatlant, egy több ponton záródó biztonsági ajtó védi, egyébként a közbiztonság teljesen rendben van!
Az ÚJ villanyvezeték, falon kívül kapott helyet, a fürdő és a toalett külön helyiségben található.
Az ingatlan elrendezése praktikus, a két külön nyíló szoba világos, és tágas, így ideális választás lehet családoknak, fiatal pároknak egyedülállóknak, de akár befektetőknek is megfelelhet!
Kertváros nyugodt és csendes környezete, a rendkívüli frekventáltsága és a városi élet előnyei találkoznak ebben az ingatlanban.
A lakás előtt térítésmentesen lehet parkolni, az épület közvetlen környezetében buszmegálló, számos park, játszótér, piac, bank, óvoda, iskola, bölcsőde, Spar, orvosi rendelő és számos sportolási lehetőség található, ami különösen vonzó a családosok számára.
Az infrastruktúra kiváló, a közlekedési lehetőségek széles skálája áll rendelkezésre: a tömegközlekedés gyors és kényelmes, így a város többi része könnyen elérhető. Autóval is egyszerűen megközelíthetőek a főbb közlekedési csomópontok, így a napi ingázás sem jelenthet problémát.
A környék biztonságos, barátságos lakóközösséggel rendelkezik, ahol a szomszédok ismerik, és segítik egymást.
Az itt élők számára a helyi boltok, éttermek és szolgáltatások könnyen elérhetők, így a mindennapi élet kényelmesen és gördülékenyen zajlik. A városi élet és a természet harmóniája vár Önre.
Kérdéseivel, a hét bármely napján kereshet, szívesen állok a rendelkezésére.
Teljes körű pénzügyi megoldások ügyintézése díjmentesen:
* Bankfüggetlen hitelcenterünk díjmentesen versenyezteti minden bank és hitelintézet ajánlatát.
* Önnek nincs más dolga, mint beszélgetni munkatársunkkal, majd a megversenyeztetett ajánlatokból kiválasztani a hosszútávon is a legmegfelelőbb konstrukciót.
* Szakértőnk több mint 20 éves szakmai tapasztalattal és egyedi igényekre szabott, fogyasztóbarát lakáshitelekkel, babaváró hitellel, teljes körű CSOK ügyintézéssel várja Önt.
* Előre egyeztetett időpontban.
Regisztrációs szám
H508027
Az ingatlan adatai
Értékesités
eladó
Jogi státusz
használt
Jelleg
lakás
Építési mód
panel
Méret
52 m²
Bruttó méret
52 m²
Terasz / erkély mérete
4 m²
Fűtés
egyedi távfűtés
Belmagasság
260 cm
Tájolás
Nyugat
Lépcsőház típusa
zárt lépcsőház
Állapot
Átlagos
Homlokzat állapota
Jó
Lépcsőház állapota
Jó
Építés éve
1976
Fürdőszobák száma
1
Fekvés
utcai
Közös költség
8000
Víz
Van
Gáz
Van
Villany
Van
Csatorna
Van
Tároló
Közös
Helyiségek
közlekedő
7 m²
konyha
6.55 m²
wc
1 m²
hálószoba
12.4 m²
nappali
20.9 m²
fürdőszoba
2.4 m²
erkély
3 m²

Mecseki Lászlóné - Éva
Hitelszakértő