145 811 250 Ft
375 000 €
- 42m²
- 1 szoba
- 3. emelet














jewelry box overlooking the square at Szervita.
A cozy square in the heart of the city, where the architecture of the 18th and 21st centuries coexist in harmony.
On the southern side of the square, the Church of St. Anna and the recently completed Emerald Residence modern building embrace each other.
In the western part, one of the iconic buildings of early modern Art Nouveau, the Turkish Bank House, overlooks its new neighbor, the glass palace of the Servita Square Building.
Here you will also find Béla Lajta's Rózsavölgyi House, with shops on the ground floor, above them the Rózsavölgyi Salon, and apartments on the upper floors.
The apartment is located on the 3rd floor of the Rózsavölgyi House, facing the square.
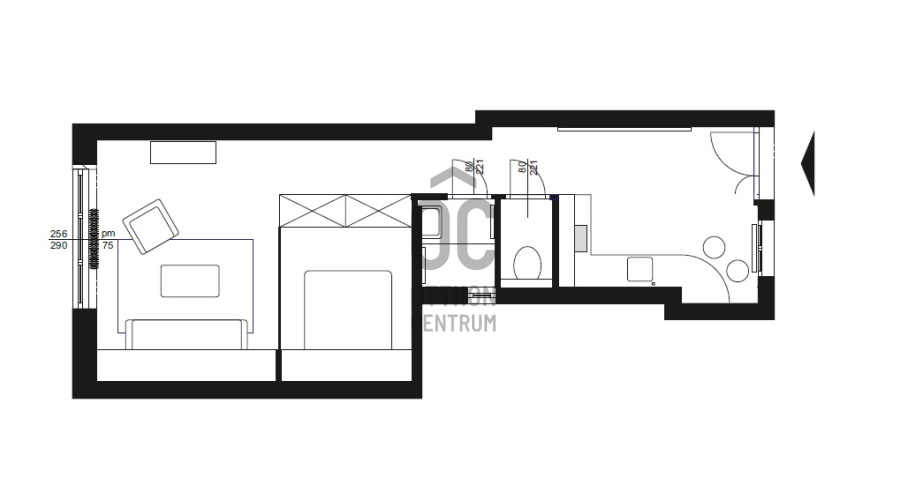
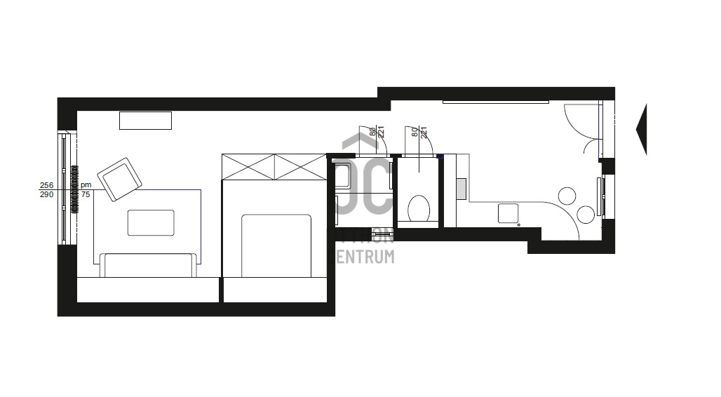
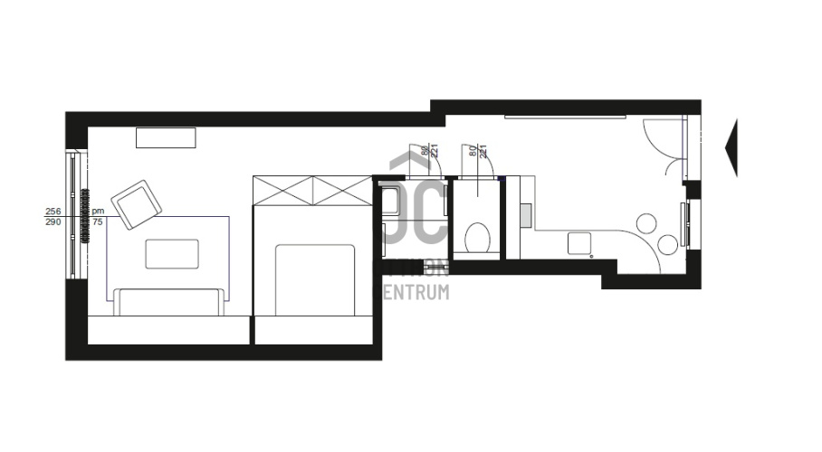
It is 42 sqm, with a living room overlooking the square and a glass sliding door separating a sleeping nook at the back.
The kitchen is modern, equipped, with a window facing the building's inner courtyard.
The bathroom features a built-in shower and a cylindrical sink.
The hallway includes a ceiling-high wardrobe that houses the washer-dryer.
The apartment is air-conditioned, with central heating.
An ideal choice for a home or an investment.
On the southern side of the square, the Church of St. Anna and the recently completed Emerald Residence modern building embrace each other.
In the western part, one of the iconic buildings of early modern Art Nouveau, the Turkish Bank House, overlooks its new neighbor, the glass palace of the Servita Square Building.
Here you will also find Béla Lajta's Rózsavölgyi House, with shops on the ground floor, above them the Rózsavölgyi Salon, and apartments on the upper floors.
The apartment is located on the 3rd floor of the Rózsavölgyi House, facing the square.
It is 42 sqm, with a living room overlooking the square and a glass sliding door separating a sleeping nook at the back.
The kitchen is modern, equipped, with a window facing the building's inner courtyard.
The bathroom features a built-in shower and a cylindrical sink.
The hallway includes a ceiling-high wardrobe that houses the washer-dryer.
The apartment is air-conditioned, with central heating.
An ideal choice for a home or an investment.
Regisztrációs szám
H507624
Az ingatlan adatai
Értékesités
eladó
Jogi státusz
használt
Jelleg
lakás
Építési mód
tégla
Méret
42 m²
Bruttó méret
42 m²
Fűtés
központi fűtés
Belmagasság
350 cm
Tájolás
Kelet
Lépcsőház típusa
függőfolyosó
Állapot
Kiváló
Homlokzat állapota
Kiváló
Lépcsőház állapota
Kiváló
Építés éve
1900
Fürdőszobák száma
1
Fekvés
utcai
Víz
Van
Gáz
Van
Villany
Van
Csatorna
Van
Lift
van
Helyiségek
szoba
27 m²
konyha-étkező
11 m²

Ruczek Krisztina
Hitelszakértő