189 000 000 Ft
487 000 €
- 238m²
- 9 szoba



































































Összeköltözők, befektetők, figyelem: 1-et fizet, 3 lakást kap. Ha időben szól nekem.
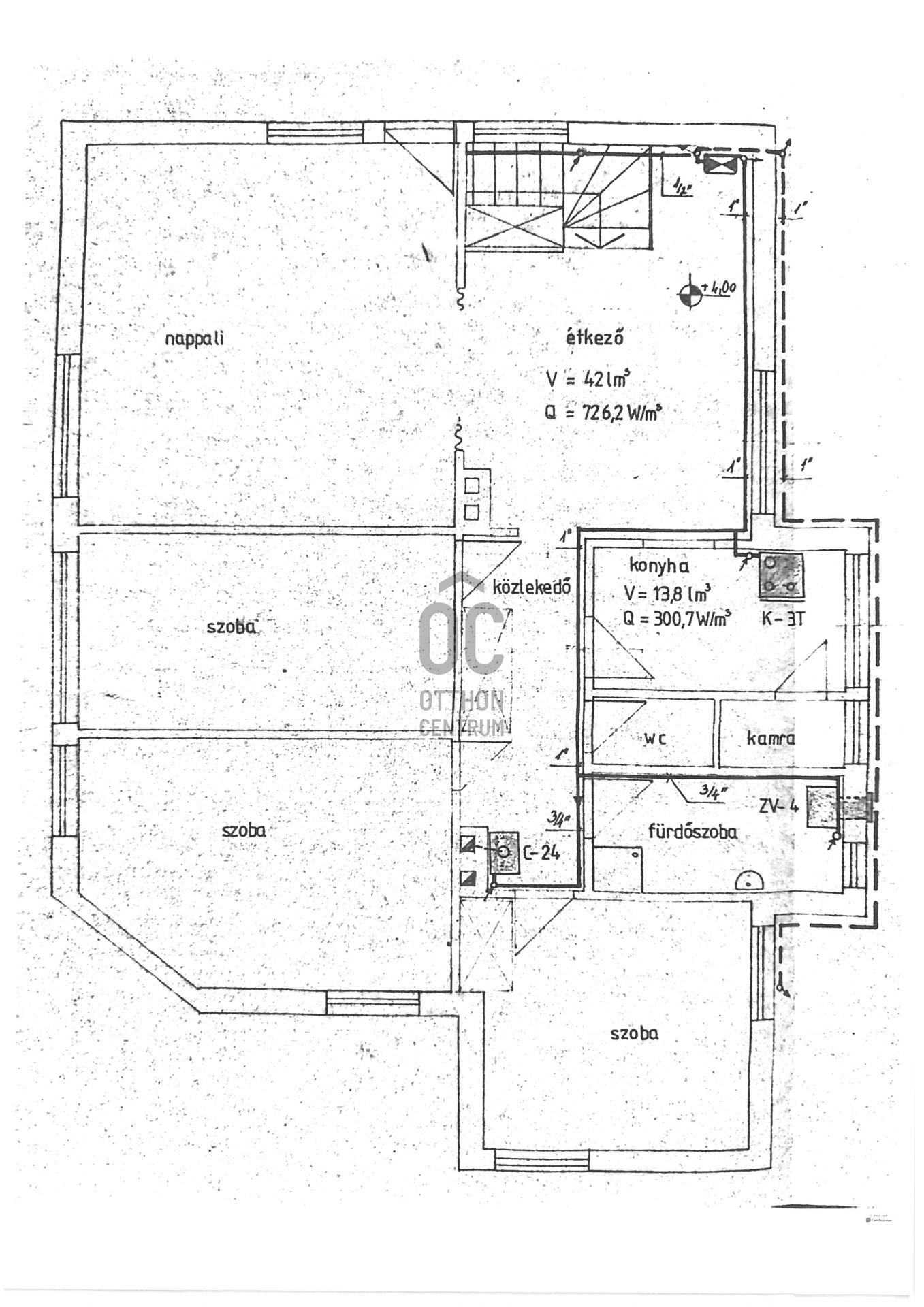
Ez az ingatlan hirdetés kifejezetten azoknak a befektetőknek szól, akik értékes lehetőségeket keresnek a fővárosban, Budapest 20. kerületében, a felkapott Pacsirtatelep városrészben. A kínálatunkban szereplő használt ház 238 négyzetméteres alapterülettel rendelkezik, és egy 716 négyzetméteres telken helyezkedik el, amely ideális választás lehet családoknak, vagy akár bérbeadásra is. A ház 3 teljesen szeparált , különálló lakásra osztott, összesen egyébként 9 tágas szobával, amelyek lehetőséget adnak a különböző lakhatási igények kielégítésére, legyen szó akár többgenerációs családi otthonról, vagy apartmanok kialakításáról. Az ingatlan állapota átlagos, használható, tiszta és azonnal költözhető, de a bővítési lehetőségek széles spektrumot kínálnak, így a jövőbeni fejlesztések során a vásárlók saját igényeik szerint alakíthatják a teret. A ház fűtését gáz (cirko) biztosítja, míg a hűtésről klíma gondoskodik, így a nyári hónapokban is kellemes hőmérsékletet biztosít. A 15 négyzetméteres terasz ideális helyszín a pihenésre, míg a rendezett kert és a kerti tároló további előnyöket nyújtanak a szabadban való időtöltéshez. Az ingatlan kisállattal is költözhető, így a házikedvencek is otthonra lelhetnek itt. A környék ellátottsága kiváló, a központi elhelyezkedésnek köszönhetően minden szükséges szolgáltatás könnyedén elérhető. A közlekedési csomópont közelsége miatt a kitűnő közlekedés lehetőséget biztosít a város különböző részeinek gyors elérésére, legyen szó autós vagy tömegközlekedési megoldásokról. A Pacsirtatelep csendes, kertvárosi hangulata ideális választás lehet mindazok számára, akik a nyugodt környezetet keresik, mégis szeretnék élvezni a főváros előnyeit. Ez a tehermentes ingatlan nemcsak lakhatási célokra, hanem befektetési lehetőségként is vonzó, hiszen a Falusi Csok kompatibilis státusza révén különösen kedvező feltételekkel vásárolható meg. A nagy belmagasság pedig lehetőséget ad a belső terek kreatív átalakítására, így a potenciális vevők szabadon álmodhatják meg új otthonukat. Amennyiben Ön is érdeklődik a lehetőség iránt, vagy további kérdései lennének, bizalommal kereshet minket. Készen állunk arra, hogy segítsünk Önnek megtalálni a tökéletes ingatlant, amely megfelel az elképzeléseinek és befektetési céljainak.
Regisztrációs szám
H507436
Az ingatlan adatai
Értékesités
eladó
Jogi státusz
használt
Jelleg
ház
Építési mód
tégla
Méret
238 m²
Bruttó méret
260 m²
Telek méret
716 m²
Terasz / erkély mérete
15 m²
Kert méret
520 m²
Fűtés
Gáz cirkó
Belmagasság
300 cm
Lakáson belüli szintszám
2
Tájolás
Dél-kelet
Panoráma
városi panoráma
Állapot
Átlagos
Homlokzat állapota
Átlagos
Pince
Önálló
Környék
jó közlekedés, zöld, központi
Építés éve
1930
Fürdőszobák száma
3
Társaház kert
igen
Garázs
Benne van az árban
Garázs férőhely
1
Fedett beállók száma
1
Víz
Van
Gáz
Van
Villany
Van
Csatorna
Van
Többgenerációs
igen
Helyiségek
borospince
18 m²
veranda
13 m²
konyha-étkező
30 m²
hálószoba
10 m²
hálószoba
20 m²
fürdőszoba
5 m²
wc-kézmosó
2 m²
nappali
20 m²
kamra
3 m²
közlekedő
1.4 m²
garázs
26 m²
lépcsőház
10 m²
ebédlő
11 m²
konyha
5 m²
kamra
1 m²
wc
1.4 m²
közlekedő
5.5 m²
hálószoba
14.3 m²
hálószoba
13 m²
hálószoba
11.5 m²
nappali
21 m²
egyéb helyiség
8.5 m²
hálószoba
8.5 m²
fürdőszoba-wc
3 m²
közlekedő
2 m²
konyha
1.5 m²

Helembai Dávid
Hitelszakértő