95 000 000 Ft
244 000 €
- 33m²
- 2 szoba
- földszint






















SVÁBHEGYI MŰEMLÉK INGATLAN ELADÓ
Eladó egy présház jellegű sváb falusi porta és pince együttes a XII. kerületben.
A Svábhegy szőlészeti és borászati hagyományainak egyik utolsó hírnökeként műemléki védelmet élvez.
A présházat lakóházzá alakították, de az eredeti építészeti forma és stílus jegyeket megőrizték.
Megmaradt a látványos pince és az egykori helyi szőlő művelési kultúrára jellemző támfalas-teraszos kert.
Az 1830-as években épült házban két társasházi lakás található külön lekerített kertrésszel. A hangulatos, ősfás, teraszos kert kb. 900 m2.
Az eladásra kerülő ingatlan:
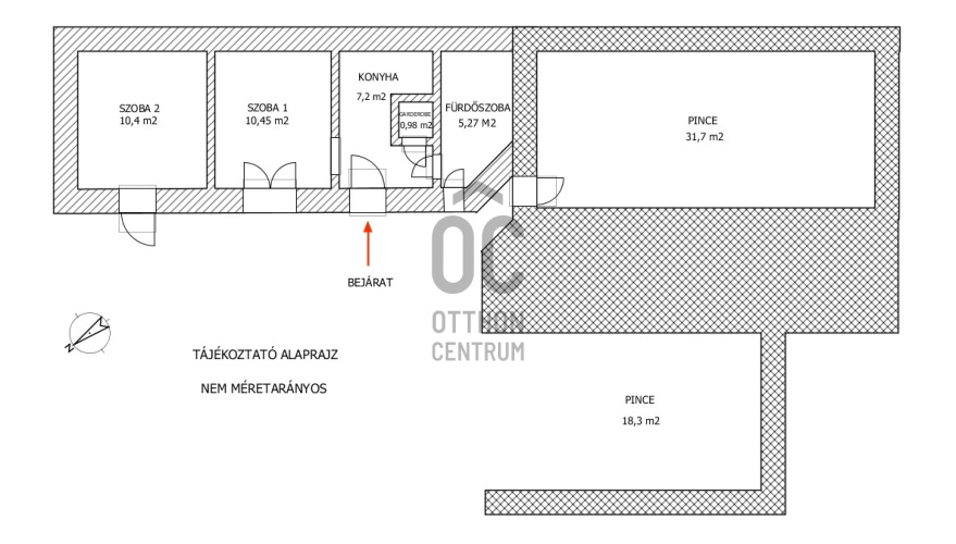
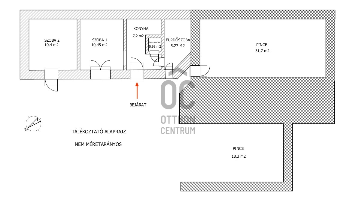
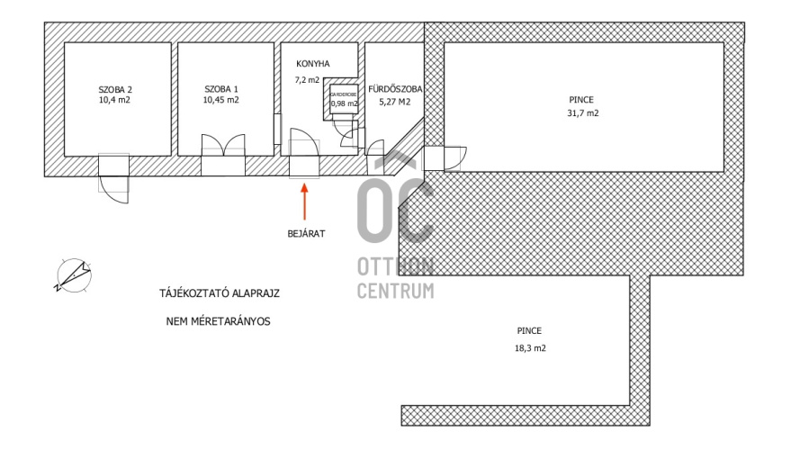
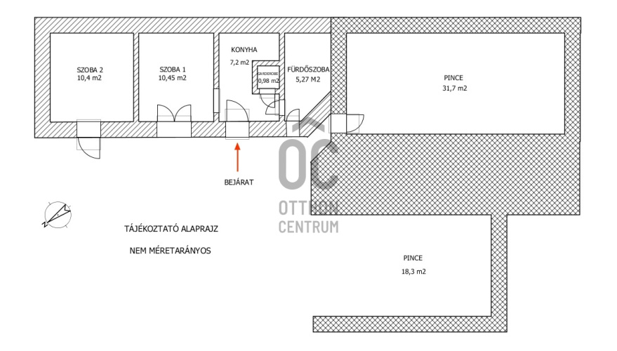
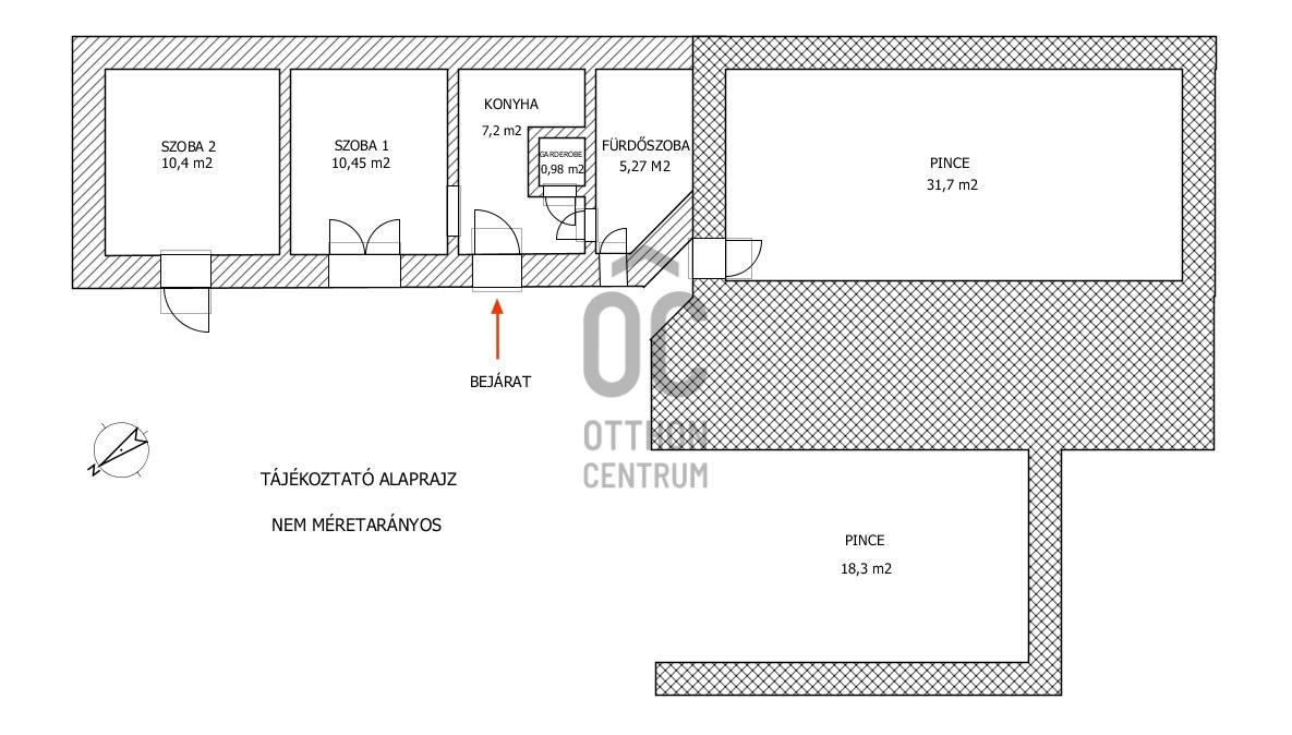
- 33 m2-es 2 szobás lakás. (Az egyik szoba jelenleg az udvarról nyílik és teljesen felújítandó.)
- 2 db pince - összesen 50 m2 (Az egyik pince elölről nyitott és felújítást-helyreállítást igényel. Feltehetőleg ennek mérete a jelenleg láthatónál jóval nagyobb)
- kő és tégla falazat (60 cm vastag) 5 cm hungarocell szigeteléssel.
- elektromos fűtés
- buszmegálló 300 méteren belül található. (21, 21A, 212, 221)
- fogaskerekű megálló 400 méter
- bevásárlási lehetőség 400 méter
Alkalmas lehet idegenforgalmi - vendéglátási célra, borpincének, rendezvény helyszínnek.
A Svábhegy szőlészeti és borászati hagyományainak egyik utolsó hírnökeként műemléki védelmet élvez.
A présházat lakóházzá alakították, de az eredeti építészeti forma és stílus jegyeket megőrizték.
Megmaradt a látványos pince és az egykori helyi szőlő művelési kultúrára jellemző támfalas-teraszos kert.
Az 1830-as években épült házban két társasházi lakás található külön lekerített kertrésszel. A hangulatos, ősfás, teraszos kert kb. 900 m2.
Az eladásra kerülő ingatlan:
- 33 m2-es 2 szobás lakás. (Az egyik szoba jelenleg az udvarról nyílik és teljesen felújítandó.)
- 2 db pince - összesen 50 m2 (Az egyik pince elölről nyitott és felújítást-helyreállítást igényel. Feltehetőleg ennek mérete a jelenleg láthatónál jóval nagyobb)
- kő és tégla falazat (60 cm vastag) 5 cm hungarocell szigeteléssel.
- elektromos fűtés
- buszmegálló 300 méteren belül található. (21, 21A, 212, 221)
- fogaskerekű megálló 400 méter
- bevásárlási lehetőség 400 méter
Alkalmas lehet idegenforgalmi - vendéglátási célra, borpincének, rendezvény helyszínnek.
Regisztrációs szám
H507188
Az ingatlan adatai
Értékesités
eladó
Jogi státusz
használt
Jelleg
lakás
Építési mód
tégla
Méret
33 m²
Bruttó méret
83 m²
Kert méret
900 m²
Belmagasság
240 cm
Tájolás
Észak-kelet
Lépcsőház típusa
nincs
Állapot
Átlagos
Homlokzat állapota
Átlagos
Lépcsőház állapota
Jó
Környék
csendes, zöld
Építés éve
1830
Fürdőszobák száma
1
Fekvés
kertre néző
Társaház kert
igen
Víz
Van
Gáz
Van
Villany
Van
Csatorna
Van
Helyiségek
szoba
7 m²
szoba
10.2 m²
konyha
7.2 m²
fürdőszoba
5 m²
gardrób
1 m²
borospince
50 m²

Bartha Zoltán
Hitelszakértő