239 000 000 Ft
612 000 €
- 308m²
- 6 szoba





















Medencés családi ház Cinkotán – várja Önt és családját!
CINKOTA csendes, barátságos részén, Ilonatelepen eladó egy tágas terekkel, jó elosztással rendelkező 2 SZINTES családi ház!
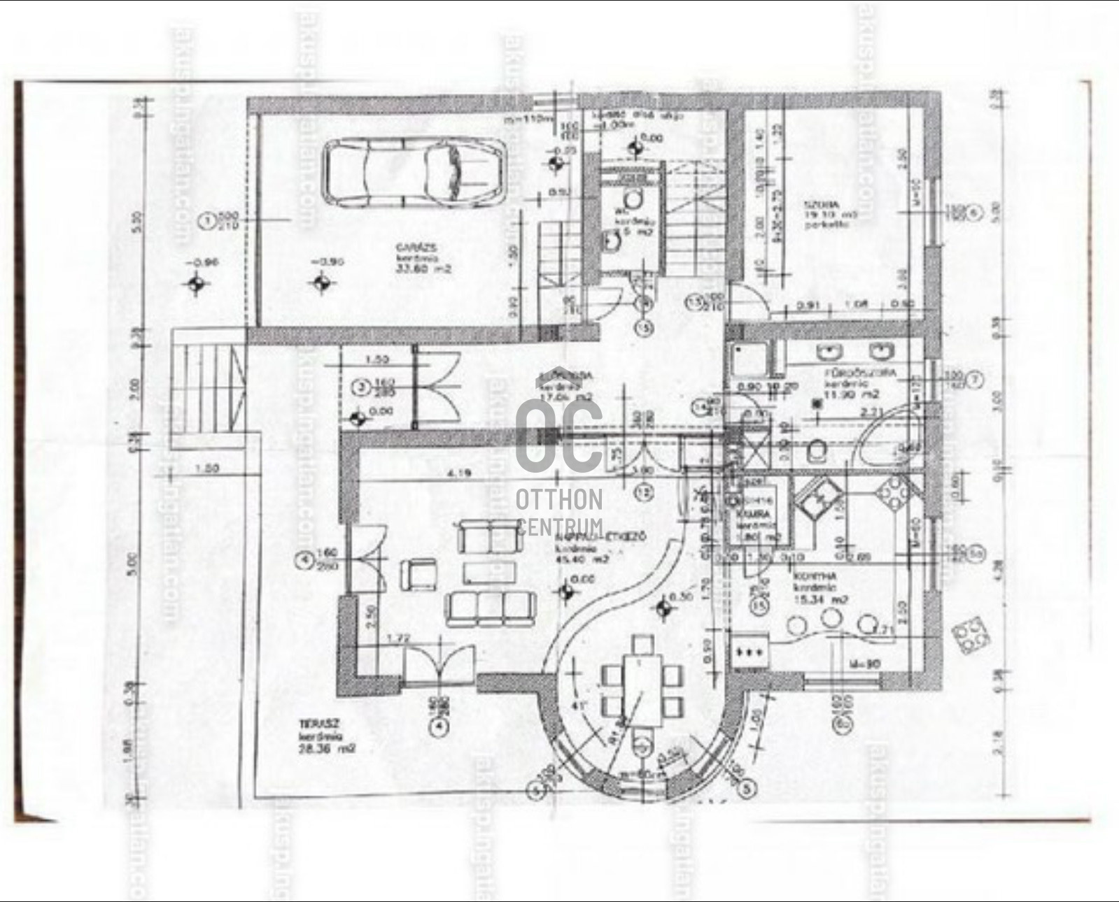
Az AUTOMATA KERTKAPUN keresztül jutunk be a rendezett kertbe, ahol a FŰTHETŐ burkolatú GÉPKOCSI FELHAJTÓN érjük el a házat és egyből be is állhatunk a KÉTÁLLÁSOS fűtött GARÁZSBA.
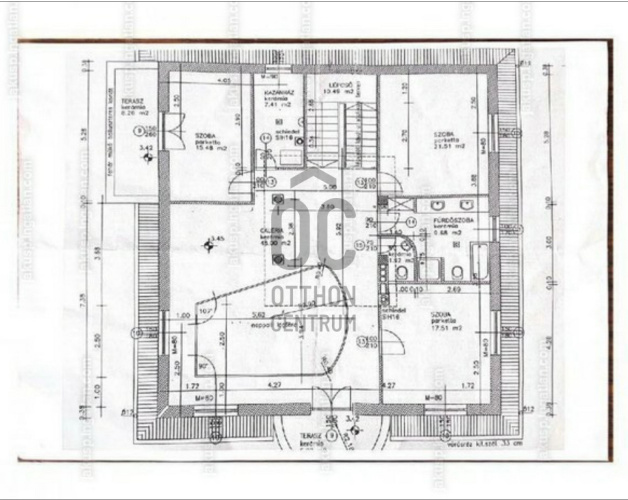
A földszinten HATALMAS, az emelettel EGYBENYITOTT világos NAPPALI, külön étkező résszel, praktikus konyha, a hozzátartozó kamrával, vendég HÁLÓSZOBA és természetesen fürdőszoba található. A lépcsőházból diszkréten nyílik a GARDÓB helyiség, amelyben egy kisebb ruhabolt teljes áruválasztéka beleférhet.
Az emeleti galériáról nyílik a 3 fenti HÁLÓSZOBA, amelyek közül kettőnek saját TERASZA is van szép panorámával a környékre.
Az egész házat a MINŐSÉGI anyaghasználat jellemzi, egyedi világítás megoldásokkal, gépészettel, központi porszívóval, klímával. A biztonságérzetet a kamera- és riasztórendszer támogatja.
Az udvaron feszített víztükrű MEDENCEjó szolgálatot tesz a nagy melegben, ráadásul a vizét napkollektor segítségével is felmelegíthetjük. Van itt még egy kb 30 m2-es FEDETT SZALETLI, sütögetési lehetőséggel, kerti asztalokkal, mosogatóval, ha összegyűlik a nagy család, vagy a baráti kör. Miközben a gyerekek a kertben játszanak, a BOROS PINCÉBŐL előkerülhetnek a házigazda jóféle itókái is.
Ha a belvárosban van dolga és a kocsit lerakja, a H8-as HÉV Ilonatelepi megállója sétatávolságra található, akárcsak a 44, 45, 92, 176E buszok megállója.
Ha felkeltettem érdeklődését, vagy további információra van szüksége, várom hívását!
Az AUTOMATA KERTKAPUN keresztül jutunk be a rendezett kertbe, ahol a FŰTHETŐ burkolatú GÉPKOCSI FELHAJTÓN érjük el a házat és egyből be is állhatunk a KÉTÁLLÁSOS fűtött GARÁZSBA.
A földszinten HATALMAS, az emelettel EGYBENYITOTT világos NAPPALI, külön étkező résszel, praktikus konyha, a hozzátartozó kamrával, vendég HÁLÓSZOBA és természetesen fürdőszoba található. A lépcsőházból diszkréten nyílik a GARDÓB helyiség, amelyben egy kisebb ruhabolt teljes áruválasztéka beleférhet.
Az emeleti galériáról nyílik a 3 fenti HÁLÓSZOBA, amelyek közül kettőnek saját TERASZA is van szép panorámával a környékre.
Az egész házat a MINŐSÉGI anyaghasználat jellemzi, egyedi világítás megoldásokkal, gépészettel, központi porszívóval, klímával. A biztonságérzetet a kamera- és riasztórendszer támogatja.
Az udvaron feszített víztükrű MEDENCEjó szolgálatot tesz a nagy melegben, ráadásul a vizét napkollektor segítségével is felmelegíthetjük. Van itt még egy kb 30 m2-es FEDETT SZALETLI, sütögetési lehetőséggel, kerti asztalokkal, mosogatóval, ha összegyűlik a nagy család, vagy a baráti kör. Miközben a gyerekek a kertben játszanak, a BOROS PINCÉBŐL előkerülhetnek a házigazda jóféle itókái is.
Ha a belvárosban van dolga és a kocsit lerakja, a H8-as HÉV Ilonatelepi megállója sétatávolságra található, akárcsak a 44, 45, 92, 176E buszok megállója.
Ha felkeltettem érdeklődését, vagy további információra van szüksége, várom hívását!
Regisztrációs szám
H506462
Az ingatlan adatai
Értékesités
eladó
Jogi státusz
használt
Jelleg
ház
Építési mód
tégla
Méret
308 m²
Bruttó méret
308 m²
Telek méret
1 371 m²
Terasz / erkély mérete
36 m²
Fűtés
gáz kazán
Belmagasság
300 cm
Lakáson belüli szintszám
2
Tájolás
Dél-kelet
Állapot
Jó
Homlokzat állapota
Jó
Pince
Önálló
Építés éve
1985
Fürdőszobák száma
2
Garázs
Benne van az árban
Garázs férőhely
2
Víz
Van
Gáz
Van
Villany
Van
Csatorna
Van
Helyiségek
nappali-étkező
45.4 m²
hálószoba
19.5 m²
konyha
15.3 m²
kamra
1.5 m²
fürdőszoba-wc
11.8 m²
wc-kézmosó
1.5 m²
garázs
32.6 m²
előszoba
17 m²
gardrób
45 m²
terasz
28.3 m²
galéria
15 m²
hálószoba
21.5 m²
hálószoba
17.5 m²
hálószoba
15.4 m²
fürdőszoba-wc
9 m²
wc-kézmosó
1.5 m²
kazánház
7.4 m²
terasz
8 m²
terasz
2.5 m²
közlekedő
15 m²

Pongó Miklós
Hitelszakértő