Elérhető Otthon Start hitellel
Eladó tanya,
H506383
Szekszárd, Felsőváros
15 000 000 Ft
39 000 €
- 90m²
- 2 szoba















Eladó nagyobb méretű gazdasági épület
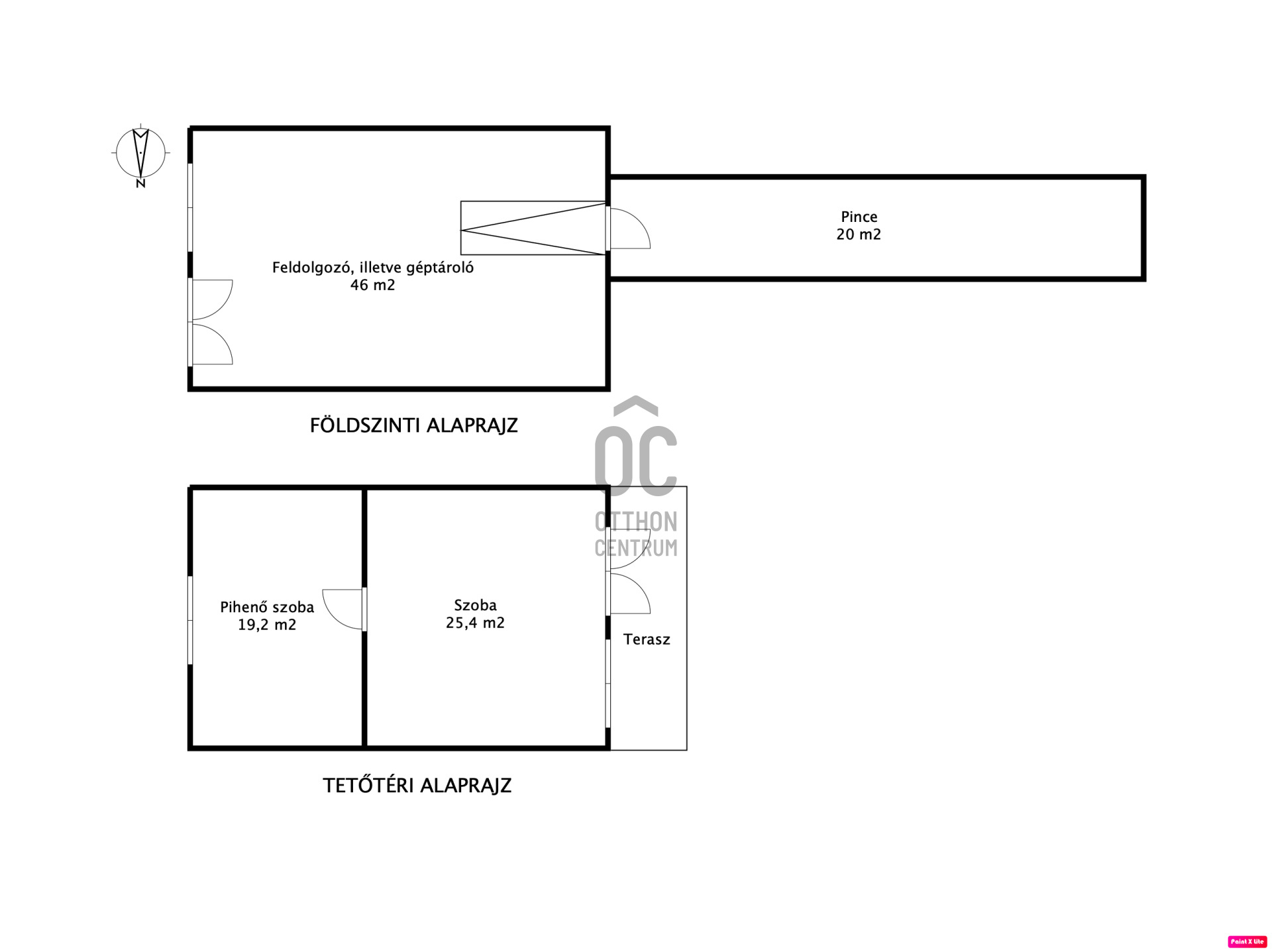
Szekszárdon a Kisbödő hegyen eladó 4120 m2-es telken 90 m2-es alapterületű ház (alsó szint 46 m2, felső szint 44 m2 bruttó).
A tanya tégla épület, 270 cm-es belmagasságú, ipari árammal ellátott.
Az esővizet 4 m3-es beton ciszternában tárolják, a terasz alatt.
Beton úton megközelíthető.
10 méter hosszú téglázott pince, és további 2 m földpince tartozik a gazdasági épülethez.
A területen bor szőlő és csemege szőlő is található, illetve a telek felső részén egy konyhakert is van.
A telek méretéből adódóan alkalmas annyi növény megtermelésére, ami egy család megélhetését tudja biztosítani.
A tanya alsó szintje garázsként is használható a nagyméretű kapunak, és az egyben 46 m2 alapterületnek.
Menjünk nézzük meg!
A tanya tégla épület, 270 cm-es belmagasságú, ipari árammal ellátott.
Az esővizet 4 m3-es beton ciszternában tárolják, a terasz alatt.
Beton úton megközelíthető.
10 méter hosszú téglázott pince, és további 2 m földpince tartozik a gazdasági épülethez.
A területen bor szőlő és csemege szőlő is található, illetve a telek felső részén egy konyhakert is van.
A telek méretéből adódóan alkalmas annyi növény megtermelésére, ami egy család megélhetését tudja biztosítani.
A tanya alsó szintje garázsként is használható a nagyméretű kapunak, és az egyben 46 m2 alapterületnek.
Menjünk nézzük meg!
Regisztrációs szám
H506383
Az ingatlan adatai
Értékesités
eladó
Jogi státusz
használt
Jelleg
ház
Építési mód
tégla
Méret
90 m²
Bruttó méret
90 m²
Telek méret
4 120 m²
Fűtés
cserépkályha (vegyes)
Belmagasság
272 cm
Tájolás
Kelet
Panoráma
Zöldre néző panoráma
Állapot
Jó
Homlokzat állapota
Jó
Pince
Önálló
Környék
csendes, jó közlekedés, zöld
Építés éve
1988
Garázs férőhely
2
Villany
Van
Helyiségek
egyéb helyiség
46 m²
szoba
19.2 m²
szoba
25.4 m²

Moczok Ágnes
Hitelszakértő