Elérhető Otthon Start hitellel
Eladó családi ház,
H503349
Vecsés, Andrássy-telep
104 990 000 Ft
270 000 €
- 212m²
- 4 szoba
***VECSÉS KÖZPONTJÁBAN KÍNÁLUNK ELADÁSRA EGY SOKOLDALÚ LEHETŐSÉGŰ, TÖBB GENERÁCIÓS CSALÁDI HÁZAT!***
Megvételre kínálok egy 652 NM-ES TELEKEN KÉT KÜLÖNÁLLÓ ÉPÜLET közül egy NAGYMÉRETŰ, 212 NM-ES LAKÓHÁZAT.
Az INGATLAN TÖKÉLETES VÁLASZTÁS akár NAGYCSALÁDOSOK, akár ÖSSZEKÖLTÖZŐ GENERÁCIÓK, vagy akár BEFEKTETŐK számára.
A NAGYHÁZ TÁGAS, több lakótér kialakítását teszi lehetővé, így kényelmet biztosít MINDENKINEK.
A nagyobbik ház a TELEK fő épülete, melyet folyamatosan modernizáltak az elmúlt évek során. Tágas tereivel és korszerű berendezéseivel kiváló családi élettér, ahol minden adott a kényelmes és takarékos mindennapokhoz.
Főbb jellemzők:
• 15 cm Dryvit homlokzati szigetelés került felhelyezésre 2017-ben, amely kiemelkedő hőszigetelést biztosít. Az extra vastag szigetelésnek köszönhetően télen minimálisra csökken a fűtési energiaigény, nyáron pedig lassabban melegszik fel a ház.
• Új nyílászárók a tetőtérben: 2017-ben a tetőtéri ablakokat és a teraszajtót korszerű, műanyag keretű, dupla üvegrétegű (dupla légkamrás) nyílászárókra cserélték, javítva a hő- és hangszigetelést.
• Korszerű fűtésrendszer vegyes tüzelésű kazán Wi-Fi-s Pellas X - X35 (35 kW-os) pellet égőfejjel felszerelve - ez a modem megoldás lehetővé teszi a fatüzelés és az automata pelletfűtés kombinálását. A pellet égőfej távolról vezérelhető, magas, akár 99% feletti égési hatékonysággal működik , így a fűtés egyszerre gazdaságos és kényelmes.
• Új keringető szivattyú a fűtésrendszerben: egy 2021 -ben beépített IMP Pumps NMT PLUS 25/80- 180 típusú, frekvenciavezérelt, energiahatékony keringető szivattyú gondoskodik a meleg víz gyors és halk keringetéséről a radiátorok felé.
• Okos vízmelegítő: 2025-ben telepített, Wi-Fi-s elektromos bojler (Ariston Velis EVŐ 100) biztosítja a meleg vizet. Ez a modem, lapos kialakítású 100 literes bojler távolról vezérelhető, és megtanulja a felhasználói szokásokat optimalizálva az energiafogyasztást - így mire hazaérünk, mindig forró zuhany vár, felesleges energiafogyasztás nélkül.
• Tetőtér teljes felújítása (2024): a felső szintet nemrég újították meg teljeskörúen. Új szigetelést kapott a tető, beépített szekrények biztosítják a helytakarékos tárolást, és egy modem zuhanyzós fürdőszoba is kialakításra került. A vízhálózatba Atlas márkájú vízszűrőket építettek be a még tisztább vízért. Minden helyiségben dekoratív álgerendákba rejtett LED világítás gondoskodik a hangulatos megvilágításról, egyedi karaktert adva a tetőtéri szobáknak.
• Szeparálható lakrész: a tetőtéri szint szükség esetén teljesen különválasztható, saját bejárattal is megközelíthető. Ezáltal a felső szint könnyedén átalakítható önálló lakássá - ideális megoldás például két generáció együttélésére külön élettérrel, vagy akár kiadásra is.
• Beépíthető padlás: a tetőtér felett további padlástér található, amely igény esetén beépíthető. Ez a további bővítési lehetőség a jövőben extra szobákat vagy tárolóhelyet jelenthet, ha valakinek nagyobb térre lenne szüksége.
Az ingatlan alatt egy masszív pince húzódik, mely kivételesen erős szerkezetű: 40 cm vastag betonfalakkal épült, összesen 72,7 m2 alapterületű. Ez a száraz, stabil hőmérsékletű pincetér kiváló tárolóhely (élelmiszernek, boroknak, szezonális holmiknak), de akár műhelynek vagy hobbihelyiségnek is ideális. A vastag falak nemcsak a stabilitást adják, hanem nyáron hűvösen, télen fagymentesen tartják a belső klímát.
A gondozott kert a zöld gyepfelülettel és a felszerelt pavilonnal ideális családi és baráti összejövetelek helyszíne. A parkosított kert 2020-ban nyerte el jelenlegi formáját, azóta igazi zöld oázisként szolgál. A -80 m2-es pázsitot egy robotfúnyíró tartja karban, így mindig rendezett a gyep. Önnek szinte semmi dolga vele. A kert végében esővédett pavilon várja a családot és vendégeket; sötétedés után a beépített LED-
világításnak köszönhetően tovább élvezhető a kinti pihenés, a körbefutó szúnyogháló pedig távol tartja a rovarokat. A kikapcsolódást egy professzionális kültéri hangrendszer is segíti - így akár kerti moziestet vagy zenés összejövetelt is tarthat a szabad ég alatt, a saját kertjében
A TELKEN BŐSÉGES HELY ÁLL RENDELKEZÉSRE, akár KERTÉSZKEDÉSRE, JÁTSZÓTÉR kialakítására vagy TOVÁBBI FEJLESZTÉSEKRE.
Az INGATLAN KÖNNYEN MEGKÖZELÍTHETŐ, VECSÉS népszerű részén helyezkedik el, ahol minden SZÜKSÉGES INFRASTRUKTÚRA elérhető: iskola, óvoda, üzletek és tömegközlekedés a közelben.
Ez az ELADÓ INGATLAN IDEÁLIS MEGOLDÁS mindenkinek, aki TÁGAS, KÉT KÜLÖN LAKRÉSZT kínáló OTTHONT keres, egy 652 NM-ES TELEK NYÚJTOTTA SZABADSÁGGAL. NE MARADJON LE ERRŐL AZ EGYEDI AJÁNLATRÓL!
További információért és a megtekintés miatt keressen bizalommal a hét bármely napján!
Megvételre kínálok egy 652 NM-ES TELEKEN KÉT KÜLÖNÁLLÓ ÉPÜLET közül egy NAGYMÉRETŰ, 212 NM-ES LAKÓHÁZAT.
Az INGATLAN TÖKÉLETES VÁLASZTÁS akár NAGYCSALÁDOSOK, akár ÖSSZEKÖLTÖZŐ GENERÁCIÓK, vagy akár BEFEKTETŐK számára.
A NAGYHÁZ TÁGAS, több lakótér kialakítását teszi lehetővé, így kényelmet biztosít MINDENKINEK.
A nagyobbik ház a TELEK fő épülete, melyet folyamatosan modernizáltak az elmúlt évek során. Tágas tereivel és korszerű berendezéseivel kiváló családi élettér, ahol minden adott a kényelmes és takarékos mindennapokhoz.
Főbb jellemzők:
• 15 cm Dryvit homlokzati szigetelés került felhelyezésre 2017-ben, amely kiemelkedő hőszigetelést biztosít. Az extra vastag szigetelésnek köszönhetően télen minimálisra csökken a fűtési energiaigény, nyáron pedig lassabban melegszik fel a ház.
• Új nyílászárók a tetőtérben: 2017-ben a tetőtéri ablakokat és a teraszajtót korszerű, műanyag keretű, dupla üvegrétegű (dupla légkamrás) nyílászárókra cserélték, javítva a hő- és hangszigetelést.
• Korszerű fűtésrendszer vegyes tüzelésű kazán Wi-Fi-s Pellas X - X35 (35 kW-os) pellet égőfejjel felszerelve - ez a modem megoldás lehetővé teszi a fatüzelés és az automata pelletfűtés kombinálását. A pellet égőfej távolról vezérelhető, magas, akár 99% feletti égési hatékonysággal működik , így a fűtés egyszerre gazdaságos és kényelmes.
• Új keringető szivattyú a fűtésrendszerben: egy 2021 -ben beépített IMP Pumps NMT PLUS 25/80- 180 típusú, frekvenciavezérelt, energiahatékony keringető szivattyú gondoskodik a meleg víz gyors és halk keringetéséről a radiátorok felé.
• Okos vízmelegítő: 2025-ben telepített, Wi-Fi-s elektromos bojler (Ariston Velis EVŐ 100) biztosítja a meleg vizet. Ez a modem, lapos kialakítású 100 literes bojler távolról vezérelhető, és megtanulja a felhasználói szokásokat optimalizálva az energiafogyasztást - így mire hazaérünk, mindig forró zuhany vár, felesleges energiafogyasztás nélkül.
• Tetőtér teljes felújítása (2024): a felső szintet nemrég újították meg teljeskörúen. Új szigetelést kapott a tető, beépített szekrények biztosítják a helytakarékos tárolást, és egy modem zuhanyzós fürdőszoba is kialakításra került. A vízhálózatba Atlas márkájú vízszűrőket építettek be a még tisztább vízért. Minden helyiségben dekoratív álgerendákba rejtett LED világítás gondoskodik a hangulatos megvilágításról, egyedi karaktert adva a tetőtéri szobáknak.
• Szeparálható lakrész: a tetőtéri szint szükség esetén teljesen különválasztható, saját bejárattal is megközelíthető. Ezáltal a felső szint könnyedén átalakítható önálló lakássá - ideális megoldás például két generáció együttélésére külön élettérrel, vagy akár kiadásra is.
• Beépíthető padlás: a tetőtér felett további padlástér található, amely igény esetén beépíthető. Ez a további bővítési lehetőség a jövőben extra szobákat vagy tárolóhelyet jelenthet, ha valakinek nagyobb térre lenne szüksége.
Az ingatlan alatt egy masszív pince húzódik, mely kivételesen erős szerkezetű: 40 cm vastag betonfalakkal épült, összesen 72,7 m2 alapterületű. Ez a száraz, stabil hőmérsékletű pincetér kiváló tárolóhely (élelmiszernek, boroknak, szezonális holmiknak), de akár műhelynek vagy hobbihelyiségnek is ideális. A vastag falak nemcsak a stabilitást adják, hanem nyáron hűvösen, télen fagymentesen tartják a belső klímát.
A gondozott kert a zöld gyepfelülettel és a felszerelt pavilonnal ideális családi és baráti összejövetelek helyszíne. A parkosított kert 2020-ban nyerte el jelenlegi formáját, azóta igazi zöld oázisként szolgál. A -80 m2-es pázsitot egy robotfúnyíró tartja karban, így mindig rendezett a gyep. Önnek szinte semmi dolga vele. A kert végében esővédett pavilon várja a családot és vendégeket; sötétedés után a beépített LED-
világításnak köszönhetően tovább élvezhető a kinti pihenés, a körbefutó szúnyogháló pedig távol tartja a rovarokat. A kikapcsolódást egy professzionális kültéri hangrendszer is segíti - így akár kerti moziestet vagy zenés összejövetelt is tarthat a szabad ég alatt, a saját kertjében
A TELKEN BŐSÉGES HELY ÁLL RENDELKEZÉSRE, akár KERTÉSZKEDÉSRE, JÁTSZÓTÉR kialakítására vagy TOVÁBBI FEJLESZTÉSEKRE.
Az INGATLAN KÖNNYEN MEGKÖZELÍTHETŐ, VECSÉS népszerű részén helyezkedik el, ahol minden SZÜKSÉGES INFRASTRUKTÚRA elérhető: iskola, óvoda, üzletek és tömegközlekedés a közelben.
Ez az ELADÓ INGATLAN IDEÁLIS MEGOLDÁS mindenkinek, aki TÁGAS, KÉT KÜLÖN LAKRÉSZT kínáló OTTHONT keres, egy 652 NM-ES TELEK NYÚJTOTTA SZABADSÁGGAL. NE MARADJON LE ERRŐL AZ EGYEDI AJÁNLATRÓL!
További információért és a megtekintés miatt keressen bizalommal a hét bármely napján!
Regisztrációs szám
H503349
Az ingatlan adatai
Értékesités
eladó
Jogi státusz
használt
Jelleg
ház
Építési mód
tégla
Méret
212 m²
Bruttó méret
212 m²
Telek méret
652 m²
Fűtés
vegyestüzelésű kazán
Belmagasság
260 cm
Lakáson belüli szintszám
1
Tájolás
Észak-kelet
Állapot
Jó
Homlokzat állapota
Jó
Környék
csendes, jó közlekedés, központi
Építés éve
1990
Fürdőszobák száma
2
Víz
Van
Gáz
Van
Villany
Van
Csatorna
Van
Helyiségek
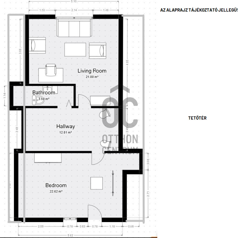
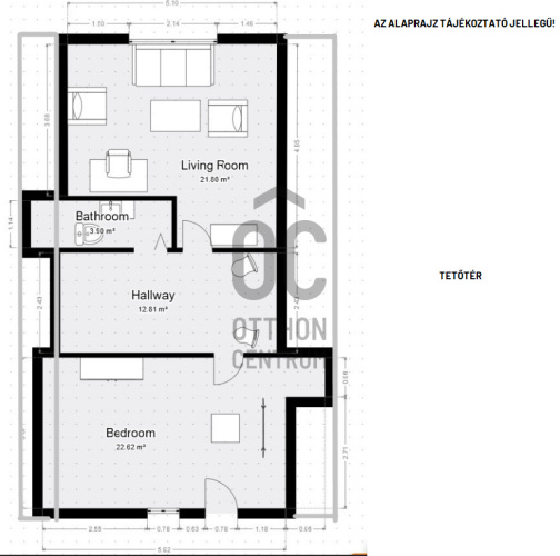
nappali
21.8 m²
fürdőszoba-wc
3.9 m²
közlekedő
12.81 m²
hálószoba
22.62 m²
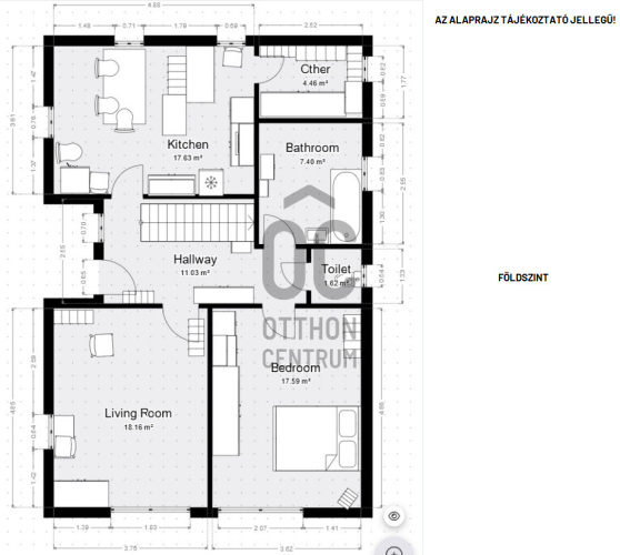
konyha
17.63 m²
kamra
4.46 m²
fürdőszoba
7.4 m²
wc
1.62 m²
hálószoba
17.59 m²
nappali
18.16 m²
közlekedő
11.03 m²
pince
72.7 m²
Németh István
Hitelszakértő