469 000 000 Ft
1 197 000 €
- 282m²
- 8 szoba




























Eladó különleges családi ház Budán, örök panorámával és természetközeli életérzéssel !
A Budai-hegyek egyik legvarázslatosabb pontján, a XII. kerület zöldövezeti részén, közvetlenül a természetvédelmi terület határán kínálunk megvételre egy egyedülálló hangulatú, többszintes családi házat. Az ingatlan egy eldugott, csendes, forgalomtól mentes utcában található, ahonnan lenyűgöző, elvehetetlen panoráma nyílik az erdős domboldalra. A ház ideális választás mindazok számára, akik egyszerre szeretnének a város közelében élni, mégis a természet ölelésében, teljes nyugalomban.
A napfényes, déli fekvésű épület egy közel 1000 m²-es, vadregényes kerttel körülvett telken található, ahol idős tölgyfák, gondozott zöldfelületek és a környékre jellemző állatvilág – mókusok, sünök, madarak – teszik teljessé a természetközeli hangulatot. A belső terek több teraszon és erkélyen keresztül közvetlen kapcsolatban állnak a kerttel, így a természet közelsége a mindennapok része. A ház kialakítása lehetőséget ad több generáció kényelmes együttélésére is, valamint külön bejáratú lakrészt is tartalmaz, amely ideális lehet vendégek fogadására, bérbeadásra vagy akár otthoni munkavégzésre.
Az ingatlan építészeti értéke kiemelkedő: Kossuth- és Ybl-díjas építész tervei alapján valósult meg, és megjelenhetett a Lakáskultúra magazin címlapján is. A nagyvonalúan kialakított belső terek különleges térélményt nyújtanak, a ház szinteltolásos szerkezete pedig természetes módon követi a környező domborzatot. Az otthon kényelmét és kikapcsolódási lehetőségeit tovább fokozza a saját szauna, amely kellemes kiegészítője a természetközeli életformának.
A ház jelenlegi állapota felújítást igényel, ezáltal teljes mértékben az új tulajdonos elképzelései szerint formálható. A déli fekvés és a tető adottságai révén ideális lehet napelemes rendszer kiépítésére is, így a fenntartható otthon kialakításának minden feltétele adott. Az ingatlan megközelíthetősége is rendkívül kedvező: autóval a belváros mindössze 10 perc, tömegközlekedéssel körülbelül 30 perc alatt elérhető.
Ez a ház ritka lehetőséget kínál azok számára, akik természetközeli, mégis város közeli otthonra vágynak Budapest egyik legzöldebb városrészében. Legyen szó több generáció együttéléséről, reprezentatív családi élettérről vagy egy inspiráló, kreatív otthon kialakításáról – ez az ingatlan kiemelkedő adottságokkal szolgál bármely élethelyzetre.
További információért vagy megtekintés egyeztetéséért várom megkeresését bizalommal.
A Budai-hegyek egyik legvarázslatosabb pontján, a XII. kerület zöldövezeti részén, közvetlenül a természetvédelmi terület határán kínálunk megvételre egy egyedülálló hangulatú, többszintes családi házat. Az ingatlan egy eldugott, csendes, forgalomtól mentes utcában található, ahonnan lenyűgöző, elvehetetlen panoráma nyílik az erdős domboldalra. A ház ideális választás mindazok számára, akik egyszerre szeretnének a város közelében élni, mégis a természet ölelésében, teljes nyugalomban.
A napfényes, déli fekvésű épület egy közel 1000 m²-es, vadregényes kerttel körülvett telken található, ahol idős tölgyfák, gondozott zöldfelületek és a környékre jellemző állatvilág – mókusok, sünök, madarak – teszik teljessé a természetközeli hangulatot. A belső terek több teraszon és erkélyen keresztül közvetlen kapcsolatban állnak a kerttel, így a természet közelsége a mindennapok része. A ház kialakítása lehetőséget ad több generáció kényelmes együttélésére is, valamint külön bejáratú lakrészt is tartalmaz, amely ideális lehet vendégek fogadására, bérbeadásra vagy akár otthoni munkavégzésre.
Az ingatlan építészeti értéke kiemelkedő: Kossuth- és Ybl-díjas építész tervei alapján valósult meg, és megjelenhetett a Lakáskultúra magazin címlapján is. A nagyvonalúan kialakított belső terek különleges térélményt nyújtanak, a ház szinteltolásos szerkezete pedig természetes módon követi a környező domborzatot. Az otthon kényelmét és kikapcsolódási lehetőségeit tovább fokozza a saját szauna, amely kellemes kiegészítője a természetközeli életformának.
A ház jelenlegi állapota felújítást igényel, ezáltal teljes mértékben az új tulajdonos elképzelései szerint formálható. A déli fekvés és a tető adottságai révén ideális lehet napelemes rendszer kiépítésére is, így a fenntartható otthon kialakításának minden feltétele adott. Az ingatlan megközelíthetősége is rendkívül kedvező: autóval a belváros mindössze 10 perc, tömegközlekedéssel körülbelül 30 perc alatt elérhető.
Ez a ház ritka lehetőséget kínál azok számára, akik természetközeli, mégis város közeli otthonra vágynak Budapest egyik legzöldebb városrészében. Legyen szó több generáció együttéléséről, reprezentatív családi élettérről vagy egy inspiráló, kreatív otthon kialakításáról – ez az ingatlan kiemelkedő adottságokkal szolgál bármely élethelyzetre.
További információért vagy megtekintés egyeztetéséért várom megkeresését bizalommal.
Regisztrációs szám
H502590
Az ingatlan adatai
Értékesités
eladó
Jogi státusz
használt
Jelleg
ház
Építési mód
tégla
Méret
282 m²
Bruttó méret
313 m²
Telek méret
999 m²
Fűtés
Gáz cirkó
Belmagasság
300 cm
Lakáson belüli szintszám
4
Tájolás
Dél
Állapot
Átlagos
Homlokzat állapota
Jó
Pince
Önálló
Építés éve
1975
Fürdőszobák száma
2
Víz
Van
Gáz
Van
Villany
Van
Csatorna
Utcán
Többgenerációs
igen
Tároló
Önálló
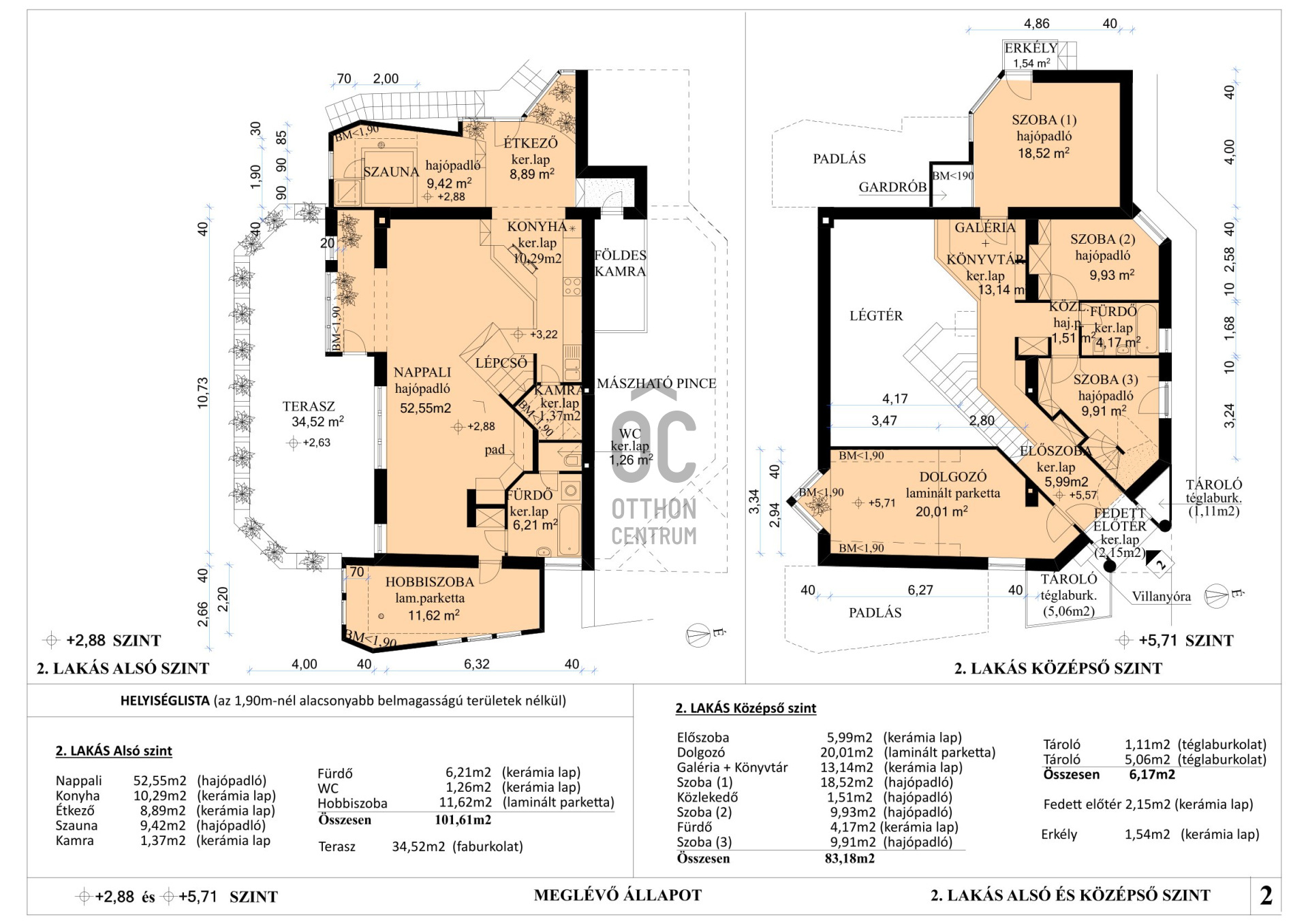
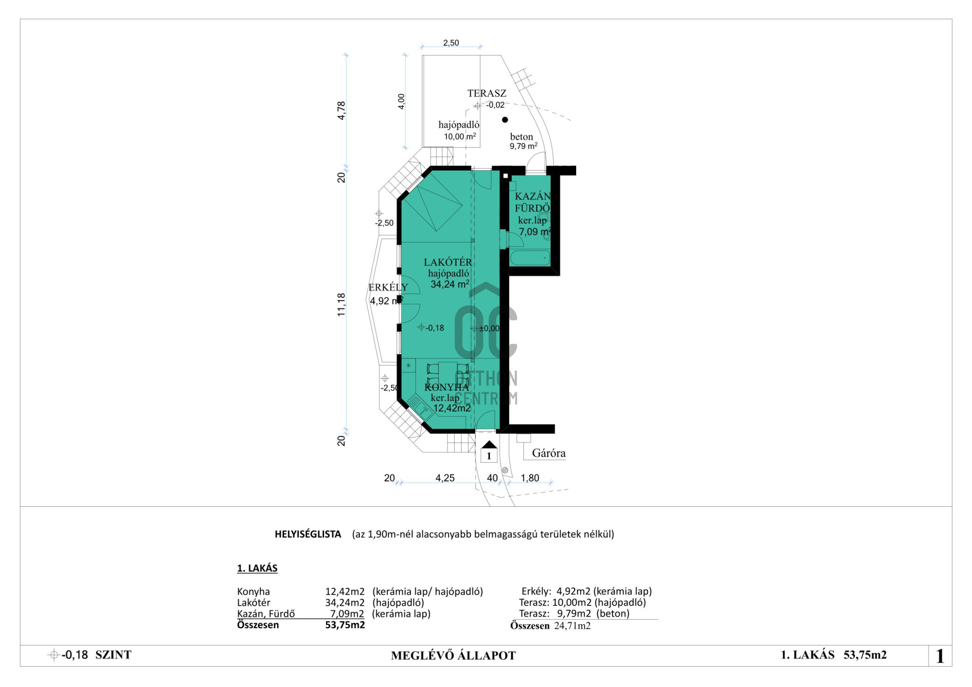
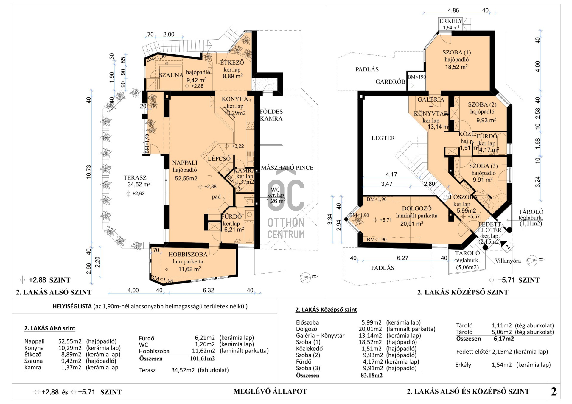
Helyiségek
szoba
9.49 m²
szoba
8.12 m²
szoba
9.17 m²
szoba
16.45 m²
szoba
9.93 m²
fürdőszoba
3.17 m²
dolgozószoba
21.01 m²
erkély
24.71 m²
nappali-konyha
62.73 m²
előszoba
5.34 m²
közlekedő
14.26 m²
fürdőszoba
2.33 m²
fürdőszoba
4.7 m²
kamra
0.8 m²
ebédlő
8.89 m²

Pfeffer Kinga
Hitelszakértő