Eladó lakás, H502448
Budapest V. kerület, Belváros, Haris köz

270 000 000 Ft

702 000 €

  • 150m²
  • 5 szoba
  • 3. emelet

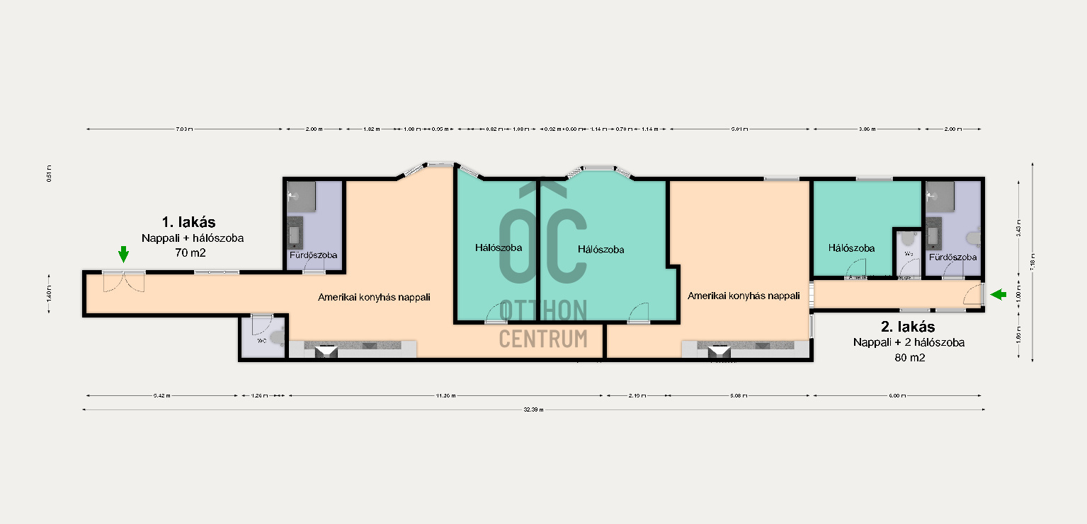
Csak igazán komoly embereknek! Belváros, Haris köz, 2 lakás teljes berendezéssel!

A Belváros közepében, szó szerint néhány lépésre a Váci utcától, a Haris közben eladó egy 150 m2 alapterületű világos lakás, amely KÉT teljesen KÜLÖNÁLLÓ LAKÁSSÁ lett felosztva. A 2 évvel ezelőtti teljeskörű felújításnak köszönhetően mindkettő KIVÁLÓ állapotban van. A közművek lakásonként szétválasztva, külön cirkó fűtéssel, klímákkal.

-az egyik lakás 80 m2-es, NAPPALI + 2 HÁLÓSZOBÁS
-a másik lakás 70 m2-es, NAPPALI + HÁLÓSZOBÁS elosztású

A lakások két külön lépcsőházból közelíthetőek meg. Igény esetén, ha mégis nagyobbra vágyna, az eredeti méret könnyen visszaalakítható.
Elhelyezkedése miatt kiadásra optimalizálva, ezért a vételár tartalmazza a TELJES BERENDEZÉST, az alig használt GÉPEKET és az összes BÚTORT!
Megfelelő ajánlat esetén, akár azonnal birtokba vehető, így egyből ki is adható!
Egy remek befektetési lehetőség a Belvárosból!

Regisztrációs szám

H502448

Az ingatlan adatai

Értékesités
eladó
Jogi státusz
használt
Jelleg
lakás
Építési mód
tégla
Méret
150 m²
Bruttó méret
150 m²
Fűtés
Gáz cirkó
Belmagasság
354 cm
Lakáson belüli szintszám
1
Tájolás
Észak
Lépcsőház típusa
zárt lépcsőház
Állapot
Kiváló
Homlokzat állapota
Lépcsőház állapota
Környék
jó közlekedés, központi
Építés éve
1911
Fürdőszobák száma
2
Fekvés
utcai
Közös költség
46000
Víz
Van
Gáz
Van
Villany
Van
Csatorna
Van
Lift
van

Helyiségek

nappali-konyha
30 m²
hálószoba
23.5 m²
hálószoba
10 m²
előszoba
6 m²
fürdőszoba-wc
6 m²
közlekedő
2.5 m²
wc-kézmosó
2 m²
nappali-konyha
32.5 m²
hálószoba
14.8 m²
fürdőszoba-wc
6.4 m²
előszoba
10 m²
közlekedő
4.6 m²
wc-kézmosó
2.1 m²
Pongó Miklós
Pongó Miklós

Hitelszakértő

Irodánk kínálatából - VIII. kerület - József körút

for sale family house

Index image
data_sheet.details.realestate.section.main.otthonstart_flag.label
16

for sale apartment

Index image
19

for sale panel apartment

Index image
21

for sale house part

Index image
data_sheet.details.realestate.section.main.otthonstart_flag.label
19

for sale apartment

Index image
data_sheet.details.realestate.section.main.otthonstart_flag.label
12

for sale apartment

Index image
15

for sale family house

Index image
data_sheet.details.realestate.section.main.otthonstart_flag.label
19