Elérhető Otthon Start hitellel
Eladó családi ház,
H502417
Délegyháza
149 000 000 Ft
393 000 €
- 156m²
- 5 szoba
ÖRÖKPANORÁMÁS, közvetlen vízparti, felújított 5 szobás, 2 fürdős családi ház Délegyházán
Délegyháza, tavakkal körbezárt, csendes, hangulatos sétányán eladó egy 2007-es építésű 2 szintes családi ház.
A házata a kivitelező saját magának, magas minőségben építette és a jelenlegi tulajdonos az elmúlt évben felújította, itt még a tisztasági festésre sincs szükség
A ház nappalija és ahhoz tartozó terasz a tóra enged kilátást ahova a délkeleti fekvés maitt a kora reggeli és a délelőtt nap süt.
A kertből, közvetlenül a tópartra tudunk lemenni, ahol a házhoz tartozó stégen piheneht a leendő tulajdonos vagy idulhat horgászni.
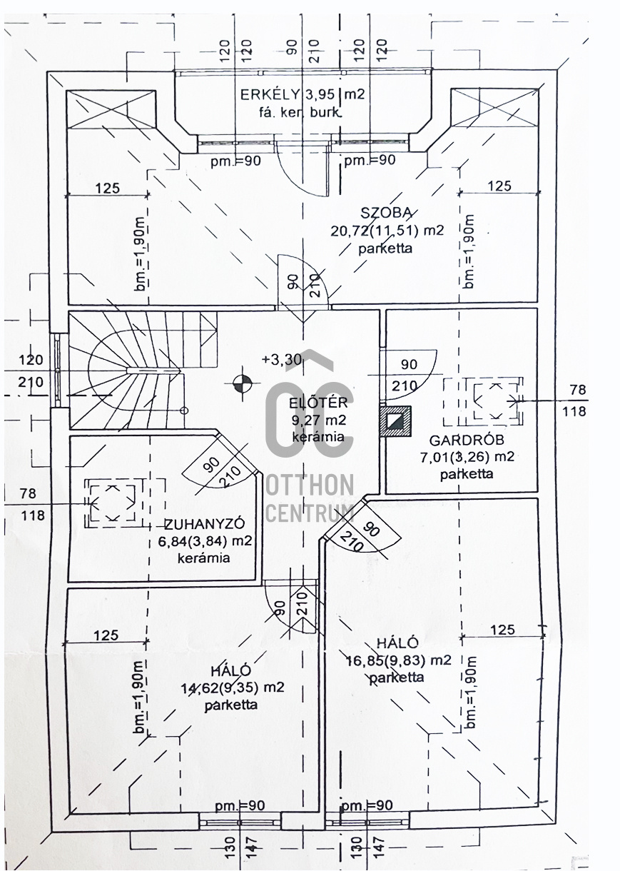
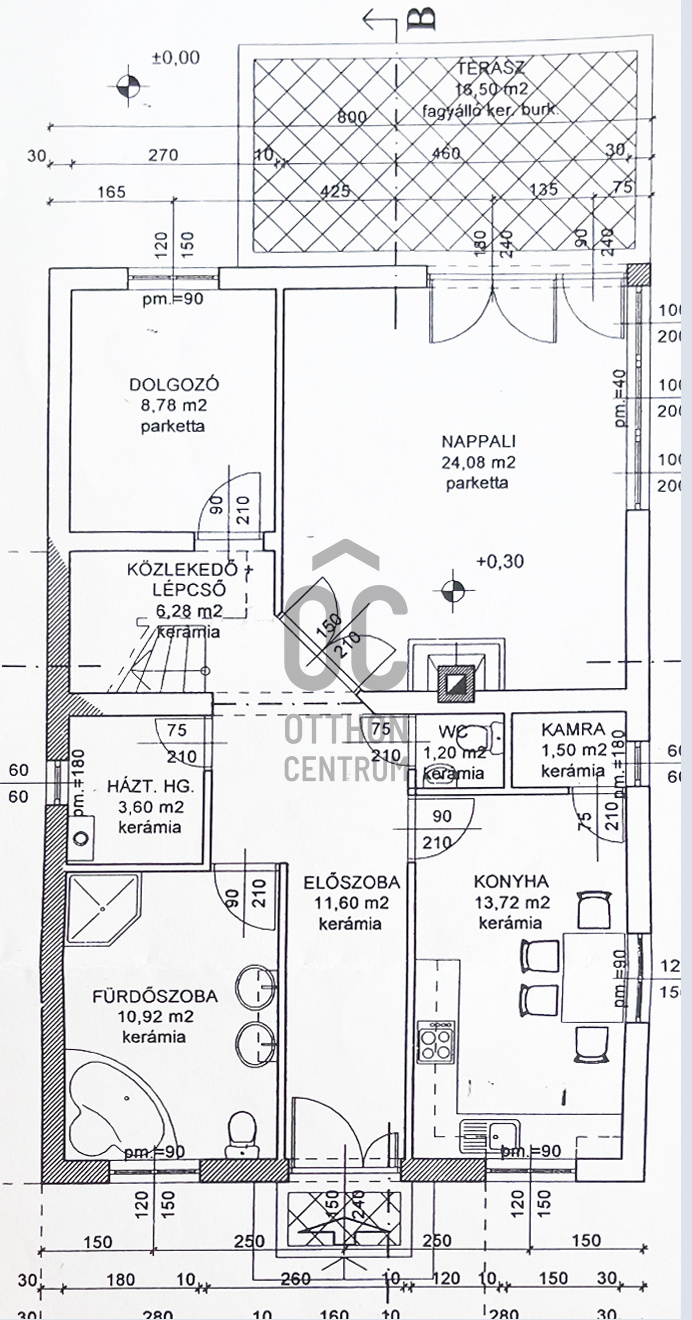
A teljesen körbejárható ház udvarán dupla fedett kocsibeálló és további szabadtéri parkolási lehetőség van. A földszinten találhat az élettér a 24 m2-es nappalival, konyha-étkezővel, fürdővel és egy dolgozoószobával.
Az emelet foglalja a magába a lakóteret 3 hálóval, fürdővel és egy hatalmas gardróbbal.
Azoknak ajánlom a házat, akik a fővároshoz közel, de mégs extrém nyugodt környezetben, vízparton szeretnének élni, egy magas minőségű, igazi pihenést biztosító családi házban.
További információkért és megtekintés miatt keressen, akár hétvégén is.
Családi ház délegyházán, vízparti ház, vízparti családi ház, vízparti ház délegyházán, családi ház pest vármegyében
A házata a kivitelező saját magának, magas minőségben építette és a jelenlegi tulajdonos az elmúlt évben felújította, itt még a tisztasági festésre sincs szükség
A ház nappalija és ahhoz tartozó terasz a tóra enged kilátást ahova a délkeleti fekvés maitt a kora reggeli és a délelőtt nap süt.
A kertből, közvetlenül a tópartra tudunk lemenni, ahol a házhoz tartozó stégen piheneht a leendő tulajdonos vagy idulhat horgászni.
A teljesen körbejárható ház udvarán dupla fedett kocsibeálló és további szabadtéri parkolási lehetőség van. A földszinten találhat az élettér a 24 m2-es nappalival, konyha-étkezővel, fürdővel és egy dolgozoószobával.
Az emelet foglalja a magába a lakóteret 3 hálóval, fürdővel és egy hatalmas gardróbbal.
Azoknak ajánlom a házat, akik a fővároshoz közel, de mégs extrém nyugodt környezetben, vízparton szeretnének élni, egy magas minőségű, igazi pihenést biztosító családi házban.
További információkért és megtekintés miatt keressen, akár hétvégén is.
Családi ház délegyházán, vízparti ház, vízparti családi ház, vízparti ház délegyházán, családi ház pest vármegyében
Regisztrációs szám
H502417
Az ingatlan adatai
Értékesités
eladó
Jogi státusz
használt
Jelleg
ház
Építési mód
tégla
Méret
156 m²
Bruttó méret
156 m²
Telek méret
354 m²
Terasz / erkély mérete
30 m²
Fűtés
Gáz cirkó
Belmagasság
299 cm
Tájolás
Dél-kelet
Panoráma
folyóra tóra néző panoráma
Állapot
Kiváló
Homlokzat állapota
Kiváló
Pince
Önálló
Környék
csendes, zöld
Építés éve
2010
Fürdőszobák száma
2
Fedett beállók száma
2
Víz
Van
Gáz
Van
Villany
Van
Csatorna
Van
Vízpart távolsága
Közvetlen vízparti
Helyiségek
nappali
24 m²
konyha-étkező
14 m²
dolgozószoba
9 m²
háztartási helyiség
4 m²
fürdőszoba-wc
11 m²
közlekedő
12 m²
terasz
30 m²
kamra
1.5 m²
wc
1 m²
közlekedő
6 m²
hálószoba
23 m²
hálószoba
15 m²
hálószoba
17 m²
gardrób
7 m²
Vitéz Kornél
Hitelszakértő