159 000 000 Ft
408 000 €
- 77m²
- 3 szoba
Letisztult elegancia Sopron legnívósabb városrészén – 77 m2- es ikerház az Alsólőverekben
Eladó Sopron egyik legexkluzívabb környékén, az Alsólőverek csendes, zöldövezeti utcájában egy 2020-ban épült, kétszintes, modern ikerházfél, amely még soha nem volt lakott – így Ön lehet az első, aki birtokba veszi ezt a kivételes otthont.
A közel 80 m²-es lakótér elrendezése ideális párok vagy egy gyermekes családok számára. Az ingatlan azonnal költözhető állapotban van, és minden részlete a minőséget és az átgondolt tervezést tükrözi.
Főbb jellemzők:
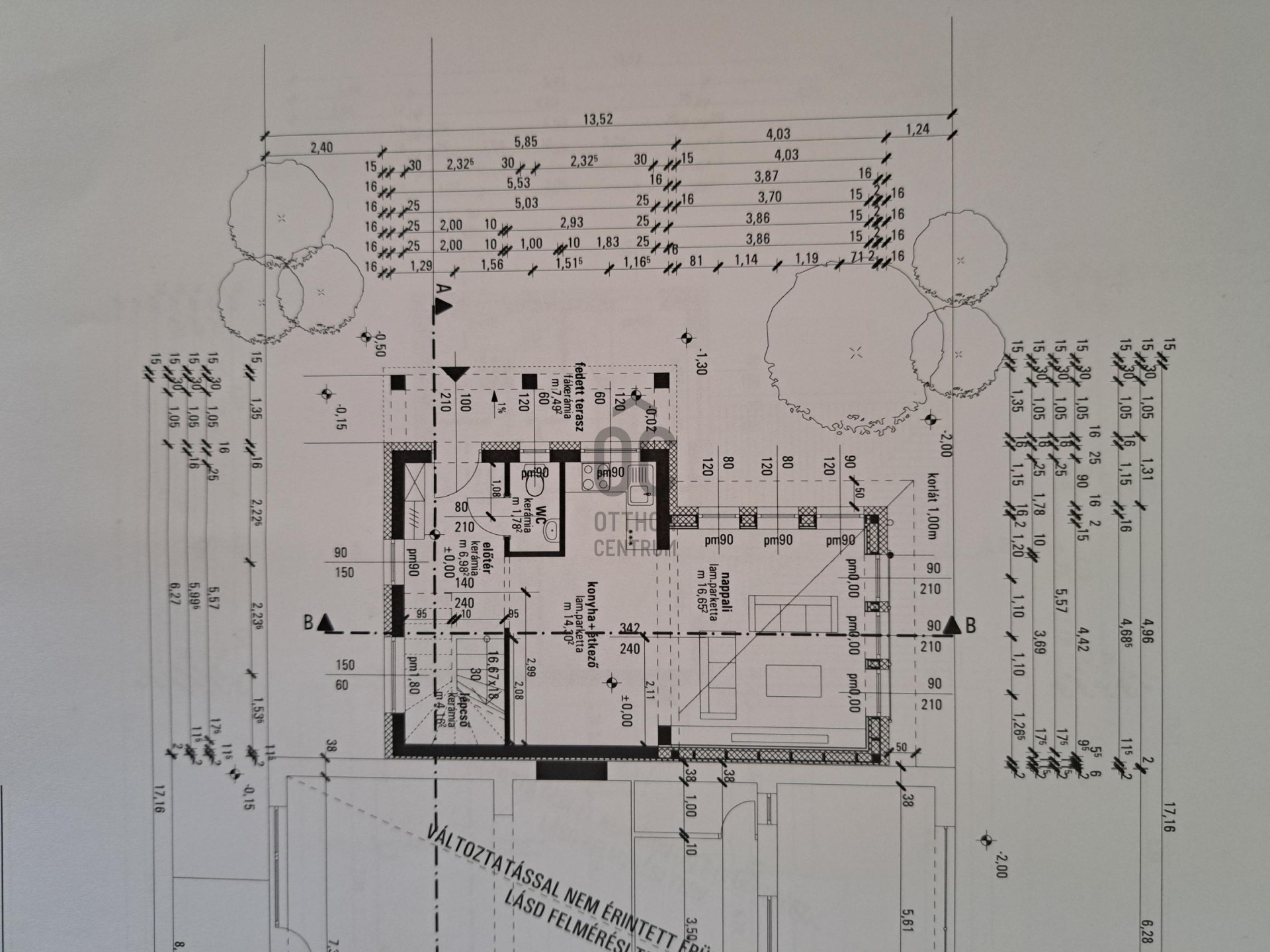
Földszinten: amerikai konyhás nappali, ahonnan lélegzetelállító panoráma nyílik Sopronra, tároló és külön WC
Emeleten: 2 hálószoba lenyűgöző kilátással, fürdőszoba
A nappalihoz akár erkély is hozzáépíthető, az emeleten pedig tetőterasz kialakítása is lehetséges
Hajópadló burkolat, beépített sütő és mosogatógép a konyhában
Vaillant gázkazán, padlófűtés, 3 rétegű üvegezés, alumínium redőnyök és rovarhálók. Az emeleti szint klimatizált.
Különálló, 20 m²-es tárolóhelyiség
750 m²-es, parkosított kert – zöld, nyugodt környezet
Miért különleges ez az otthon?
Prestízslokáció: Alsólőverek – a város egyik legkeresettebb része
Első lakóként birtokba vehető – újszerű, hibátlan állapot
Modern technikai megoldások, természetközeli miliővel ötvözve
Ideális azoknak, akik értéket keresnek nem csupán ingatlanban, hanem életminőségben is
Ha Ön egy olyan otthont keres, ahol a nyugalom, az elegancia és a minőség kéz a kézben jár, akkor ne hagyja ki ezt a lehetőséget!
További információért, vagy személyes megtekintéshez kérem, vegye fel velem a kapcsolatot!
Hitelre van szüksége?
Az Otthon Centrum az ország egyik legnagyobb és legmegbízhatóbb hitelközvetítőjeként, teljes körű és díjmentes hitelügyintézéssel, biztosításkötéssel áll rendelkezésére!
Kérje személyre szabott ajánlatunkat Kollégáinktól!
A közel 80 m²-es lakótér elrendezése ideális párok vagy egy gyermekes családok számára. Az ingatlan azonnal költözhető állapotban van, és minden részlete a minőséget és az átgondolt tervezést tükrözi.
Főbb jellemzők:
Földszinten: amerikai konyhás nappali, ahonnan lélegzetelállító panoráma nyílik Sopronra, tároló és külön WC
Emeleten: 2 hálószoba lenyűgöző kilátással, fürdőszoba
A nappalihoz akár erkély is hozzáépíthető, az emeleten pedig tetőterasz kialakítása is lehetséges
Hajópadló burkolat, beépített sütő és mosogatógép a konyhában
Vaillant gázkazán, padlófűtés, 3 rétegű üvegezés, alumínium redőnyök és rovarhálók. Az emeleti szint klimatizált.
Különálló, 20 m²-es tárolóhelyiség
750 m²-es, parkosított kert – zöld, nyugodt környezet
Miért különleges ez az otthon?
Prestízslokáció: Alsólőverek – a város egyik legkeresettebb része
Első lakóként birtokba vehető – újszerű, hibátlan állapot
Modern technikai megoldások, természetközeli miliővel ötvözve
Ideális azoknak, akik értéket keresnek nem csupán ingatlanban, hanem életminőségben is
Ha Ön egy olyan otthont keres, ahol a nyugalom, az elegancia és a minőség kéz a kézben jár, akkor ne hagyja ki ezt a lehetőséget!
További információért, vagy személyes megtekintéshez kérem, vegye fel velem a kapcsolatot!
Hitelre van szüksége?
Az Otthon Centrum az ország egyik legnagyobb és legmegbízhatóbb hitelközvetítőjeként, teljes körű és díjmentes hitelügyintézéssel, biztosításkötéssel áll rendelkezésére!
Kérje személyre szabott ajánlatunkat Kollégáinktól!
Regisztrációs szám
H501634
Az ingatlan adatai
Értékesités
eladó
Jogi státusz
használt
Jelleg
ház
Építési mód
tégla
Méret
77 m²
Bruttó méret
77 m²
Telek méret
750 m²
Fűtés
Gáz cirkó
Belmagasság
259 cm
Lakáson belüli szintszám
1
Tájolás
Észak
Állapot
Kiváló
Homlokzat állapota
Kiváló
Környék
csendes, zöld
Építés éve
2020
Fürdőszobák száma
1
Víz
Van
Gáz
Van
Villany
Van
Csatorna
Van
Helyiségek
előszoba
6.98 m²
lépcsőház
8 m²
wc-kézmosó
1.78 m²
konyha-étkező
14.3 m²
nappali
16.65 m²
hálószoba
9.02 m²
hálószoba
10.23 m²
közlekedő
4.77 m²
fürdőszoba-wc
5.28 m²
Horváth Zsoltné Edit
Hitelszakértő