Eladó lakás, H499942
Budapest V. kerület, Belváros, Múzeum körút

218 000 000 Ft

565 000 €

  • 79m²
  • 2 szoba
  • 6. emelet

LOFT ASTORIA!

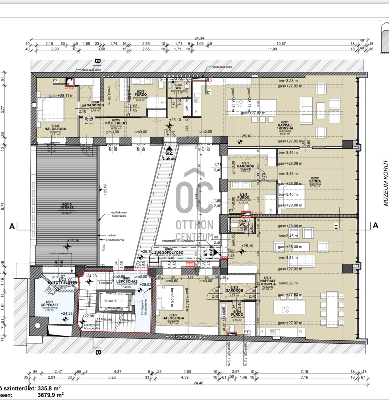
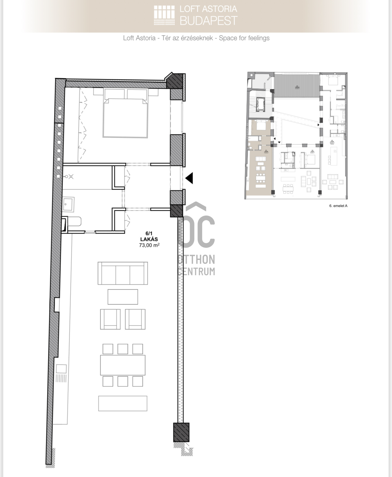
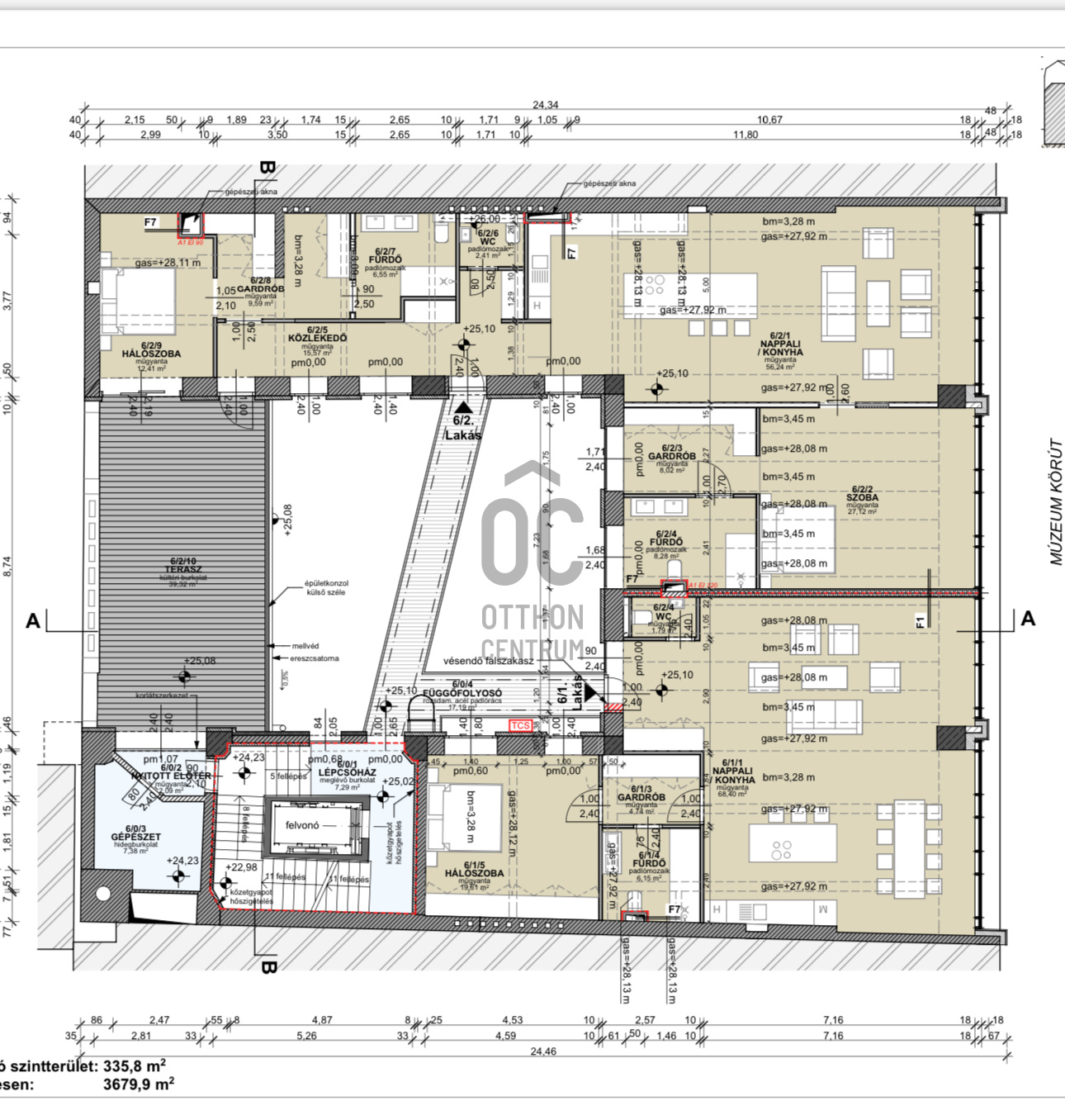
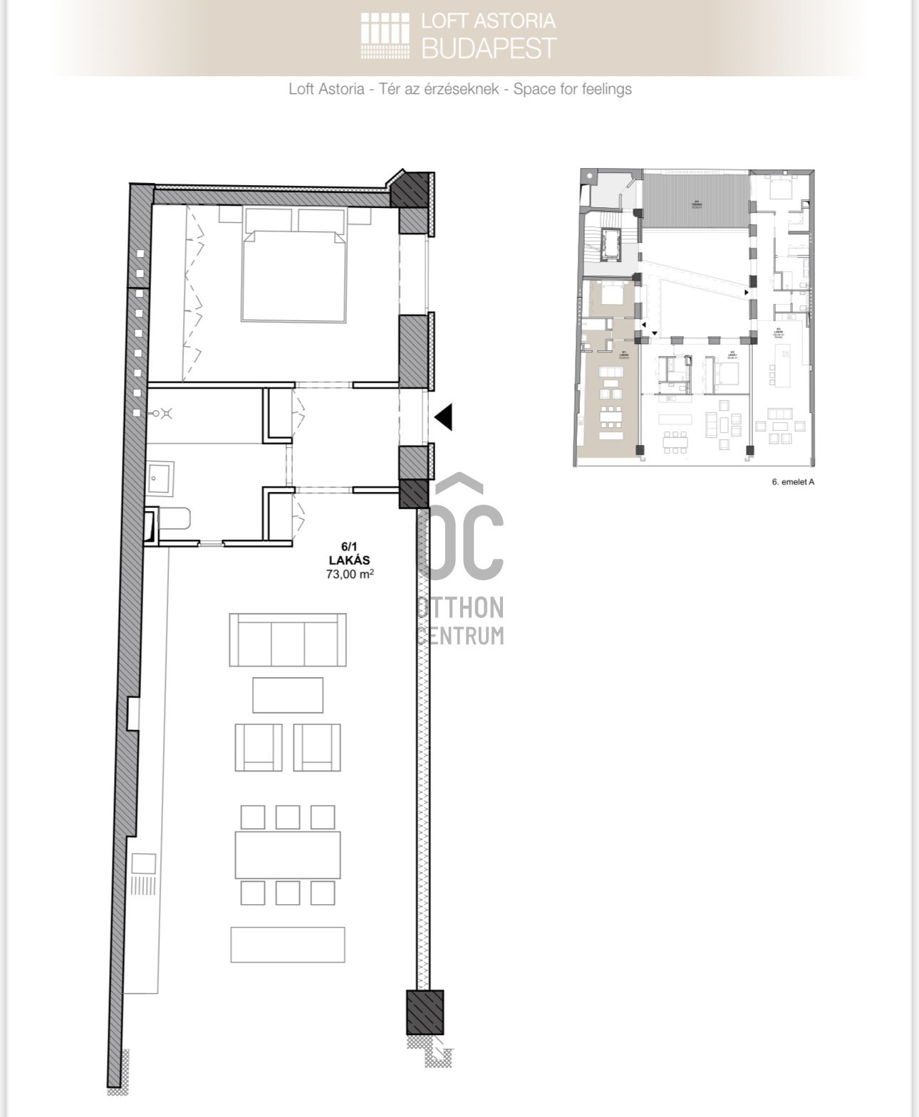
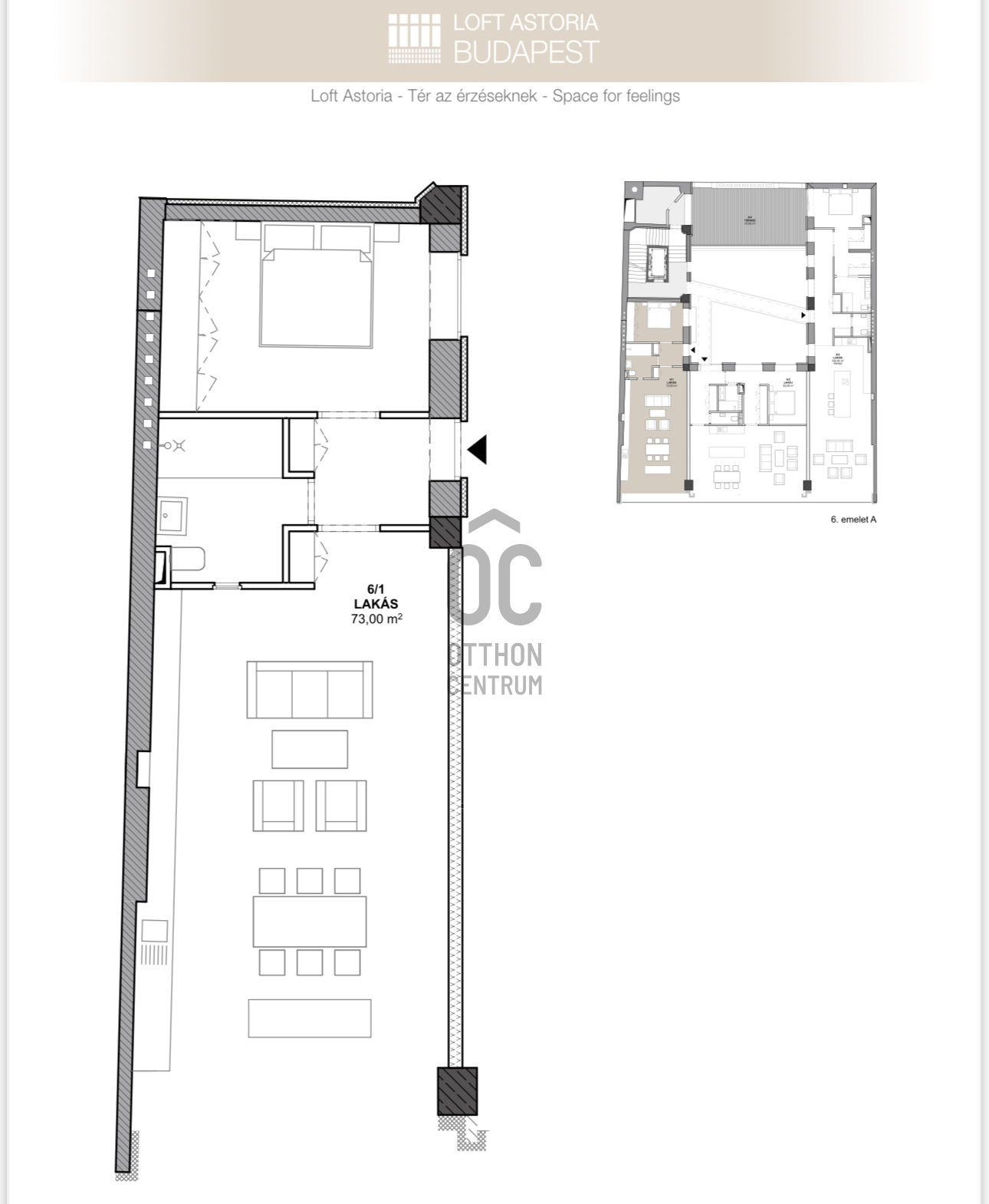
For sale in Budapest city center, in the 5th district, an 83 m², 2-room apartment located on the 6th floor of a historic building, Loft Astoria. The living room faces Museum Boulevard, featuring nearly 9 meters of floor-to-ceiling window space. The building received a completely new interior in 2018, with designers creating 31 uniquely styled loft apartments. Overall, the apartments are characterized by unbeatable location, spacious and bright areas, and high ceilings in an industrial style. FLOOR AREA The apartment has a floor area of 83 m². Its layout includes: entrance hall, kitchen-dining-living area in one space, bedroom, and 2 bathrooms. TECHNICAL SPECIFICATIONS Due to the building's characteristics, the hanging concrete beams, internal steel structures, and ceiling height all support the loft atmosphere, making it perhaps the last such authentic building in the city center. A unique feature of the project is that steel bridges replace the previous walkways in the inner courtyard, and a significant steel frame supports the entire wing of the building at the back. Naturally, there is also an elevator in the building. Each apartment is equipped with a fan-coil system for heating and cooling, complemented by underfloor heating. LOCATION The building is located in the center of Budapest, next to the Astoria metro station on Museum Boulevard, beside the Hotel Astoria. Trams 47 and 49, as well as buses 7, 107, 110, 112, etc., run here, and Deák Ferenc Square, the city's largest public transport hub with three metro lines (M1, M2, M3), is within walking distance. Two universities (ELTE, Corvinus University), Váci Street, and the Great Market Hall at Fővám Square are nearby. PURCHASE PRICE: 218 million HUF (2.6 million HUF/m²) Two additional apartments on the sixth floor are also currently for sale and can be combined with the above apartment (totaling 275 m²). This way, you can enjoy a view of the city through approximately 20 meters of continuous glass surface from a height of six floors. There are no more apartments on this floor. We offer tailored mortgage options to meet your specific needs. Our bank-independent loan center competes all available offers from banks and financial institutions in the country for you free of charge. Our colleagues, with extensive professional experience, are ready to assist you at a pre-arranged time, even after regular working hours. For more information and to arrange a viewing, feel free to call us!

Regisztrációs szám

H499942

Az ingatlan adatai

Értékesités
eladó
Jogi státusz
használt
Jelleg
lakás
Építési mód
tégla
Méret
79 m²
Bruttó méret
83 m²
Fűtés
elektromos fan-coil
Belmagasság
400 cm
Tájolás
Dél-kelet
Panoráma
városi panoráma
Lépcsőház típusa
zárt lépcsőház
Állapot
Kiváló
Homlokzat állapota
Lépcsőház állapota
Kiváló
Környék
csendes, jó közlekedés, központi
Építés éve
2018
Fürdőszobák száma
2
Fekvés
utcai
Közös költség
40000
Víz
Van
Gáz
Van
Villany
Van
Csatorna
Van
Lift
van

Helyiségek

nappali-konyha
40 m²
hálószoba
12 m²
hálószoba
12 m²
előszoba
10 m²

Irodánk kínálatából - VII. kerület - Kertész utca

for sale family house

Index image
23

for sale apartment

Index image
data_sheet.details.realestate.section.main.otthonstart_flag.label
14

for sale apartment

Index image
29

for sale semi-detached house

Index image
12

for sale panel apartment

Index image
data_sheet.details.realestate.section.main.otthonstart_flag.label
14

for rent apartment

Index image
18

for sale apartment

Index image
35

eladó lakás

Index image
Elérhető Otthon Start hitellel
13

for sale apartment

Index image
27

for sale apartment

Index image
12

for sale apartment

Index image
18