Elérhető Otthon Start hitellel
Eladó családi ház, H497070
Kozármisleny

37 900 000 Ft

99 000 €

  • 50m²
  • 3 szoba

Kozármislenyben családiház építési lehetőséggel eladó

Kétszintes kis ház Kozármisleny csendes részén.

Fűtése és hűtése hőszivattyúval és napelem segítségével működik.

Gáz és csatorna a ház előtt.

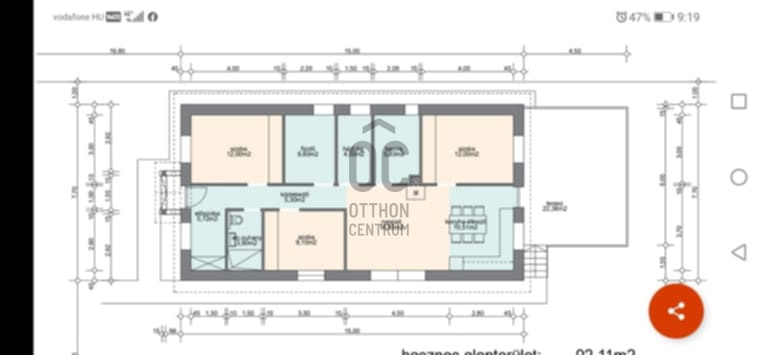
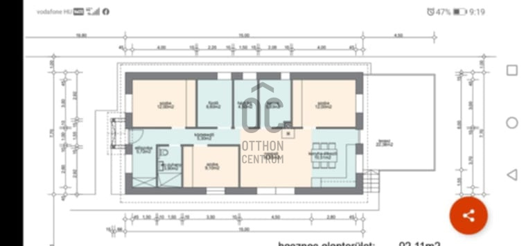
Az alaprajz a tervezett ház alaprajza, amely igény szerint változtatható.

További információért várom a hívását!


Referenciaszám: H497070

Regisztrációs szám

H497070

Az ingatlan adatai

Értékesités
eladó
Jogi státusz
használt
Jelleg
ház
Építési mód
tégla
Méret
50 m²
Bruttó méret
50 m²
Telek méret
1 132 m²
Terasz / erkély mérete
16 m²
Fűtés
megújuló
Belmagasság
250 cm
Lakáson belüli szintszám
2
Tájolás
Dél-nyugat
Panoráma
Zöldre néző panoráma
Állapot
Homlokzat állapota
Környék
csendes, jó közlekedés, zöld
Építés éve
1980
Fürdőszobák száma
1
Víz
Van
Gáz
Utcán
Villany
Van
Csatorna
Utcán
Tároló
Önálló

Helyiségek

szoba
12 m²
szoba
10 m²
szoba
8 m²
fürdőszoba-wc
6 m²
konyha
10 m²
Zaracsi Szilvia
Zaracsi Szilvia

Hitelszakértő

Irodánk kínálatából - Pécs - Klimó György utca

for sale panel apartment

Index image
data_sheet.details.realestate.section.main.otthonstart_flag.label
13

for rent apartment

Index image
10

for rent family house

Index image
25

for sale family house

Index image
data_sheet.details.realestate.section.main.otthonstart_flag.label
26

for sale family house

Index image
25

for sale family house

Index image
data_sheet.details.realestate.section.main.otthonstart_flag.label
20