Elérhető Otthon Start hitellel
Eladó családi ház,
H496893
Pécs, Patacs
59 990 000 Ft
155 000 €
- 206m²
- 5 szoba










































A Pécsi METRÓ áruháznál eladó egy kétszintes családi ház
Köszöntöm a hirdetésemnél!
Regisztrációs szám: H496893
Egy igazán jó vételi lehetőséget kínálunk Önnek, a Pellérdi elágazótól mindössze 150 m-re, amely ideális választás lehet, akár többgenerációs családok számára, akik a nyugalomra és a tágas élettérre vágynak. Baranya vármegyében, Pécs - Patacs városrészében található ez a TELJESEN FELÚJÍTANDÓ családi ház.
- Az ingatlan nettó alapterülete 206 nm, és egy 1136 nm-es telken helyezkedik el, így tágas helyet biztosít a család minden tagja számára.
- A házban öt szoba található, amelyek közül a tágas nappali különösen figyelemre méltó, hiszen itt találkozik a család a közös pillanatokra.
Az ingatlan két fürdőszobával rendelkezik, így a reggeli rohanás során sem kell aggódnia a helyhiány miatt. A 28nm-es terasz és a 7 nm-es erkély lehetőséget ad arra, hogy a szabadban is élvezhesse a napsütést, miközben relaxálhat. A ház felújítandó állapotú, (néhány ablak és két szoba burkolata ki lett cserélve) így saját ízlése szerint alakíthatja ki az otthonát. A környék ellátottsága kiváló, hiszen a közeli boltok, multik, egyetemek, óvodák és iskolák mindössze pár percnyi távolságra találhatóak. A közlekedés is kitűnő, így az ingatlan könnyen megközelíthető autóval és tömegközlekedéssel egyaránt.
Igaz, hogy egy nagy forgalmú Fő út mellett található ez a 2 szintes családi ház, de mivel jóval beljebb van a bejárattól, ezért egyáltalán nem zavaró a beszűrődő zaj.
A környező utcák és a barátságos szomszédság tökéletes hátteret biztosítanak a családi élethez.
A tehermentes ingatlan lehetőséget ad arra, hogy gyorsan és zökkenőmentesen költözhessen új otthonába.
A házhoz tartoznak garázsok, melyek két autó számára biztosítanak helyet, valamint több kerti tároló is a rendelkezésre áll, melyek praktikus megoldást kínálnak a kerti eszközök tárolására. Az ingatlan akár kisállatokkal is költözhető, hiszen a telek körbekerített és többféle állat részére vannak építve ólak, így a házi kedvencek is otthonra lelhetnek ebben a családias környezetben. A tetőtérben elhelyezkedő erkély, lehetőséget ad arra, hogy a nyári estéken a csillagok alatt lazuljanak a családtagok. A földszinti, közel 30 m2-es terasz a nyugalom szigetével egyenértékű!
Az ingatlan vegyes tüzelésű kazánról és elektromos rendszerről is fűthető, az emeleten pedig egy klíma is a rendelkezésére áll a jövőbeni tulajdonosnak.
Ne habozzon, ha kérdései lennének, vagy szeretné megtekinteni ezt a jó elhelyezkedésű ingatlant, további információkért, forduljon hozzám bizalommal.!
Gondolja végig, hogy a frekventált környék és a jó megközelíthetőség miatt, mi mindenre lehetne hasznosítani ezt a nagy épületet?!
Csak induljon meg a fantáziája ...... autókereskedés, autókozmetika, cégközpont, könyvelő iroda, telephely, vagy akár egy egészségügyi létesítmény is kialakítható itt, de a szépségipar különböző területe is helyet kaphatna az épület falai között.
Hívjon, nézzük meg együtt és tegyen egy ajánlatot, sose lehet tudni!
Várom hívását, a hét bármely napján kereshet!
Teljes körű pénzügyi megoldások ügyintézése díjmentesen:
* Bankfüggetlen hitelcenterünk díjmentesen versenyezteti minden bank és hitelintézet ajánlatát.
* Önnek nincs más dolga, mint beszélgetni munkatársunkkal, majd a megversenyeztetett ajánlatokból kiválasztani a hosszútávon is a legmegfelelőbb konstrukciót.
* Szakértőnk több mint 20 éves szakmai tapasztalattal és egyedi igényekre szabott, fogyasztóbarát lakáshitelekkel, babaváró hitellel, teljes körű CSOK ügyintézéssel várja Önt.
* Előre egyeztetett időpontban.
Regisztrációs szám: H496893
Egy igazán jó vételi lehetőséget kínálunk Önnek, a Pellérdi elágazótól mindössze 150 m-re, amely ideális választás lehet, akár többgenerációs családok számára, akik a nyugalomra és a tágas élettérre vágynak. Baranya vármegyében, Pécs - Patacs városrészében található ez a TELJESEN FELÚJÍTANDÓ családi ház.
- Az ingatlan nettó alapterülete 206 nm, és egy 1136 nm-es telken helyezkedik el, így tágas helyet biztosít a család minden tagja számára.
- A házban öt szoba található, amelyek közül a tágas nappali különösen figyelemre méltó, hiszen itt találkozik a család a közös pillanatokra.
Az ingatlan két fürdőszobával rendelkezik, így a reggeli rohanás során sem kell aggódnia a helyhiány miatt. A 28nm-es terasz és a 7 nm-es erkély lehetőséget ad arra, hogy a szabadban is élvezhesse a napsütést, miközben relaxálhat. A ház felújítandó állapotú, (néhány ablak és két szoba burkolata ki lett cserélve) így saját ízlése szerint alakíthatja ki az otthonát. A környék ellátottsága kiváló, hiszen a közeli boltok, multik, egyetemek, óvodák és iskolák mindössze pár percnyi távolságra találhatóak. A közlekedés is kitűnő, így az ingatlan könnyen megközelíthető autóval és tömegközlekedéssel egyaránt.
Igaz, hogy egy nagy forgalmú Fő út mellett található ez a 2 szintes családi ház, de mivel jóval beljebb van a bejárattól, ezért egyáltalán nem zavaró a beszűrődő zaj.
A környező utcák és a barátságos szomszédság tökéletes hátteret biztosítanak a családi élethez.
A tehermentes ingatlan lehetőséget ad arra, hogy gyorsan és zökkenőmentesen költözhessen új otthonába.
A házhoz tartoznak garázsok, melyek két autó számára biztosítanak helyet, valamint több kerti tároló is a rendelkezésre áll, melyek praktikus megoldást kínálnak a kerti eszközök tárolására. Az ingatlan akár kisállatokkal is költözhető, hiszen a telek körbekerített és többféle állat részére vannak építve ólak, így a házi kedvencek is otthonra lelhetnek ebben a családias környezetben. A tetőtérben elhelyezkedő erkély, lehetőséget ad arra, hogy a nyári estéken a csillagok alatt lazuljanak a családtagok. A földszinti, közel 30 m2-es terasz a nyugalom szigetével egyenértékű!
Az ingatlan vegyes tüzelésű kazánról és elektromos rendszerről is fűthető, az emeleten pedig egy klíma is a rendelkezésére áll a jövőbeni tulajdonosnak.
Ne habozzon, ha kérdései lennének, vagy szeretné megtekinteni ezt a jó elhelyezkedésű ingatlant, további információkért, forduljon hozzám bizalommal.!
Gondolja végig, hogy a frekventált környék és a jó megközelíthetőség miatt, mi mindenre lehetne hasznosítani ezt a nagy épületet?!
Csak induljon meg a fantáziája ...... autókereskedés, autókozmetika, cégközpont, könyvelő iroda, telephely, vagy akár egy egészségügyi létesítmény is kialakítható itt, de a szépségipar különböző területe is helyet kaphatna az épület falai között.
Hívjon, nézzük meg együtt és tegyen egy ajánlatot, sose lehet tudni!
Várom hívását, a hét bármely napján kereshet!
Teljes körű pénzügyi megoldások ügyintézése díjmentesen:
* Bankfüggetlen hitelcenterünk díjmentesen versenyezteti minden bank és hitelintézet ajánlatát.
* Önnek nincs más dolga, mint beszélgetni munkatársunkkal, majd a megversenyeztetett ajánlatokból kiválasztani a hosszútávon is a legmegfelelőbb konstrukciót.
* Szakértőnk több mint 20 éves szakmai tapasztalattal és egyedi igényekre szabott, fogyasztóbarát lakáshitelekkel, babaváró hitellel, teljes körű CSOK ügyintézéssel várja Önt.
* Előre egyeztetett időpontban.
Regisztrációs szám
H496893
Az ingatlan adatai
Értékesités
eladó
Jogi státusz
használt
Jelleg
ház
Építési mód
tégla
Méret
206 m²
Bruttó méret
260 m²
Telek méret
1 136 m²
Terasz / erkély mérete
35 m²
Fűtés
vegyestüzelésű kazán
Belmagasság
260 cm
Lakáson belüli szintszám
2
Tájolás
Észak
Állapot
Felújítandó
Homlokzat állapota
Jó
Építés éve
1970
Fürdőszobák száma
2
Garázs
Benne van az árban
Garázs férőhely
2
Víz
Van
Villany
Van
Csatorna
Van
Többgenerációs
igen
Tároló
Önálló
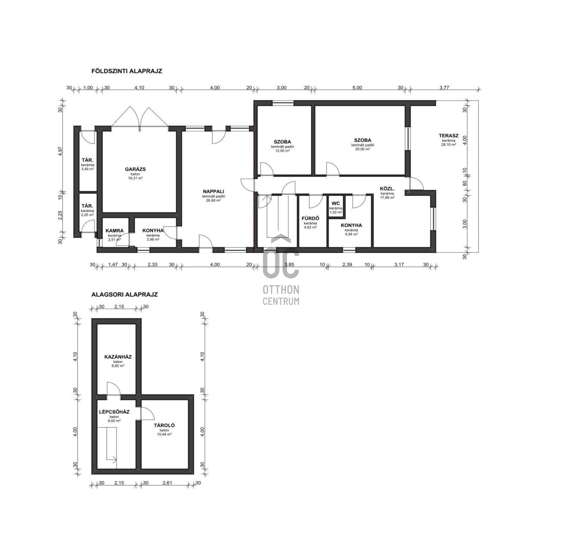
Helyiségek
tároló
3.49 m²
tároló
2.25 m²
kamra
2.51 m²
konyha
3.98 m²
nappali-étkező
26.88 m²
szoba
12 m²
szoba
20 m²
fürdőszoba
4.6 m²
wc
1 m²
konyha
5.94 m²
közlekedő
17.9 m²
terasz
28.1 m²
garázs
19.3 m²
kazánház
8.8 m²
lépcsőház
8.6 m²
tároló
10.44 m²
szoba
14.36 m²
fürdőszoba
2.79 m²
közlekedő
6.17 m²
wc
1.46 m²
szoba
23.85 m²
erkély
6.95 m²

Mecseki Lászlóné - Éva
Hitelszakértő