Elérhető Otthon Start hitellel
Eladó családi ház,
H496457
Szeged, Szőreg
85 000 000 Ft
217 000 €
- 180m²
- 5 szoba












*** Szőregen kétszintes ház nagy telekkel eladó ***
Szeged kedvelt kertvárosi részén, Szőregen eladó egy bruttó 200 nm-es, kétszintes családi ház. A ház szintjei kisebb átalakítást követően akár külön lakrészekként is funkcionálhatnak.
* A környékről:
Szőreg sajátossága a vidéki élettér, falusias környezet, valamint a városi kényelem és infrastruktúra együttese. A közvetlen közelben buszmegálló. Sétatávolságon belül bölcsőde, óvoda, általános iskola, bolt, orvosi rendelő, gyógyszertár.
* A házról:
Az ingatlan egy nagy méretű telken (1656 nm) helyezkedik el. A kert gondosan ápolt, rendszeresen karbantartott, dió és gyümölcsfákkal telepített. A ház a 70-80-as évek építési stílusát tükrözi, jól átgondolt, funkcionális terekkel, amelyek maximálisan kihasználhatóak. A két szint akár külön bejárattal is kialakítható, így a generációk kényelmesen élhetnek egymás mellett, mégis saját térrel rendelkeznek. A tágas szobák, a napfényes nappali és a praktikus elrendezés mind hozzájárulnak a kényelmes otthoni élethez.
2008-ban az elektromoshálózat, valamint a víz és gázvezetékek felújítása megtörtént. Ekkor került beszerelésre a Baxi gázkazán is, mely a fűtésről gondoskodik. Az alsó szinten van lehetőség vegyes tüzelésű kazán elhelyezésére is.
Biztonságról a kiépített riasztórendszer gondoskodik, mely egy szegedi biztonságtechnikai céghez van bekötve.
A csendes, kertvárosi környezet tökéletes választás azoknak, akik nyugodt, családbarát helyen keresnek otthont, mégis közel szeretnének maradni a város nyújtotta lehetőségekhez. Ne hagyja ki ezt a kivételes lehetőséget!
További információért és megtekintésért keressen bizalommal!
Szeged kedvelt kertvárosi részén, Szőregen eladó egy bruttó 200 nm-es, kétszintes családi ház. A ház szintjei kisebb átalakítást követően akár külön lakrészekként is funkcionálhatnak.
* A környékről:
Szőreg sajátossága a vidéki élettér, falusias környezet, valamint a városi kényelem és infrastruktúra együttese. A közvetlen közelben buszmegálló. Sétatávolságon belül bölcsőde, óvoda, általános iskola, bolt, orvosi rendelő, gyógyszertár.
* A házról:
Az ingatlan egy nagy méretű telken (1656 nm) helyezkedik el. A kert gondosan ápolt, rendszeresen karbantartott, dió és gyümölcsfákkal telepített. A ház a 70-80-as évek építési stílusát tükrözi, jól átgondolt, funkcionális terekkel, amelyek maximálisan kihasználhatóak. A két szint akár külön bejárattal is kialakítható, így a generációk kényelmesen élhetnek egymás mellett, mégis saját térrel rendelkeznek. A tágas szobák, a napfényes nappali és a praktikus elrendezés mind hozzájárulnak a kényelmes otthoni élethez.
2008-ban az elektromoshálózat, valamint a víz és gázvezetékek felújítása megtörtént. Ekkor került beszerelésre a Baxi gázkazán is, mely a fűtésről gondoskodik. Az alsó szinten van lehetőség vegyes tüzelésű kazán elhelyezésére is.
Biztonságról a kiépített riasztórendszer gondoskodik, mely egy szegedi biztonságtechnikai céghez van bekötve.
A csendes, kertvárosi környezet tökéletes választás azoknak, akik nyugodt, családbarát helyen keresnek otthont, mégis közel szeretnének maradni a város nyújtotta lehetőségekhez. Ne hagyja ki ezt a kivételes lehetőséget!
További információért és megtekintésért keressen bizalommal!
Regisztrációs szám
H496457
Az ingatlan adatai
Értékesités
eladó
Jogi státusz
használt
Jelleg
ház
Építési mód
tégla
Méret
180 m²
Bruttó méret
200 m²
Telek méret
1 653 m²
Terasz / erkély mérete
5 m²
Fűtés
Gáz cirkó
Belmagasság
300 cm
Lakáson belüli szintszám
2
Tájolás
Nyugat
Állapot
Átlagos
Homlokzat állapota
Átlagos
Környék
jó közlekedés
Építés éve
1974
Fürdőszobák száma
1
Garázs
Benne van az árban
Garázs férőhely
1
Víz
Van
Gáz
Van
Villany
Van
Csatorna
Van
Tároló
Önálló
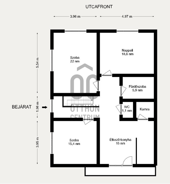
Helyiségek
nappali
18.6 m²
szoba
22 m²
szoba
15.4 m²
konyha-étkező
15 m²
közlekedő
6.8 m²
fürdőszoba
5.9 m²
wc
1.1 m²
szoba
15.2 m²
szoba
18.1 m²
előszoba
9 m²
közlekedő
11.3 m²
konyha
12.8 m²
kamra
11.3 m²
wc-kézmosó
1.5 m²
garázs
22.1 m²