Kiadó lakás, H496275
Miskolc, Belváros

260 000 Ft

670 €

  • 124m²
  • 3 szoba
  • földszint

Ideális választás, ha irodájának, rendelőjének keres helyet a belvárosban vagy nagy lakást bérelne!

Miskolcon, a Városházától 25 méterre kiadó egy polgári jellegű, 124 m2-es alapterületű, utcára néző lakás hosszú távra.
Jellemzői:
- földszinti lakás
- különleges boltíves kialakítású plafon, nagy belmagasság
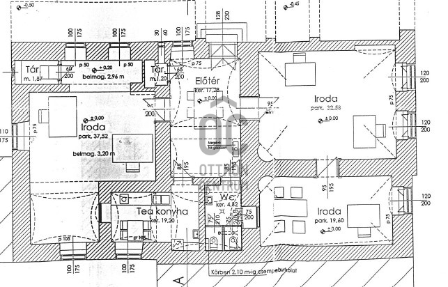
- 3 tágas szoba (37 és 33 m2-esek a legnagyobbak), előszoba, konyha, mosdó és tároló
- irodának, rendelőnek tökéletes választás belső elrendezésének köszönhetően
- lakás céljára is megfelelő
- bútorozatlan
- fa nyílászárók, új beltéri ajtók, festett falak, parketta és hidegburkolatok
- egyedi fűtés gázkazánnal
- vastag falaknak köszönhetően nyáron hűs, télen jól tartja a meleget
- 32 m2-es pince tartozik hozzá, melynek bérlése külön megállapodás tárgya

Két havi kaució szükséges és legalább egy éves bérlés!
Egyedi lehetőség, egyedi ingatlan Miskolc központjában!

Regisztrációs szám

H496275

Az ingatlan adatai

Értékesités
kiadó
Jogi státusz
használt
Jelleg
lakás
Építési mód
tégla
Méret
124 m²
Bruttó méret
124 m²
Fűtés
Gáz cirkó
Belmagasság
350 cm
Tájolás
Dél
Lépcsőház típusa
zárt lépcsőház
Állapot
Homlokzat állapota
Lépcsőház állapota
Pince
Önálló
Környék
jó közlekedés, központi
Építés éve
1950
Fürdőszobák száma
1
Fekvés
utcai
Közös költség
25000
Víz
Van
Gáz
Van
Villany
Van
Csatorna
Van

Helyiségek

előszoba
17.28 m²
szoba
37.52 m²
szoba
32.53 m²
szoba
19.6 m²
wc-kézmosó
4.82 m²
konyha
9.2 m²
Varkolyné Viktória
Varkolyné Viktória

Hitelszakértő

Irodánk kínálatából - Miskolc - Szemere utca

for sale family house

Index image
data_sheet.details.realestate.section.main.otthonstart_flag.label
38

for sale family house

Index image
data_sheet.details.realestate.section.main.otthonstart_flag.label
36

for sale family house

Index image
data_sheet.details.realestate.section.main.otthonstart_flag.label
20

for sale family house

Index image
data_sheet.details.realestate.section.main.otthonstart_flag.label
34

for sale family house

Index image
data_sheet.details.realestate.section.main.otthonstart_flag.label
19

for sale apartment

Index image
data_sheet.details.realestate.section.main.otthonstart_flag.label
16