1 120 000 000 Ft
2 869 000 €
- 874m²
- 13 szoba






























Timeless Elegance, Stunning Panoramas, and Outstanding Investment Potential in Budapest’s Exclusive Csatárka District
Experience the sophistication of this exceptional residence, designed by Ybl Award-winning architect Miklós Hofer. Here, grand representative spaces suited for diplomatic functions, the welcoming warmth of a family home, and the potential for high-profile commercial use seamlessly converge. Enjoy a property that marries enduring value with sweeping views of the Danube and the Parliament, all set within a serene, greenbelt environment.
Key Features:
• Construction & Quality: Built in 1996 with solid brick and top-tier materials
• Living Area: Net 874 m²
• Plot Size: 1,499 m²
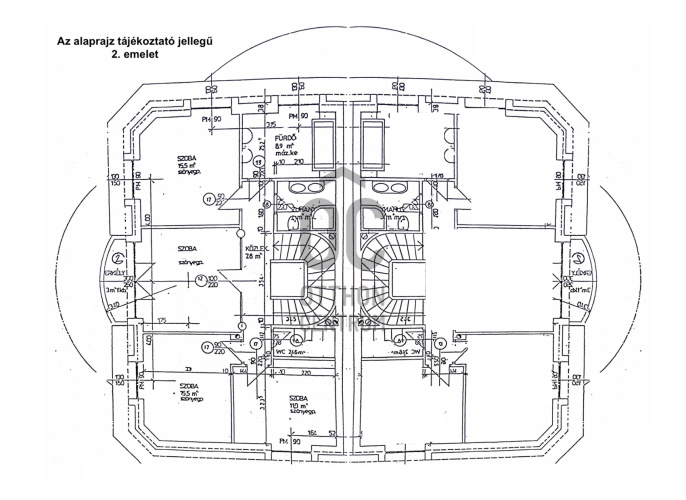
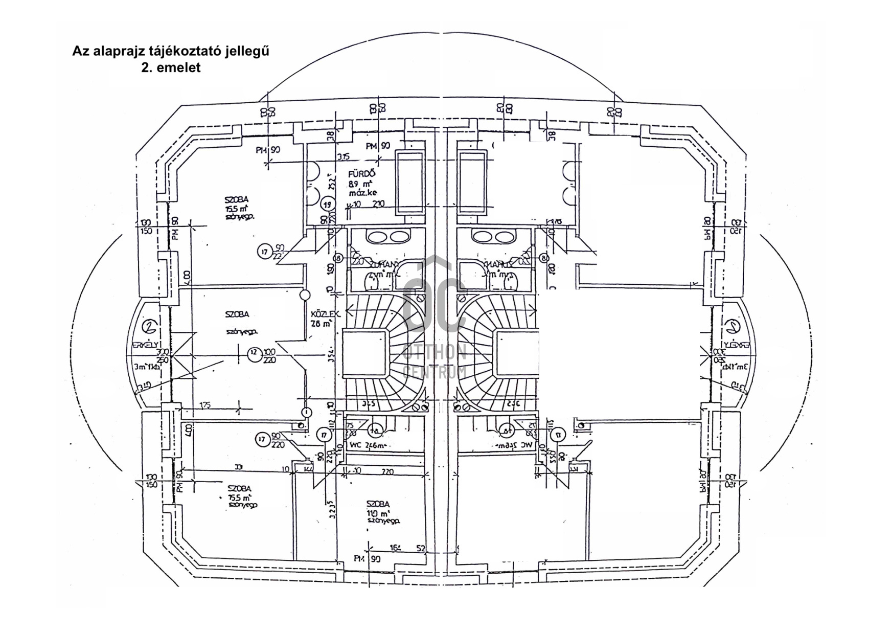
• Layout: Two symmetrical semi-detached units with separate entrances, connectable for flexible floor plans
• Interior Spaces: 13 generously sized rooms, 10 premium bathrooms, 4 separate WCs, ample storage, a dedicated indoor pool area, and an enclosed garage
• Systems & Utilities: Modern gas boiler (upgraded two years ago), heat-pump climate control for efficient cooling
• Wellness & Recreation: Elegant sauna, indoor swimming pool, and a spectacular rooftop terrace with panoramic views
• Parking: Heated driveway to a secure 4-car garage
• Vertical Access: Renovated passenger elevator and enclosed stairwell for effortless movement between floors
• Views: Unrivaled vistas of the Danube, the Parliament, and lush, green landscapes
• Location: Budapest’s District II, Csatárka – an exclusive, tranquil, greenbelt setting ideal as a distinguished family home, diplomatic residence, corporate headquarters, or premium service venue.
As a Family Home:
• Four levels accessed via elevator, thoughtfully curated interiors, and a private wellness area all contribute to a refined and peaceful family lifestyle.
• Whether admiring the Danube and Parliament from the fireplace-appointed living room or the spacious dining area, or housing guests, elderly relatives, or independent-minded young adults in separate quarters, this residence ensures day-to-day comfort and exclusivity.
Business, Investment, and Diplomatic Potential:
• With nearly 900 m² of usable space, a prestigious address, and a refined façade, the property perfectly accommodates high-end corporate headquarters, diplomatic missions, boutique private clinics, or upscale senior residences.
• The rare combination of prestige, greenbelt serenity, and excellent infrastructure makes it an ideal choice for investors and institutions seeking a distinguished, long-term presence.
Recommended for those who value an exclusive location, enduring asset quality, exceptional panoramas, and the highest standards of living or investment.
I look forward to your esteemed inquiry!
Key Features:
• Construction & Quality: Built in 1996 with solid brick and top-tier materials
• Living Area: Net 874 m²
• Plot Size: 1,499 m²
• Layout: Two symmetrical semi-detached units with separate entrances, connectable for flexible floor plans
• Interior Spaces: 13 generously sized rooms, 10 premium bathrooms, 4 separate WCs, ample storage, a dedicated indoor pool area, and an enclosed garage
• Systems & Utilities: Modern gas boiler (upgraded two years ago), heat-pump climate control for efficient cooling
• Wellness & Recreation: Elegant sauna, indoor swimming pool, and a spectacular rooftop terrace with panoramic views
• Parking: Heated driveway to a secure 4-car garage
• Vertical Access: Renovated passenger elevator and enclosed stairwell for effortless movement between floors
• Views: Unrivaled vistas of the Danube, the Parliament, and lush, green landscapes
• Location: Budapest’s District II, Csatárka – an exclusive, tranquil, greenbelt setting ideal as a distinguished family home, diplomatic residence, corporate headquarters, or premium service venue.
As a Family Home:
• Four levels accessed via elevator, thoughtfully curated interiors, and a private wellness area all contribute to a refined and peaceful family lifestyle.
• Whether admiring the Danube and Parliament from the fireplace-appointed living room or the spacious dining area, or housing guests, elderly relatives, or independent-minded young adults in separate quarters, this residence ensures day-to-day comfort and exclusivity.
Business, Investment, and Diplomatic Potential:
• With nearly 900 m² of usable space, a prestigious address, and a refined façade, the property perfectly accommodates high-end corporate headquarters, diplomatic missions, boutique private clinics, or upscale senior residences.
• The rare combination of prestige, greenbelt serenity, and excellent infrastructure makes it an ideal choice for investors and institutions seeking a distinguished, long-term presence.
Recommended for those who value an exclusive location, enduring asset quality, exceptional panoramas, and the highest standards of living or investment.
I look forward to your esteemed inquiry!
Regisztrációs szám
H495170
Az ingatlan adatai
Értékesités
eladó
Jogi státusz
használt
Jelleg
ház
Építési mód
tégla
Méret
874 m²
Bruttó méret
900 m²
Telek méret
1 499 m²
Fűtés
Gáz cirkó
Belmagasság
300 cm
Lakáson belüli szintszám
5
Tájolás
Dél-nyugat
Panoráma
városi panoráma, folyóra tóra néző panoráma, Zöldre néző panoráma
Állapot
Jó
Homlokzat állapota
Jó
Pince
Önálló
Környék
csendes, zöld
Építés éve
1996
Fürdőszobák száma
10
Garázs férőhely
4
Víz
Van
Gáz
Van
Villany
Van
Csatorna
Van
Többgenerációs
igen
Tároló
Önálló
Helyiségek
nappali-étkező
70 m²
nappali-étkező
50 m²
konyha
16 m²
konyha
16 m²
előszoba
14 m²
előszoba
14 m²
szoba
16 m²
szoba
16 m²
szoba
15 m²
szoba
15 m²
szoba
14 m²
szoba
14 m²
szoba
16 m²
szoba
16 m²
szoba
16 m²
szoba
17 m²
fürdőszoba-wc
8 m²
fürdőszoba-wc
8 m²
fürdőszoba-wc
5 m²
fürdőszoba-wc
5 m²
fürdőszoba-wc
4 m²
fürdőszoba-wc
4 m²
fürdőszoba-wc
5 m²
fürdőszoba
5 m²
fürdőszoba
4 m²
wc-kézmosó
2 m²
wc-kézmosó
2 m²
medencetér
160 m²