Kiadó lakás, H488837
Budapest V. kerület, Bank negyed

1 526 031 Ft

3 900 €

  • 227m²
  • 5 szoba
  • 4. emelet

close to the Parliament

In 5th district, close to the Parliament,
in a historical building with elevator,
on the 4th floor,
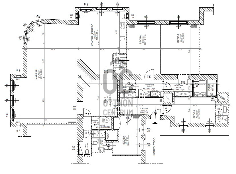
227 sqm apartment for rent.

The apartment is renovated, bright with huge spaces.

living room 64 sqm
dining + kitchen 30 sqm
4 rooms + 4 baths

The apartment for rent without furnitures. ( The furnitures on the photos belongs to an earlier tenant. )

renting fee: 3 900 EUR / month + common cost + utilities
deposit: 2 month renting fee
common cost: 64 810 Ft / month

Regisztrációs szám

H488837

Az ingatlan adatai

Értékesités
kiadó
Jogi státusz
használt
Jelleg
lakás
Építési mód
tégla
Méret
227 m²
Bruttó méret
227 m²
Fűtés
Gáz cirkó
Belmagasság
335 cm
Tájolás
Dél
Lépcsőház típusa
körfolyosó
Állapot
Kiváló
Homlokzat állapota
Lépcsőház állapota
Építés éve
1910
Fürdőszobák száma
4
Fekvés
utcai
Víz
Van
Gáz
Van
Villany
Van
Csatorna
Van
Lift
van

Helyiségek

nappali
65 m²
konyha-étkező
30 m²
szoba
19 m²
szoba
23 m²
szoba
14 m²
szoba
12 m²
hall
14 m²
fürdőszoba-wc
4 m²
fürdőszoba-wc
4 m²
Ruczek Krisztina
Ruczek Krisztina

Hitelszakértő

Irodánk kínálatából - V. kerület - Hild tér

kiadó üzleti célú ingatlan

Index image
10

for sale apartment

Index image
12

for rent apartment

Index image
12

for sale commercial property

Index image
10

for sale apartment

Index image
20

for sale commercial property

Index image
3

for sale apartment

Index image
19

for sale apartment

Index image
15

for sale apartment

Index image
18

for sale apartment

Index image
19

for rent apartment

Index image
11