499 000 000 Ft
1 273 000 €
- 650m²
- 20 szoba



























An independent building operating as a private medical practice is for sale
A property for sale in a frequented location in the 11th district, with excellent accessibility, free parking, direct street entrance, and barrier-free access.
The house, which has been used as a popular private practice since 2001, is also excellently suitable for a private clinic, dental center, office building, or company representative function.
It has all the official licenses required for official operation.
The property was modernized in 2000 and is currently in good technical and aesthetic condition.
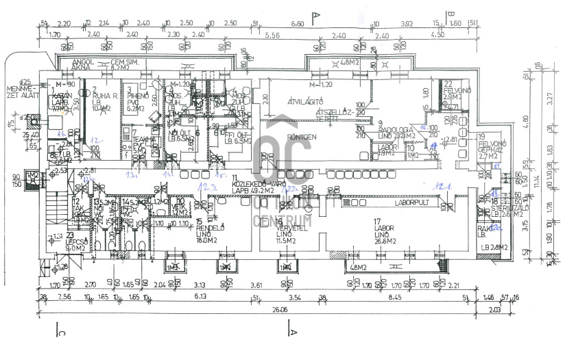
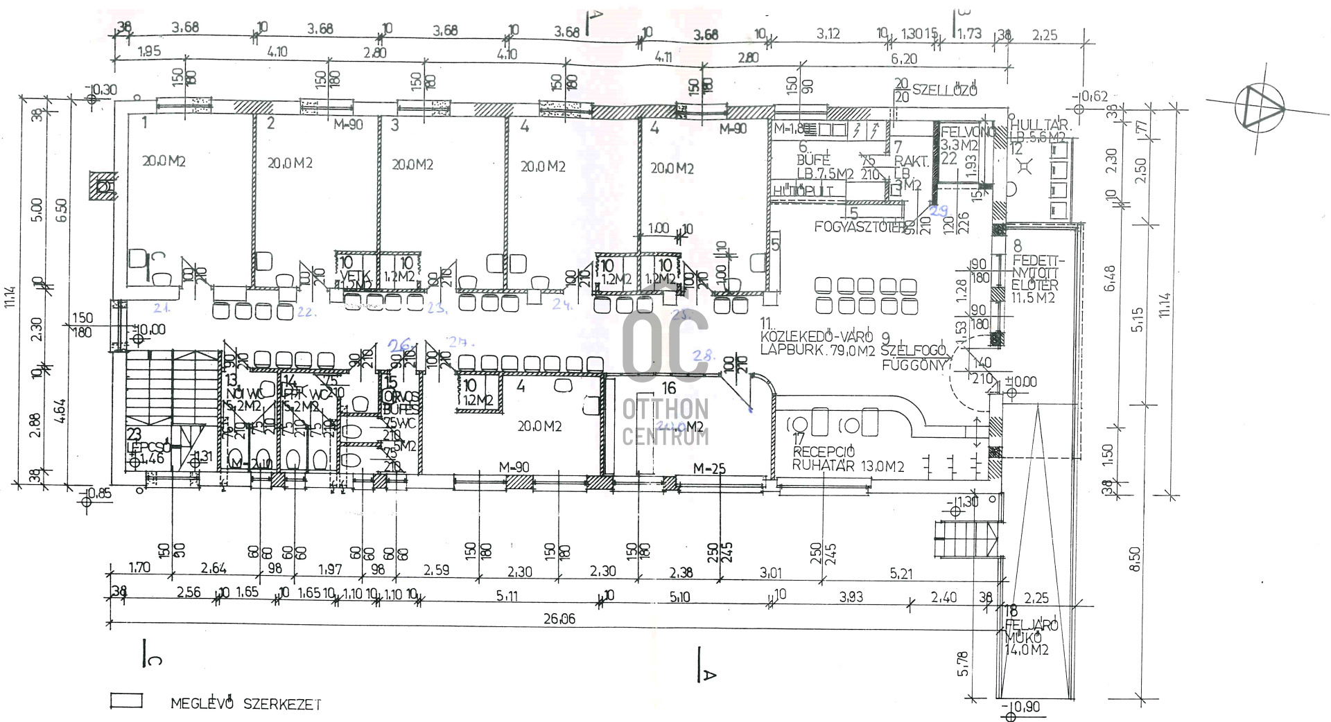
3 levels (basement, ground floor, attic), all levels are built-in, fully usable.
Its layout is practical, the examination rooms have a separate water block.
Public transport:
It can be reached with buses 114, 213, 214 and trams 17, 41, 47, 48, 56.
The house, which has been used as a popular private practice since 2001, is also excellently suitable for a private clinic, dental center, office building, or company representative function.
It has all the official licenses required for official operation.
The property was modernized in 2000 and is currently in good technical and aesthetic condition.
3 levels (basement, ground floor, attic), all levels are built-in, fully usable.
Its layout is practical, the examination rooms have a separate water block.
Public transport:
It can be reached with buses 114, 213, 214 and trams 17, 41, 47, 48, 56.
Regisztrációs szám
H484502
Az ingatlan adatai
Értékesités
eladó
Jogi státusz
használt
Jelleg
ház
Építési mód
tégla
Méret
650 m²
Bruttó méret
780 m²
Telek méret
568 m²
Fűtés
gáz kazán
Belmagasság
300 cm
Lakáson belüli szintszám
3
Tájolás
Kelet
Állapot
Átlagos
Homlokzat állapota
Jó
Környék
jó közlekedés, zöld
Építés éve
1954
Fürdőszobák száma
3
Víz
Van
Gáz
Van
Villany
Van
Csatorna
Van
Többgenerációs
igen
Helyiségek
iroda
0 m²
iroda
0 m²
iroda
0 m²
iroda
0 m²
iroda
0 m²
iroda
0 m²
iroda
0 m²
iroda
0 m²
iroda
0 m²
iroda
0 m²
iroda
0 m²
iroda
0 m²
iroda
0 m²
iroda
0 m²
iroda
0 m²
iroda
0 m²
iroda
0 m²
iroda
0 m²
iroda
0 m²
iroda
0 m²
iroda
0 m²
iroda
0 m²
iroda
0 m²

Horváth Szabina
Hitelszakértő