1 750 000 Ft
4 500 €
- 540m²
- 8 szoba


































luxus a város felett, csodás panoráma, nagy terek
luxus a város felett
Kiadásra kínálunk a Szeréna úton egy gyönyörű panorámás 3 szintes luxus igényeket kielégítő családi házat.
Alkalmas egy nagyobb családnak lakhatásra, de akár irodának, vagy cégközpontnak, oktatási célokra, vagy rendelőknek is.
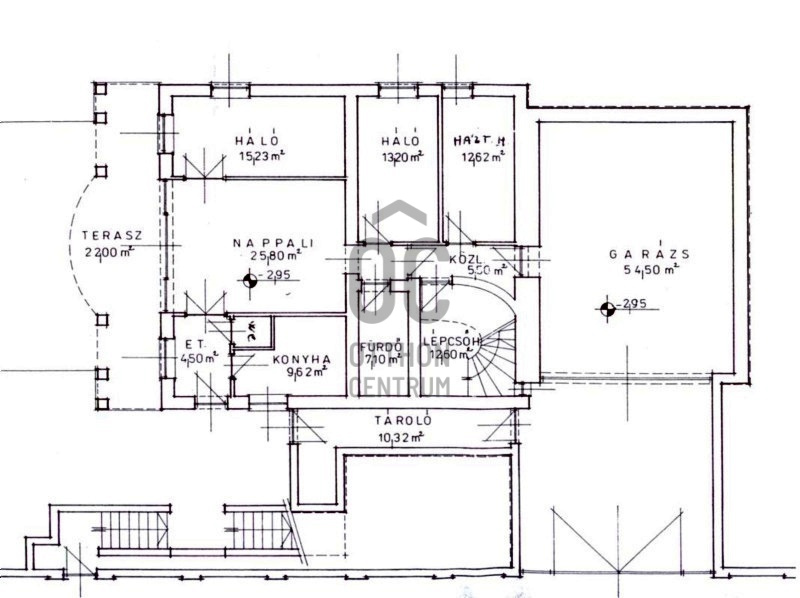
A földszinten 3 állásos garázs, szauna, kiszolgáló helyiségek és egy világos tágas nappali, 3 háló szoba, fürdő és konyha található. Ez a szint is nagyon világos, panorámás és közvetlen kijárata van az alsó teraszra. és a kertbe.
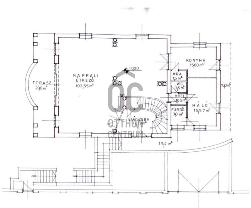
A középső szinten egy óriási étkezőt és nappalit valamint 1 háló szobát és fürdőt alakítottak ki. A napfényes nappaliból jutunk ki az óriási teraszra, ahonnan a lábunk előtt érezhetjük az egész várost.
A felső szinten a halból nyílik 2 hálószoba és 2 fürdő. A teraszról itt is élvezhetjük a csodás panorámát. A halból egy lépcsőn juthatunk fel a tetőteraszra. A ház körüli kert szépen gondozott, elektromos kapun át juthatunk az udvarba. A kertből a ház körüljárható, a középső terasz szintjén is.
A kertben további 4 gépkocsi számára biztosított a beállás.
Érdemes megtekinteni! Várom jelentkezését.
Díjmentes, bankfüggetlen hiteltanácsadással támogatjuk vevő ügyfeleinket a számukra legelőnyösebb finanszírozási döntések meghozatalában. Opcionálisan igénybe vehető kiegészítő szolgáltatásainkkal – mint ügyvédi közreműködés, energetikai tanúsítvány vagy villamos biztonsági felülvizsgálat – teljes körű szakmai támogatást nyújtunk az adásvétel folyamatának minden egyes lépésénél.
Kiadásra kínálunk a Szeréna úton egy gyönyörű panorámás 3 szintes luxus igényeket kielégítő családi házat.
Alkalmas egy nagyobb családnak lakhatásra, de akár irodának, vagy cégközpontnak, oktatási célokra, vagy rendelőknek is.
A földszinten 3 állásos garázs, szauna, kiszolgáló helyiségek és egy világos tágas nappali, 3 háló szoba, fürdő és konyha található. Ez a szint is nagyon világos, panorámás és közvetlen kijárata van az alsó teraszra. és a kertbe.
A középső szinten egy óriási étkezőt és nappalit valamint 1 háló szobát és fürdőt alakítottak ki. A napfényes nappaliból jutunk ki az óriási teraszra, ahonnan a lábunk előtt érezhetjük az egész várost.
A felső szinten a halból nyílik 2 hálószoba és 2 fürdő. A teraszról itt is élvezhetjük a csodás panorámát. A halból egy lépcsőn juthatunk fel a tetőteraszra. A ház körüli kert szépen gondozott, elektromos kapun át juthatunk az udvarba. A kertből a ház körüljárható, a középső terasz szintjén is.
A kertben további 4 gépkocsi számára biztosított a beállás.
Érdemes megtekinteni! Várom jelentkezését.
Díjmentes, bankfüggetlen hiteltanácsadással támogatjuk vevő ügyfeleinket a számukra legelőnyösebb finanszírozási döntések meghozatalában. Opcionálisan igénybe vehető kiegészítő szolgáltatásainkkal – mint ügyvédi közreműködés, energetikai tanúsítvány vagy villamos biztonsági felülvizsgálat – teljes körű szakmai támogatást nyújtunk az adásvétel folyamatának minden egyes lépésénél.
Regisztrációs szám
H475050
Az ingatlan adatai
Értékesités
kiadó
Jogi státusz
használt
Jelleg
ház
Építési mód
tégla
Méret
540 m²
Bruttó méret
540 m²
Telek méret
1 000 m²
Terasz / erkély mérete
102 m²
Fűtés
Gáz cirkó
Belmagasság
270 cm
Lakáson belüli szintszám
3
Tájolás
Dél-kelet
Panoráma
városi panoráma, folyóra tóra néző panoráma, Zöldre néző panoráma
Állapot
Jó
Homlokzat állapota
Jó
Környék
csendes, jó közlekedés, zöld
Építés éve
2000
Fürdőszobák száma
3
Víz
Van
Gáz
Van
Villany
Van
Csatorna
Van
Többgenerációs
igen
Helyiségek
nappali
25.8 m²
hálószoba
15.23 m²
hálószoba
13.2 m²
terasz
22 m²
nappali-étkező
12.3 m²
konyha
15.6 m²
hálószoba
15.5 m²
fürdőszoba
3 m²
terasz
20 m²
hálószoba
22.2 m²
közlekedő
17.4 m²
fürdőszoba
11.2 m²
gardrób
15.35 m²
terasz
60 m²

Ruczek Krisztina
Hitelszakértő