980 000 000 Ft
2 521 000 €
- 540m²
- 9 szoba


































„BUDÁN LAKNI VILÁGNÉZET”
A budai II. kerületi Rózsadomb a főváros és az ország egyik legnagyobb presztízzsel bíró területe.
Ha szigorúan vesszük földrajzilag, a szecesszió idején épült nyaraló villa Rézmál városrészhez (melynek jelentése ugyancsak Rózsadomb) tartozik, hiszen a Bimbó út páros oldalán helyezkedik el.
Anno az 1890-es évek végén, mikor épült teljesen más volt a környezte. Ma már a kerület egyik frekventált részén helyezkedik el 1319 m2-es telken.
A ház múltja és az egykori nagypolgári hangulat megőrzése fontos volt a jelenlegi tulajdonosoknak, így az épület korszerű, ezáltal kényelmes, ugyanakkor hagyománytisztelet és egyfajta időtlen báj árad belőle.
Jelenleg 3 emelet biztosítja az életteret 2 generáció számára.
A 90-es évek végén, valamint a 2000-es évek elején történt nagyobb felújítás, átépítés az ingatlanon.
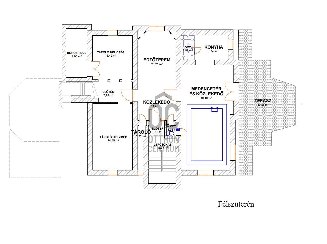
A háború nyomait eltüntetve, visszakapta színét a homlokzat és a kék ablakok fehér kerettel együttesen pedig visszaidézik a ház eredeti megjelenését. Kulcsfontosságú a szoros kapcsolat a kerttel, így megépítésre került a kíváncsi szempároktól (a ház hátsó részén) elrejtett téli kert, ahonnan egy lépcső vezet le a félszuterén szintre. Itt kialakításra került a rekreációs részleg, mely magába foglalja az épített medencét, gőzterápiás helyiséget, edzőtermet. Mindez tovább bővíthető (szauna, sókamra, moziszoba stb.), hisz a szinten nagyobb helyiségek tárolóként funkcionálnak jelenleg. A medencetérből elérhető teakonyha és a hívogató külső terasz, amik még kellemesebbé és komfortosabbá teszik a kikapcsolódást. Szintén ezen az emeleten „épített” borospince méltó helye nemes gyűjteményeknek és a mellette lévő helyiség akár autentikus helyszíne lehet borvacsoráknak.
A szintek közötti mozgást a korabeli lépcsőházon keresztül tehetjük meg.
A magasföldszinten, valamint az emeleten is hatalmas, szellős terek uralkodnak. Mindkét emeleten a korábban kisebb felújításokon átesett faablakok, spaletták, magas kazettás beltéri ajtók visszaadják a századforduló hangulatát, akárcsak a szobák klasszikus elrendezései. Sehol nem lett beépítve a közel 4 méteres belmagasság, így adott a nagypolgári miliő.
Az ingatlan hasznos alapterülete a tetőtér beépítésével növelhető, mely további ~90 m2 pluszt jelent.
A ház fölé magasodó toronyszoba az ingatlan ékköve, mely lépcsőház legfelső részéről közelíthető meg. Az elénk tárúló panoráma elragadó (Parlament, Citadella, Budai Várnegyed, Duna és az őt átszelő hidak). Innen a fővárosunk évszakonként változó arcát kémlelhetjük. Ez a szoba lehet helyszíne mélyenszántó gondolatoknak, vagy a világ elől meghúzódva egy jó könyv olvasásának akár.
Ahogy Endrődi Sándor is írta versében:
„Itt fenn Budán, a Rózsadombon /Igazán rózsás a világ!...
… Itt a dombon, hála Isten, /Jó világ van, /Kis királyként éldegélek/Ebben a kis szürke házban.
Minden vágyam teljesül, bár/ Ki se mondom, /S ha elfogy a garasom, hopp! /Arra sincsen semmi
gondom.
Lenézek a dulakodó / Nagy városra, / Hol az ember embertársát / Sárba löki, megtapossa. –
S egyszeriben oly kicsiny lesz/ Minden ottan, / S oly nagy itt fenn, a dombon, hol/ Szeretet és
nyugalom van.”
Jöjjön el és tekintse meg!
Csatlakozzon a villa történetéhez, folytassa azt vagy írja újra teljesen!
Ha szigorúan vesszük földrajzilag, a szecesszió idején épült nyaraló villa Rézmál városrészhez (melynek jelentése ugyancsak Rózsadomb) tartozik, hiszen a Bimbó út páros oldalán helyezkedik el.
Anno az 1890-es évek végén, mikor épült teljesen más volt a környezte. Ma már a kerület egyik frekventált részén helyezkedik el 1319 m2-es telken.
A ház múltja és az egykori nagypolgári hangulat megőrzése fontos volt a jelenlegi tulajdonosoknak, így az épület korszerű, ezáltal kényelmes, ugyanakkor hagyománytisztelet és egyfajta időtlen báj árad belőle.
Jelenleg 3 emelet biztosítja az életteret 2 generáció számára.
A 90-es évek végén, valamint a 2000-es évek elején történt nagyobb felújítás, átépítés az ingatlanon.
A háború nyomait eltüntetve, visszakapta színét a homlokzat és a kék ablakok fehér kerettel együttesen pedig visszaidézik a ház eredeti megjelenését. Kulcsfontosságú a szoros kapcsolat a kerttel, így megépítésre került a kíváncsi szempároktól (a ház hátsó részén) elrejtett téli kert, ahonnan egy lépcső vezet le a félszuterén szintre. Itt kialakításra került a rekreációs részleg, mely magába foglalja az épített medencét, gőzterápiás helyiséget, edzőtermet. Mindez tovább bővíthető (szauna, sókamra, moziszoba stb.), hisz a szinten nagyobb helyiségek tárolóként funkcionálnak jelenleg. A medencetérből elérhető teakonyha és a hívogató külső terasz, amik még kellemesebbé és komfortosabbá teszik a kikapcsolódást. Szintén ezen az emeleten „épített” borospince méltó helye nemes gyűjteményeknek és a mellette lévő helyiség akár autentikus helyszíne lehet borvacsoráknak.
A szintek közötti mozgást a korabeli lépcsőházon keresztül tehetjük meg.
A magasföldszinten, valamint az emeleten is hatalmas, szellős terek uralkodnak. Mindkét emeleten a korábban kisebb felújításokon átesett faablakok, spaletták, magas kazettás beltéri ajtók visszaadják a századforduló hangulatát, akárcsak a szobák klasszikus elrendezései. Sehol nem lett beépítve a közel 4 méteres belmagasság, így adott a nagypolgári miliő.
Az ingatlan hasznos alapterülete a tetőtér beépítésével növelhető, mely további ~90 m2 pluszt jelent.
A ház fölé magasodó toronyszoba az ingatlan ékköve, mely lépcsőház legfelső részéről közelíthető meg. Az elénk tárúló panoráma elragadó (Parlament, Citadella, Budai Várnegyed, Duna és az őt átszelő hidak). Innen a fővárosunk évszakonként változó arcát kémlelhetjük. Ez a szoba lehet helyszíne mélyenszántó gondolatoknak, vagy a világ elől meghúzódva egy jó könyv olvasásának akár.
Ahogy Endrődi Sándor is írta versében:
„Itt fenn Budán, a Rózsadombon /Igazán rózsás a világ!...
… Itt a dombon, hála Isten, /Jó világ van, /Kis királyként éldegélek/Ebben a kis szürke házban.
Minden vágyam teljesül, bár/ Ki se mondom, /S ha elfogy a garasom, hopp! /Arra sincsen semmi
gondom.
Lenézek a dulakodó / Nagy városra, / Hol az ember embertársát / Sárba löki, megtapossa. –
S egyszeriben oly kicsiny lesz/ Minden ottan, / S oly nagy itt fenn, a dombon, hol/ Szeretet és
nyugalom van.”
Jöjjön el és tekintse meg!
Csatlakozzon a villa történetéhez, folytassa azt vagy írja újra teljesen!
Regisztrációs szám
H451852
Az ingatlan adatai
Értékesités
eladó
Jogi státusz
használt
Jelleg
ház
Építési mód
tégla
Méret
540 m²
Bruttó méret
600 m²
Telek méret
1 319 m²
Fűtés
Gáz cirkó
Belmagasság
380 cm
Lakáson belüli szintszám
3
Tájolás
Dél-nyugat
Állapot
Jó
Homlokzat állapota
Jó
Pince
Önálló
Környék
jó közlekedés, zöld
Építés éve
1897
Fürdőszobák száma
4
Garázs
Benne van az árban
Garázs férőhely
4
Víz
Van
Gáz
Van
Villany
Van
Csatorna
Van
Többgenerációs
igen
Tároló
Önálló
Helyiségek
terasz
43.25 m²
konyha
8.59 m²
egyéb helyiség
2.99 m²
egyéb helyiség
20.21 m²
közlekedő
11.46 m²
egyéb helyiség
49.1 m²
lépcsőház
12.35 m²
wc-kézmosó
1.31 m²
egyéb helyiség
2.43 m²
tároló
2.82 m²
tároló
24.49 m²
tároló
16.42 m²
egyéb helyiség
7.78 m²
borospince
9.96 m²
télikert
21.71 m²
gardrób
11.45 m²
fürdőszoba-wc
4.43 m²
fürdőszoba-wc
7.86 m²
közlekedő
10.21 m²
konyha
10.61 m²
mosókonyha
1.54 m²
wc-kézmosó
1.51 m²
hall
16.3 m²
ebédlő
23.46 m²
előszoba
13.36 m²
nappali
29.64 m²
hálószoba
23.58 m²
szoba
17.45 m²
szoba
23.26 m²
fürdőszoba-wc
7.86 m²
konyha-étkező
19.58 m²
kamra
3.06 m²
mosókonyha
1.49 m²
wc-kézmosó
1.44 m²
hall
16.61 m²
nappali
29.64 m²
hálószoba
23.58 m²
erkély
14.97 m²

Ruczek János
Hitelszakértő