Elérhető Otthon Start hitellel
Eladó ikerház,
GDH377810
Szeged, Új Petőfitelep
89 000 000 Ft
229 000 €
- 122m²
- 3 szoba
















ELADÓ IKERHÁZ ÚJPETŐFITELEPEN
Szeged dinamikusan fejlődő és kiváló közlekedési adottságokkal rendelkező, de mégis csendes, békés, kertvárosias hangulatot árasztó városrészében eladó ez az 1981-ben épült ikerház egyik fele.
Az ingatlan 511 m2-es telken található, a 2 épületrész teljesen tükörképe egymásnak, használati megosztással rendelkezik így hitelezhető is.
A jobb oldali rész, ami eladóvá vált 2009-ben teljes körű felújításon esett át, a nyílászárók korszerű hőszigeteltre lettek cserélve, a külső homlokzat 5 cm-es szigetelést kapott, a villamos hálózat is fel lett újítva, 3 fázis is van. A padlástérben elkezdődött még egy szobának a kialakítása, de ezt majd az új tulajdonos igény szerint fejezheti be.
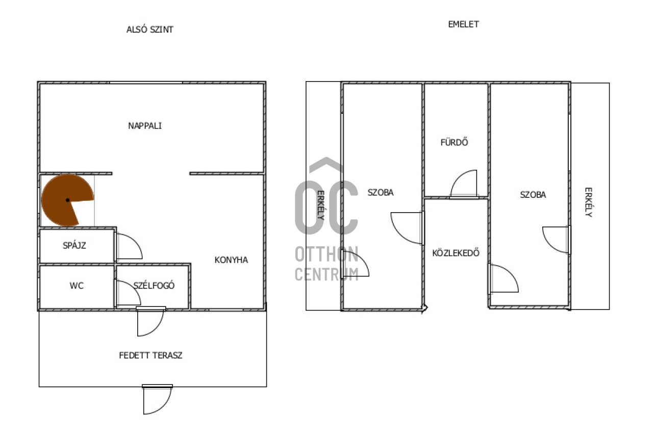
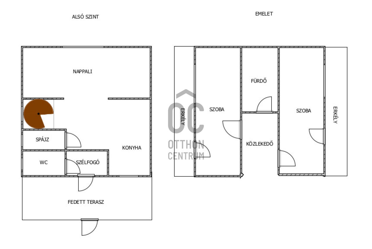
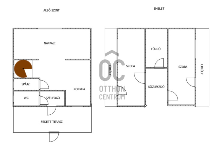
A fő épület 122 m2, belső 2 szintes, az alsó részen egy 20 m2-es fedett teraszról jutunk a házba, ahol wc, és spájz található a bejáratnál. az alsó szinten egy nagy közösségi tér lett kialakítva, itt kaphat helyet a konyha ( kialakítása az új tulajdonosra vár) és az étkező illetve a nappali.
Az emeleti részen 2 hálószoba, mindkettő erkély kapcsolattal és egy fördőszoba kapott helyet.
Az udvar hátsó részében található egy melléképület, szintén magosztva ahogy az ikerház is, itt egy beépített teraszról egy konyhába, abból pedig egy szobába juthatunk, ami akár egy külön lakrésze is lehet idősebb szülőnek, vagy önállósódni vágyó gyermeknek.
Minkét lakrész fűtéséről Ariston típusú vadonatúj kazán gondoskodik, radiátoros hőleadókkal.
Kiváló választás lehet gyermekes családnak, vagy több generáció összeköltözésére.
Az ingatlan tehermentes, rövid határidővel költözhető!
NÉZZE MEG AJÁNLATUNKAT SZEMÉLYESEN IS!
Szeged dinamikusan fejlődő és kiváló közlekedési adottságokkal rendelkező, de mégis csendes, békés, kertvárosias hangulatot árasztó városrészében eladó ez az 1981-ben épült ikerház egyik fele.
Az ingatlan 511 m2-es telken található, a 2 épületrész teljesen tükörképe egymásnak, használati megosztással rendelkezik így hitelezhető is.
A jobb oldali rész, ami eladóvá vált 2009-ben teljes körű felújításon esett át, a nyílászárók korszerű hőszigeteltre lettek cserélve, a külső homlokzat 5 cm-es szigetelést kapott, a villamos hálózat is fel lett újítva, 3 fázis is van. A padlástérben elkezdődött még egy szobának a kialakítása, de ezt majd az új tulajdonos igény szerint fejezheti be.
A fő épület 122 m2, belső 2 szintes, az alsó részen egy 20 m2-es fedett teraszról jutunk a házba, ahol wc, és spájz található a bejáratnál. az alsó szinten egy nagy közösségi tér lett kialakítva, itt kaphat helyet a konyha ( kialakítása az új tulajdonosra vár) és az étkező illetve a nappali.
Az emeleti részen 2 hálószoba, mindkettő erkély kapcsolattal és egy fördőszoba kapott helyet.
Az udvar hátsó részében található egy melléképület, szintén magosztva ahogy az ikerház is, itt egy beépített teraszról egy konyhába, abból pedig egy szobába juthatunk, ami akár egy külön lakrésze is lehet idősebb szülőnek, vagy önállósódni vágyó gyermeknek.
Minkét lakrész fűtéséről Ariston típusú vadonatúj kazán gondoskodik, radiátoros hőleadókkal.
Kiváló választás lehet gyermekes családnak, vagy több generáció összeköltözésére.
Az ingatlan tehermentes, rövid határidővel költözhető!
NÉZZE MEG AJÁNLATUNKAT SZEMÉLYESEN IS!
Regisztrációs szám
GDH377810
Az ingatlan adatai
Értékesités
eladó
Jogi státusz
használt
Jelleg
ház
Építési mód
tégla
Méret
122 m²
Bruttó méret
150 m²
Telek méret
256 m²
Terasz / erkély mérete
25 m²
Fűtés
Gáz cirkó
Belmagasság
2 700 cm
Állapot
Kiváló
Homlokzat állapota
Jó
Építés éve
1981
Fekvés
utcai
Fedett beállók száma
1
Víz
Van
Gáz
Van
Villany
Van
Csatorna
Van
Kertkapcsolatos
igen
Tároló
Önálló