Elérhető Otthon Start hitellel
Eladó újépítésű lakás,
DLK095469
Újlengyel
78 909 296 Ft
208 000 €
- 91,9m²
- 3 szoba
Új építésű lakás Újlengyel csendes utcájában!
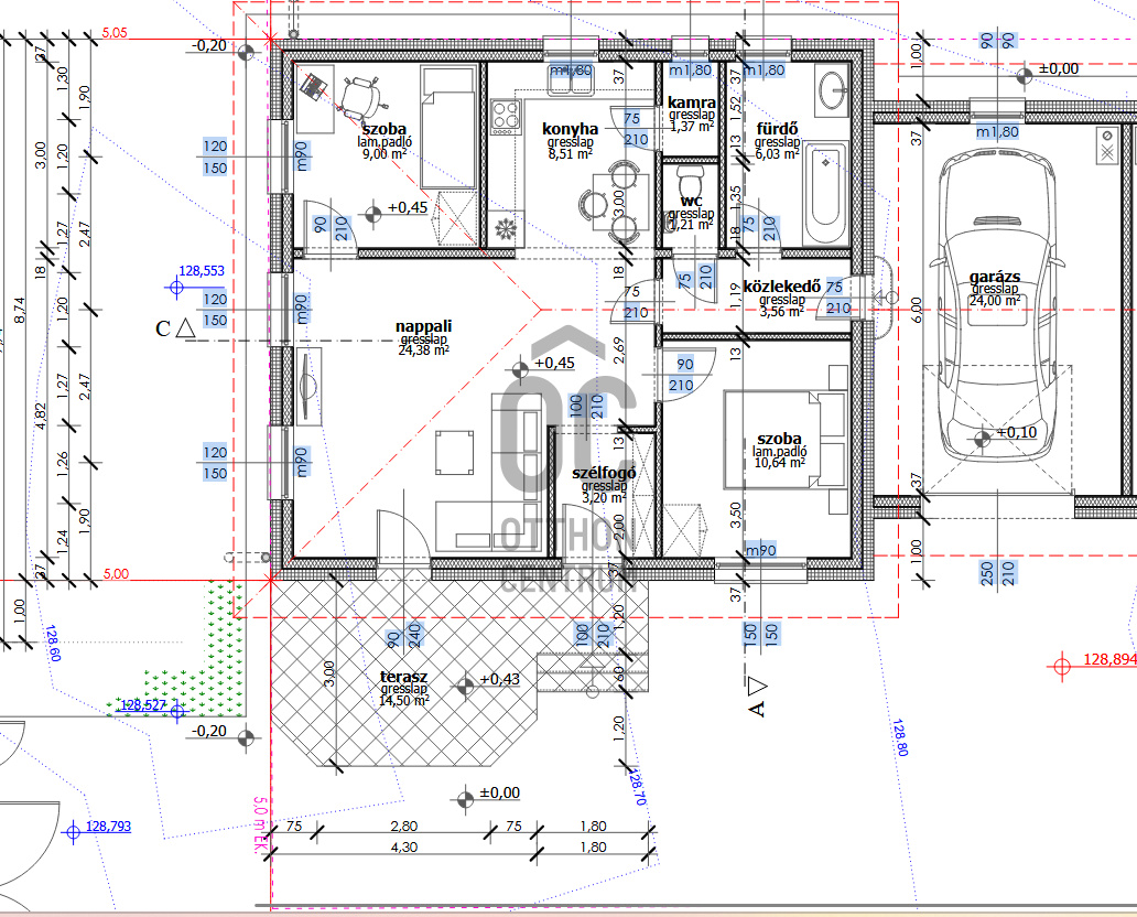
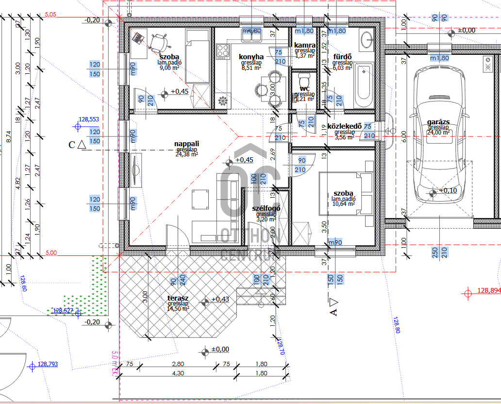
Megvételre kínálok egy könnyűszerkezetes 91,9 hasznos alapterületű családi házat, amely 2025-ben került befejezésre. Külső szigetelése 15cm, födém szigetelése 30cm.
Az ingatlan lakásnak minősül, amelyben 2 szoba, nappali- étkező, konyha, kamra, közlekedő, előszoba, fürdőszoba és külön álló illemhelyiség került kialakításra. A közlekedőből elektromos kapuval ellátott garázsba jutunk. Az élettér 67,9 nm, a garázs 24nm, nyitott terasz 14,5nm.
Nyílászárói korszerű 3 rétegű műanyagból készültek, fűtése gázkazánnal megoldott padlófűtésen keresztül, és a nappaliban lévő hűtőfűtő klíma biztosítja nyáron a kellemes hőmérsékletet.
A lakás teljesen elkerített, külön elektromos kapuval ellátott bejárattal rendelkezik. A hozzá tartozó telek területe 329nm.
A második számú lakással garázskapcsolatos, így egyetlen egy közös fal sincs a hátsó lakással.
Áram ellátása 1x32A.
Méreteinek és adottságainak köszönhetően az ingatlan leendő tulajdonosai akár a 3 gyermek után járó CSOK Plusz kamattámogatott hitelt is igénybe tudják venni, melynek mértéke elérheti az 50.000.000 Ft-ot.
A hirdetésben szereplő FIX 3%-os lakáshitel részét képező támogatásokat Magyarország Kormánya nyújtja
Megvételre kínálok egy könnyűszerkezetes 91,9 hasznos alapterületű családi házat, amely 2025-ben került befejezésre. Külső szigetelése 15cm, födém szigetelése 30cm.
Az ingatlan lakásnak minősül, amelyben 2 szoba, nappali- étkező, konyha, kamra, közlekedő, előszoba, fürdőszoba és külön álló illemhelyiség került kialakításra. A közlekedőből elektromos kapuval ellátott garázsba jutunk. Az élettér 67,9 nm, a garázs 24nm, nyitott terasz 14,5nm.
Nyílászárói korszerű 3 rétegű műanyagból készültek, fűtése gázkazánnal megoldott padlófűtésen keresztül, és a nappaliban lévő hűtőfűtő klíma biztosítja nyáron a kellemes hőmérsékletet.
A lakás teljesen elkerített, külön elektromos kapuval ellátott bejárattal rendelkezik. A hozzá tartozó telek területe 329nm.
A második számú lakással garázskapcsolatos, így egyetlen egy közös fal sincs a hátsó lakással.
Áram ellátása 1x32A.
Méreteinek és adottságainak köszönhetően az ingatlan leendő tulajdonosai akár a 3 gyermek után járó CSOK Plusz kamattámogatott hitelt is igénybe tudják venni, melynek mértéke elérheti az 50.000.000 Ft-ot.
A hirdetésben szereplő FIX 3%-os lakáshitel részét képező támogatásokat Magyarország Kormánya nyújtja
Regisztrációs szám
DLK095469
Az ingatlan adatai
Értékesités
eladó
Jogi státusz
új
Jelleg
lakás
Építési mód
könnyűszerkezetes
Méret
91,9 m²
Bruttó méret
91,9 m²
Fűtés
Gáz cirkó
Belmagasság
290 cm
Tájolás
Dél-nyugat
Állapot
Jó
Homlokzat állapota
Jó
Építés éve
2025
Fürdőszobák száma
1
Fekvés
utcai
Helyiségek
előszoba
3.2 m²
nappali
24.38 m²
konyha
8.51 m²
kamra
1.37 m²
szoba
9 m²
szoba
10.64 m²
közlekedő
3.56 m²
wc
1.21 m²
terasz
14.5 m²