Elérhető Otthon Start hitellel
                                        
                                    
                                                                Eladó újépítésű ikerház,
                                DHZ088054
                            Vác, Deákvár
                            128 600 000 Ft
332 000 €
- 86m²
- 4 szoba
 
            
                                                             
            
                                                             
            
                                                             
            
                                                             
            
                                                             
            
                                                             
            
                                                             
            
                                                             
            
                                                             
            
                                                             
            
                                                             
            
                                                             
            
                                                             
            
                                                            Vácott 2 db ÚJ építésű ikerház eladó régi Deákvár közelében, a belvárostól nem messze, önálló telkekkel (használati megosztással) megbízható kivitelezőtől!
Vác központtól közel eső részén, de mégis Deákvárhoz és a Belvároshoz is közel, csendes, nyugodt környezetben, családi házas övezetben eladó 2 db IKERHÁZ (könnyűszerkezetes HITELEZHETŐ, ÉMI engedéllyel rendelkezik).
Az ingatlanok várható átadási ideje 2025.október, november környéke.
Az ikerházak jelenleg közel 85%-os készültségben vannak, egyenként 86 nm nettó hasznos összterülettel (bruttó 97 nm), plusz hozzá tartozik a garázs, nyitott terasz és a tetőtéri erkély.
A két szintes ikerházakban 3 db garázs is elhelyezésre került. A hirdetésben szereplő látványtervek és képek tökéletesen szemléltetik az ikerházak igényes kivitelezését és jelenlegi építési fázisát. A 2 db ikerház ugyanolyan méretű és elosztású, kivétel a hozzájuk tartozó telkek méretei. Az ideális fekvésű és elrendezésű otthona 2 ikerház közül választható ki.
Jelenlegi készültségi fokban a burkolatok még választhatóak!
Ikerház
Telek méret: 571 nm
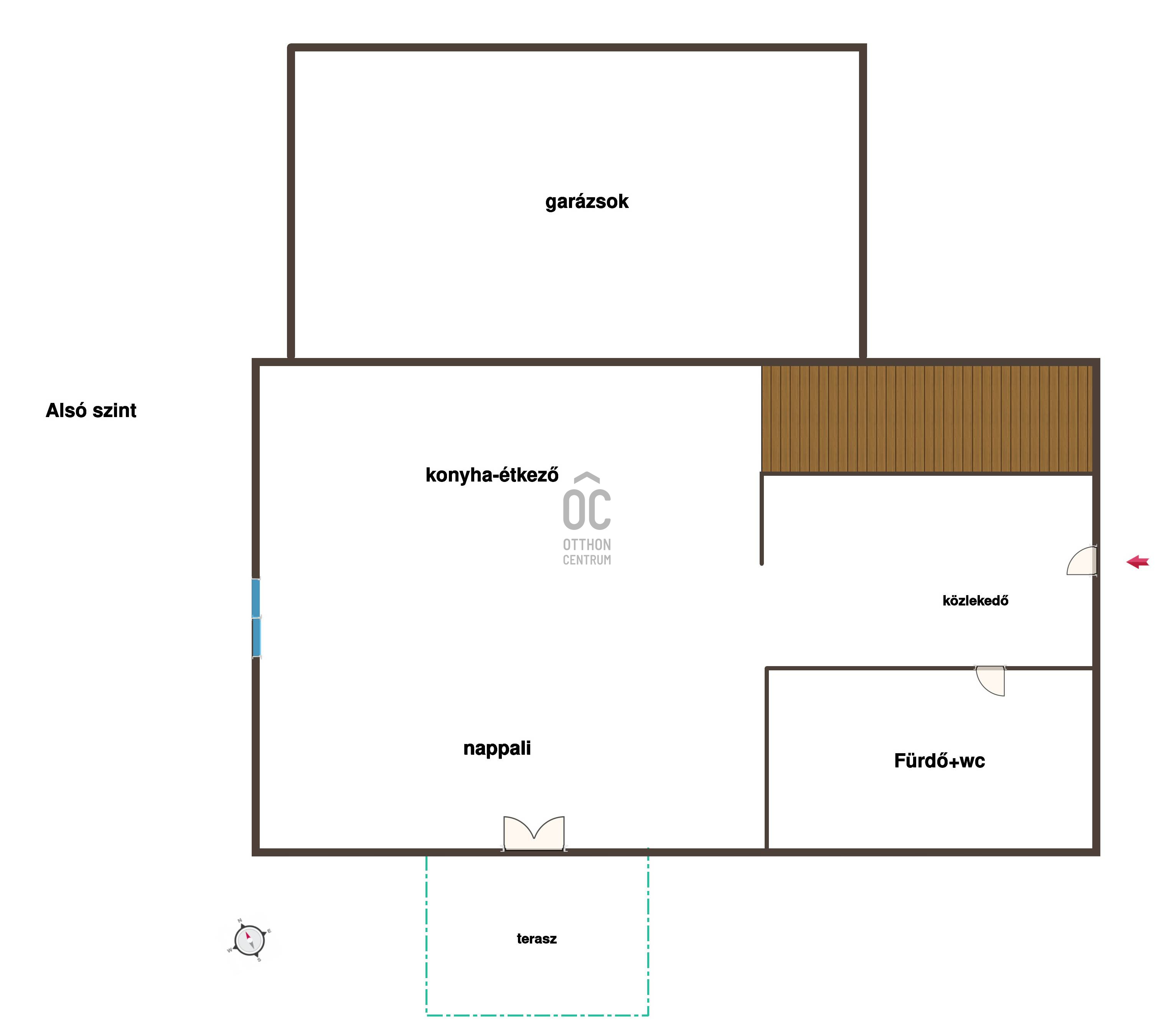
Alsó szint:
- közlekedő: 5,34 nm
- nappali: 16,14 nm
- konyha-étkező: 8,97 nm
- kamrahelyiség: 1,5 nm
- fürdő: 3,68 nm
- tornác: 4,06 nm
- garázs: 13 nm + tornác 3,8 nm
- terasz: 7,5 nm
Felső szint:
- közlekedő: 7,64 nm
- szoba: 8,13 nm
- szoba: 9.63 nm
- fürdő: 3,69 nm
- szoba: 9,43 nm
- gardrób: 2,35 nm
- fürdő: 3,69 nm
- erkély 4,5 nm
Összesítve: amerikai konyhás nappali, 3 fél szoba, 3 fürdő
Ár: 128.600.000 Ft
Minden ikerházhoz tartozik 1 garázs, de plusz 1 garázs megvásárolható, aminek az ára 15.000.000 Ft. Saját használatú kertrészek, a telek körbekerített, kerítéssel ellátott, füvesített és közös használatú gépkocsi beállóval és járdával kerülnek kialakításra.
A környék a városközponttól 15-20 perc, a vonatállomástól 15 perc sétatávolságra elérhető.
Építésénél a precíz tervezést, a minőségi kivitelezést és a prémium anyagok használatát helyezték előtérbe. A korszerű hang és hőszigetelés hozzájárul az épület energiahatékonyságához. A mai kor követelményeinek megfelelően, gazdaságos, energiatakarékos fűtési rendszer kerül kiépítésre. Hőszivattyú biztosítja a használati melegvizet, a hűtést és a fűtést. Padlófűtés a meleget, fain coil pedig a hűtést biztosítja.
Műszaki leírás:
A külső teherhordó falszerkezetek 140 mm széles, a belső válaszfalak 90 mm széles acél vázszerkezetű szerelt falak.
Hőszigetelés:
A vázszerkezetek közé a külső falakban 15 cm vastag szálas hőszigetelés kerül beépítésre. A padlásfödémbe 15 + 15 cm vastagságú szálas hőszigetelés lett tervezve. Ezen kívül a külső falszerkezetek 15,0 centiméteres táblás polisztirol hőszigeteléssel lesznek borítva.
Az úsztatott talajon fekvő padlót 15 cm lépésálló EPS-150 hőszigeteléssel kell készíteni.
Tetőfedés:
Cserépfedés (Terrán Zenit) a hozzá tartozó kiegészítőkkel.
Felületképzések:
A külső homlokzatok fehér színű dörzsölt nemesvakolattal és lábazati díszvakolattal készülnek.
Nyílászárók:
Hagyományos méretlépcsőben gyártott fokozottan hőszigetelt üvegezésű (3 rétegű,
műanyag nyílászárók). Színazonos elektromos redőnyökkel ellátva.
Az ikerház elhelyezkedésének köszönhetően a közlekedés sem jelenthet gondot, legyen szó autóról vagy tömegközlekedésről. A lakópark ideális választás lehet befektetési célból, idősebbeknek, fiatal pároknak első otthonként, illetve nagycsaládosoknak CSOK és kedvezményes hitelek igénybevétele mellett.
                    Vác központtól közel eső részén, de mégis Deákvárhoz és a Belvároshoz is közel, csendes, nyugodt környezetben, családi házas övezetben eladó 2 db IKERHÁZ (könnyűszerkezetes HITELEZHETŐ, ÉMI engedéllyel rendelkezik).
Az ingatlanok várható átadási ideje 2025.október, november környéke.
Az ikerházak jelenleg közel 85%-os készültségben vannak, egyenként 86 nm nettó hasznos összterülettel (bruttó 97 nm), plusz hozzá tartozik a garázs, nyitott terasz és a tetőtéri erkély.
A két szintes ikerházakban 3 db garázs is elhelyezésre került. A hirdetésben szereplő látványtervek és képek tökéletesen szemléltetik az ikerházak igényes kivitelezését és jelenlegi építési fázisát. A 2 db ikerház ugyanolyan méretű és elosztású, kivétel a hozzájuk tartozó telkek méretei. Az ideális fekvésű és elrendezésű otthona 2 ikerház közül választható ki.
Jelenlegi készültségi fokban a burkolatok még választhatóak!
Ikerház
Telek méret: 571 nm
Alsó szint:
- közlekedő: 5,34 nm
- nappali: 16,14 nm
- konyha-étkező: 8,97 nm
- kamrahelyiség: 1,5 nm
- fürdő: 3,68 nm
- tornác: 4,06 nm
- garázs: 13 nm + tornác 3,8 nm
- terasz: 7,5 nm
Felső szint:
- közlekedő: 7,64 nm
- szoba: 8,13 nm
- szoba: 9.63 nm
- fürdő: 3,69 nm
- szoba: 9,43 nm
- gardrób: 2,35 nm
- fürdő: 3,69 nm
- erkély 4,5 nm
Összesítve: amerikai konyhás nappali, 3 fél szoba, 3 fürdő
Ár: 128.600.000 Ft
Minden ikerházhoz tartozik 1 garázs, de plusz 1 garázs megvásárolható, aminek az ára 15.000.000 Ft. Saját használatú kertrészek, a telek körbekerített, kerítéssel ellátott, füvesített és közös használatú gépkocsi beállóval és járdával kerülnek kialakításra.
A környék a városközponttól 15-20 perc, a vonatállomástól 15 perc sétatávolságra elérhető.
Építésénél a precíz tervezést, a minőségi kivitelezést és a prémium anyagok használatát helyezték előtérbe. A korszerű hang és hőszigetelés hozzájárul az épület energiahatékonyságához. A mai kor követelményeinek megfelelően, gazdaságos, energiatakarékos fűtési rendszer kerül kiépítésre. Hőszivattyú biztosítja a használati melegvizet, a hűtést és a fűtést. Padlófűtés a meleget, fain coil pedig a hűtést biztosítja.
Műszaki leírás:
A külső teherhordó falszerkezetek 140 mm széles, a belső válaszfalak 90 mm széles acél vázszerkezetű szerelt falak.
Hőszigetelés:
A vázszerkezetek közé a külső falakban 15 cm vastag szálas hőszigetelés kerül beépítésre. A padlásfödémbe 15 + 15 cm vastagságú szálas hőszigetelés lett tervezve. Ezen kívül a külső falszerkezetek 15,0 centiméteres táblás polisztirol hőszigeteléssel lesznek borítva.
Az úsztatott talajon fekvő padlót 15 cm lépésálló EPS-150 hőszigeteléssel kell készíteni.
Tetőfedés:
Cserépfedés (Terrán Zenit) a hozzá tartozó kiegészítőkkel.
Felületképzések:
A külső homlokzatok fehér színű dörzsölt nemesvakolattal és lábazati díszvakolattal készülnek.
Nyílászárók:
Hagyományos méretlépcsőben gyártott fokozottan hőszigetelt üvegezésű (3 rétegű,
műanyag nyílászárók). Színazonos elektromos redőnyökkel ellátva.
Az ikerház elhelyezkedésének köszönhetően a közlekedés sem jelenthet gondot, legyen szó autóról vagy tömegközlekedésről. A lakópark ideális választás lehet befektetési célból, idősebbeknek, fiatal pároknak első otthonként, illetve nagycsaládosoknak CSOK és kedvezményes hitelek igénybevétele mellett.
Regisztrációs szám
DHZ088054
                Az ingatlan adatai
Értékesités
                                        eladó
                                                                                                                                                Jogi státusz
                                        új
                                                                                                                                                Jelleg
                                        ház
                                                                                                                                                                                                                                                                                        Építési mód
                                        könnyűszerkezetes
                                                                                                                                                                                                                                                                                                                                                                                                                                                                                                    Méret
                                        86 m²
                                                                                                                                                Bruttó méret
                                        86 m²
                                                                                                                                                Telek méret
                                        571 m²
                                                                                                                                                Terasz / erkély mérete
                                        12 m²
                                                                                                                                                                                                                                                                                                                                                                                                                                Fűtés
                                        egyéb
                                                                                                                                                Belmagasság
                                        260 cm
                                                                                                                                                Lakáson belüli szintszám
                                        1
                                                                                                                                                Tájolás
                                        Dél-nyugat
                                                                                                                                                                                                                                                                                        Állapot
                                        Jó
                                                                                                                                                Homlokzat állapota
                                        Jó
                                                                                                                                                                                                                                                                                                                                                            Építés éve
                                        2025
                                                                                                                                                Fürdőszobák száma
                                        3
                                                                                                                                                Fekvés
                                        udvari
                                                                                                                                                                                                                                                                                                                                                                                                                                                                                                                                                                                                                                            Víz
                                        Van
                                                                                                                                                Gáz
                                        Utcán
                                                                                                                                                Villany
                                        Van
                                                                                                                                                                                                                                                                                                                                                            Kertkapcsolatos
                                        igen
                                                                                                                                                                                                                                                                                                                                                                                Helyiségek
közlekedő
                                        5.34 m²
                                                                            nappali
                                        16.14 m²
                                                                            konyha-étkező
                                        8.97 m²
                                                                            kamra
                                        1.5 m²
                                                                            fürdőszoba-wc
                                        3.68 m²
                                                                            terasz
                                        7.5 m²
                                                                            közlekedő
                                        7.64 m²
                                                                            szoba
                                        8.13 m²
                                                                            szoba
                                        9.63 m²
                                                                            fürdőszoba-wc
                                        3.69 m²
                                                                            szoba
                                        9.43 m²
                                                                            gardrób
                                        2.35 m²
                                                                            fürdőszoba-wc
                                        3.69 m²
                                                                            erkély
                                        4.5 m²
                                                                     
            
                            Bán Marianna
Hitelszakértő
 
                    
                 
                         
                         
                         
                         
                         
                         
                         
                         
                         
                         
                         
                         
                         
                         
                    
                 
                 
                 
                 
                 
                 
                 
                 
                 
                 
                 
                