180 000 000 Ft
460 000 €
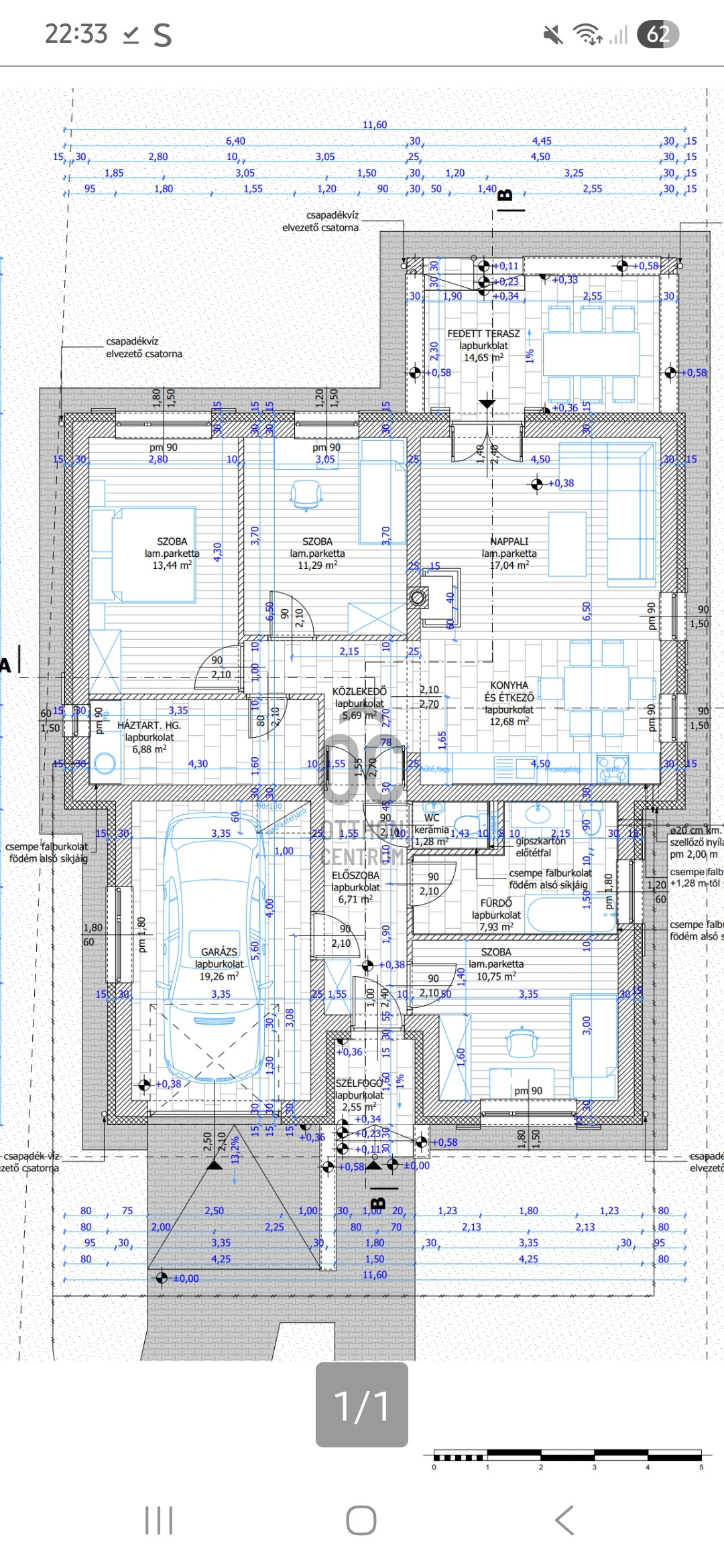
- 130m²
- 5 szoba













A Dunakanyarban, Vác déli lakóterületén eladó egy új építésű családi ház, 806m²-es telken.
Az ingatlan jelenleg olyan 35-40%-os készültségi fokon van, folyamatosan épül. Kulcsrakész állapotban kerül átadásra!A környék tele van új építésű házakkal, ám ezek legtöbbje inkább társasház, ha pedig még van is eladó telek, az is igen magas áron... az ilyen kaliberű önálló családi házak pedig, mint amilyenre a szóban forgó ingatlan is tervezve van 150-200 Mft között mozognak.
Remek lehetőség ez azon kedves érdeklődők számára akik önálló családi házban gondolkodnak a környéken, és szeretnék teljesen saját igényekre szabni. Az ingatlan teljesen összközműves, minden telken belül található. A tervek szerint elektromos fűtés adná a meleget, minden szobában (3 hálószoba és a közös tér - nappali -konyha -étkező)Az egész telek zsaluköves kerítéssel lett körbe kerítve, az alapja beton, 2 sor zsalukővel, porotherm 30-as téglából épülve egészen a koszorút, aminek vasalata és zsaluazata már kész van, betonnal kell még kiönteni.
A kertben 2 fúrt kút is található, ez rendekívül alkalmas egy ekkora telek öntözésére, gondozására.
A környék extra dinamikusan fejlődik, bevásárlóközpont 5 perc autóval, Vácon és Sződligeten is boltok, posta, iskolák, óvodák, bölcsődék mind megtalálhatóak.
Amennyibe felkelette érdeklődését az ingatlan, várom hívását kérdésekkel, megtekintéssel kapcsolatban.
Az ingatlan jelenleg olyan 35-40%-os készültségi fokon van, folyamatosan épül. Kulcsrakész állapotban kerül átadásra!A környék tele van új építésű házakkal, ám ezek legtöbbje inkább társasház, ha pedig még van is eladó telek, az is igen magas áron... az ilyen kaliberű önálló családi házak pedig, mint amilyenre a szóban forgó ingatlan is tervezve van 150-200 Mft között mozognak.
Remek lehetőség ez azon kedves érdeklődők számára akik önálló családi házban gondolkodnak a környéken, és szeretnék teljesen saját igényekre szabni. Az ingatlan teljesen összközműves, minden telken belül található. A tervek szerint elektromos fűtés adná a meleget, minden szobában (3 hálószoba és a közös tér - nappali -konyha -étkező)Az egész telek zsaluköves kerítéssel lett körbe kerítve, az alapja beton, 2 sor zsalukővel, porotherm 30-as téglából épülve egészen a koszorút, aminek vasalata és zsaluazata már kész van, betonnal kell még kiönteni.
A kertben 2 fúrt kút is található, ez rendekívül alkalmas egy ekkora telek öntözésére, gondozására.
A környék extra dinamikusan fejlődik, bevásárlóközpont 5 perc autóval, Vácon és Sződligeten is boltok, posta, iskolák, óvodák, bölcsődék mind megtalálhatóak.
Amennyibe felkelette érdeklődését az ingatlan, várom hívását kérdésekkel, megtekintéssel kapcsolatban.
Regisztrációs szám
DHZ073647
Az ingatlan adatai
Értékesités
eladó
Jogi státusz
új
Jelleg
ház
Építési mód
tégla
Méret
130 m²
Bruttó méret
130 m²
Telek méret
806 m²
Terasz / erkély mérete
14,6 m²
Lakáson belüli szintszám
1
Tájolás
Dél-kelet
Állapot
Jó
Homlokzat állapota
Jó
Építés éve
2025
Fürdőszobák száma
1
Fekvés
udvari
Csatorna
Van
Kertkapcsolatos
igen
Helyiségek
előszoba
6.71 m²
szoba
10.75 m²
wc
1.28 m²
közlekedő
5.69 m²
konyha-étkező
12.68 m²
nappali
17.4 m²
szoba
11.29 m²
szoba
13.44 m²
szoba
19.26 m²
háztartási helyiség
6.88 m²
veranda
14.65 m²
előszoba
2.55 m²

Pados - Burján Renáta Zita
Hitelszakértő