269 000 000 Ft
705 000 €
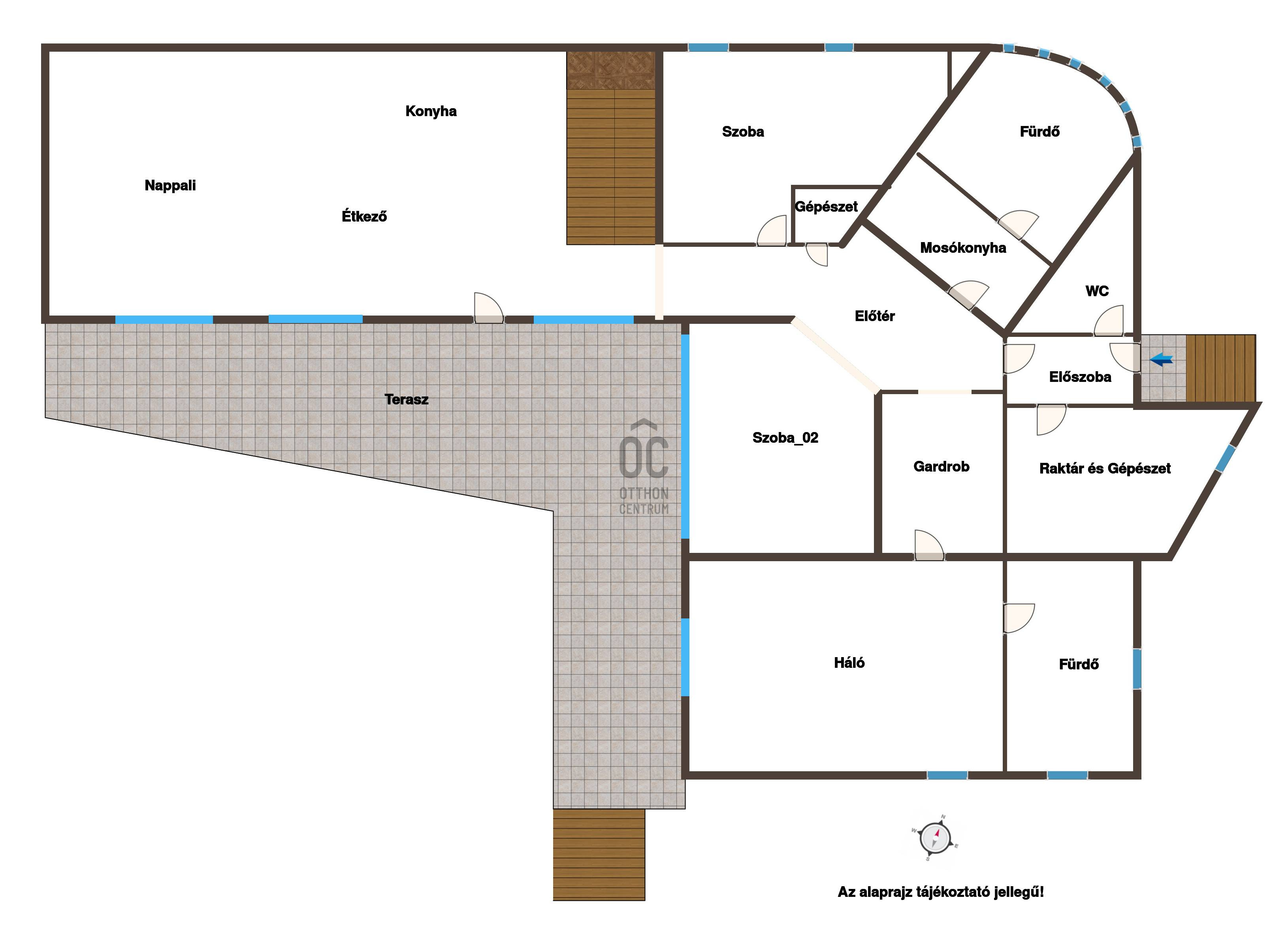
- 373m²
- 7 szoba
Eladó új építésű Luxusingatlan Sukorón!
Kivételes lehetőség a Velencei-tó közelében, befektetők, cégek vagy nagycsaládosok számára!
Eladásra kínálunk Sukoró csendes, mégis remekül, jól megközelíthető részén egy 373 négyzetméteres, új építésű, szerkezetkész ingatlant.
Ingatlan Jellemzői:
Hatalmas tér: A ház összesen 7 szobával rendelkezik. Az alsó szinten egy közel 100 m²-es, 6 méteres belmagasságú tér várja a leendő tulajdonost, hatalmas üvegfelületekkel, lenyűgöző térérzettel igazi reprezentatív központ.
Az emeleten egy második, szintén tágas, világos közösségi tér található, mely akár nyitott irodaként, workshop szobaként vagy VIP lounge-ként is funkcionálhat.
Energiatakarékos megoldások: Az ingatlan modern hőszivattyús fűtésrendszerrel és mennyezet hűtő-fűtő rendszerrel van felszerelve, a napelemes rendszer előkészítése pedig már megtörtént.
Testre szabhatóság: A ház szerkezetkész állapotban van, így a leendő tulajdonos saját ízlése szerint fejezheti be a belső tereket és alakíthatja ki álmai otthonát vagy vállalkozásának központját.
Telek és Környezet: A ház egy hatalmas, 2765 négyzetméteres telken helyezkedik el, mely rengeteg lehetőséget kínál a kikapcsolódásra, kertészkedésre vagy akár további fejlesztésekre.
A Velencei-tó közelsége és a festői környezet garantálja a nyugalmat, miközben a közlekedés is rendkívül egyszerű. Az M7-es autópálya mindössze 5 perc alatt elérhető, így Budapest és Székesfehérvár is könnyen megközelíthető.
Az ingatlan kiváló választás olyan cégek számára, akik egyedülálló megjelenésű, jól felszerelt, prémium helyszínt keresnek, ahol méltó módon képviselhetik vállalkozásukat.
Ne maradjon le erről a páratlan lehetőségről! Ez az ingatlan nem csupán egy ház, hanem egy hosszú távú befektetés is egyben.
Kivételes lehetőség a Velencei-tó közelében, befektetők, cégek vagy nagycsaládosok számára!
Eladásra kínálunk Sukoró csendes, mégis remekül, jól megközelíthető részén egy 373 négyzetméteres, új építésű, szerkezetkész ingatlant.
Ingatlan Jellemzői:
Hatalmas tér: A ház összesen 7 szobával rendelkezik. Az alsó szinten egy közel 100 m²-es, 6 méteres belmagasságú tér várja a leendő tulajdonost, hatalmas üvegfelületekkel, lenyűgöző térérzettel igazi reprezentatív központ.
Az emeleten egy második, szintén tágas, világos közösségi tér található, mely akár nyitott irodaként, workshop szobaként vagy VIP lounge-ként is funkcionálhat.
Energiatakarékos megoldások: Az ingatlan modern hőszivattyús fűtésrendszerrel és mennyezet hűtő-fűtő rendszerrel van felszerelve, a napelemes rendszer előkészítése pedig már megtörtént.
Testre szabhatóság: A ház szerkezetkész állapotban van, így a leendő tulajdonos saját ízlése szerint fejezheti be a belső tereket és alakíthatja ki álmai otthonát vagy vállalkozásának központját.
Telek és Környezet: A ház egy hatalmas, 2765 négyzetméteres telken helyezkedik el, mely rengeteg lehetőséget kínál a kikapcsolódásra, kertészkedésre vagy akár további fejlesztésekre.
A Velencei-tó közelsége és a festői környezet garantálja a nyugalmat, miközben a közlekedés is rendkívül egyszerű. Az M7-es autópálya mindössze 5 perc alatt elérhető, így Budapest és Székesfehérvár is könnyen megközelíthető.
Az ingatlan kiváló választás olyan cégek számára, akik egyedülálló megjelenésű, jól felszerelt, prémium helyszínt keresnek, ahol méltó módon képviselhetik vállalkozásukat.
Ne maradjon le erről a páratlan lehetőségről! Ez az ingatlan nem csupán egy ház, hanem egy hosszú távú befektetés is egyben.
Regisztrációs szám
DHZ070231
Az ingatlan adatai
Értékesités
eladó
Jogi státusz
új
Jelleg
ház
Építési mód
tégla
Méret
373 m²
Bruttó méret
373 m²
Telek méret
2 765 m²
Fűtés
egyéb
Lakáson belüli szintszám
2
Tájolás
Dél-nyugat
Állapot
Jó
Homlokzat állapota
Jó
Építés éve
2022
Fürdőszobák száma
3
Fekvés
udvari
Víz
Van
Gáz
Utcán
Villany
Van
Csatorna
Van
Helyiségek
nappali-konyha
90 m²
előszoba
6 m²
szoba
35 m²
gardrób
10.3 m²
háztartási helyiség
8.3 m²
fürdőszoba-wc
12.4 m²
wc
2.8 m²
szoba
19.2 m²
nappali
62 m²
fürdőszoba-wc
8.4 m²
szoba
10.6 m²
szoba
10.4 m²
közlekedő
6.2 m²
lépcsőház
7 m²
szoba
18 m²
Várnai Zoltán Jenő
Hitelszakértő