Elérhető Otthon Start hitellel
Eladó újépítésű családi ház,
DHZ017096
Veresegyház,
136 000 000 Ft
355 000 €
- 115,3m²
- 4 szoba
Újépítésű nappali + 3 szobás, teraszos családi ház Veresegyházon!
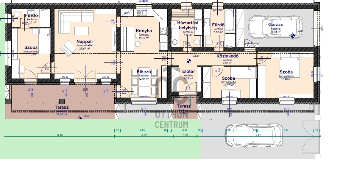
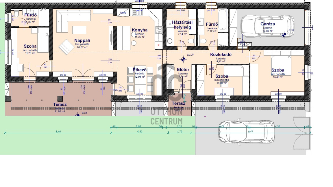
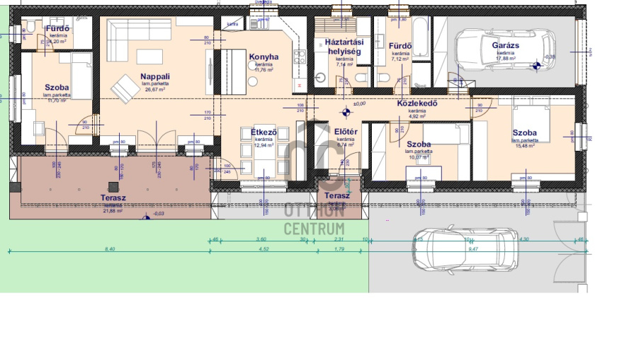
Megvételre kínálok Veresegyház központjától karnyújtásnyira, a Fővég városrészben egy új építésű, nettó 115 nm-es, amerikai konyhás nappali + 3 szobás, dupla komfortos családi házat, gépkocsi beállóval egy 698 nm-es telken.
A lakótér 115 nm + 29 nm és 3 nm terasz, + gépkocsi beálló.
A családi élet színterét egy 51 nm-es amerikai konyhás nappali étkező biztosítja, privátszférát mindenki megtalálhatja a 3 külön nyíló hálószobában, a család kényelmét fokozza a 2 fürdőszoba, továbbá kamra, előtér, közlekedő is megtalálható a házban.
Az ingatlan energiahatékonyságát a korszerű építőanyagok és technológia biztosítja. A házhoz Concept 8KW-os hőszivattyús rendszer tartozik, mely a fűtést és a melegvizet biztosítja, beépített melegvíz tárolóval. A hőleadás padlófűtéssel történik. A rendszerhez 1db fan-coil vagy 1db inverteres klímaberendezés (választható) kerül beszerelésre a nappaliban.
Az átadás várható ideje 2026. június. A családi ház építése szerződéskötés után kezdődik.
Kérésre teljes műszaki tartalmat, alaprajzot szívesen küldök! Igény esetén garázzsal is kérhető, a tervrajzok még módosíthatók, 4 akár 5 szobás kivitelezés is megoldható.
Várom hívását!
Megvételre kínálok Veresegyház központjától karnyújtásnyira, a Fővég városrészben egy új építésű, nettó 115 nm-es, amerikai konyhás nappali + 3 szobás, dupla komfortos családi házat, gépkocsi beállóval egy 698 nm-es telken.
A lakótér 115 nm + 29 nm és 3 nm terasz, + gépkocsi beálló.
A családi élet színterét egy 51 nm-es amerikai konyhás nappali étkező biztosítja, privátszférát mindenki megtalálhatja a 3 külön nyíló hálószobában, a család kényelmét fokozza a 2 fürdőszoba, továbbá kamra, előtér, közlekedő is megtalálható a házban.
Az ingatlan energiahatékonyságát a korszerű építőanyagok és technológia biztosítja. A házhoz Concept 8KW-os hőszivattyús rendszer tartozik, mely a fűtést és a melegvizet biztosítja, beépített melegvíz tárolóval. A hőleadás padlófűtéssel történik. A rendszerhez 1db fan-coil vagy 1db inverteres klímaberendezés (választható) kerül beszerelésre a nappaliban.
Az átadás várható ideje 2026. június. A családi ház építése szerződéskötés után kezdődik.
Kérésre teljes műszaki tartalmat, alaprajzot szívesen küldök! Igény esetén garázzsal is kérhető, a tervrajzok még módosíthatók, 4 akár 5 szobás kivitelezés is megoldható.
Várom hívását!
Regisztrációs szám
DHZ017096
Az ingatlan adatai
Értékesités
eladó
Jogi státusz
új
Jelleg
ház
Építési mód
egyéb
Méret
115,3 m²
Bruttó méret
115,3 m²
Telek méret
698 m²
Terasz / erkély mérete
32 m²
Fűtés
egyéb
Belmagasság
260 cm
Lakáson belüli szintszám
1
Tájolás
Észak-nyugat
Állapot
Jó
Homlokzat állapota
Jó
Építés éve
2026
Fürdőszobák száma
1
Fekvés
udvari
Kertkapcsolatos
igen
Helyiségek
szoba
13.95 m²
szoba
11.25 m²
szoba
11.19 m²
nappali-konyha
37.35 m²
ebédlő
13.48 m²
háztartási helyiség
6.98 m²
fürdőszoba-wc
7.65 m²
közlekedő
4.95 m²
előszoba
7.45 m²
terasz
28.99 m²
terasz
3.05 m²
kamra
1.06 m²
Pados - Burján Renáta Zita
Hitelszakértő